La casa constituida por un solo ambiente es una de las formas de habitación más utilizada por el hombre a lo largo de su historia. En este primer capítulo se analiza cómo el hombre ha organizado su manera de vivir en el interior de espacios únicos y abiertos, y se determinan qué enseñanzas se pueden sacar no sólo de esta experiencia milenaria, sino también de la investigación contemporánea acerca del hábitat.

Las primeras casas del hombre tenían planta circular; aquí se ve una vivienda de Khirokitia (Chipre) que se remonta aproximadamente al 6000 a. de C. La casa, hecha de adobe, descansa sobre una base circular de piedra; una gran cúpula cierra un interior único sobre dos niveles, conectados por una escalera que nada tiene que envidiar a las soluciones más minimalistas; el umbral de la puerta de acceso es alto para impedir la entrada de lluvia y barro; en el centro una piedra excavada o un círculo de piedras marca el lugar del fuego y un agujero en el ápice de la cúpula permite la salida de humo (dibujo de Angela Pedone)

La forma abovedada es una de las preferidas para la casa de la zona mediterránea. Un ejemplo lo constituye esta casa típica de Lucania, similar a las utilizadas en Apulia, citada por Benevolo a raíz de un informe parlamentario que se realizó en 1954. Es un gran espacio abierto con un entrepiso: en la planta baja se desarrollan todas las actividades de la casa, mientras que la alta sirve de almacén y de espacio nocturno para una parte de la familia.
Arriba, la planta baja y del entrepiso. Abajo, la sección
Ya desde el comienzo, en las cavernas, encima de los árboles o en otros lugares, el hombre, durante miles de años, ha utilizado como casa un espacio interior único, abierto y sin divisiones fijas. Todos los hábitat de los pueblos nómadas, desde las tiendas de pieles de animales hasta los iglúes de los esquimales, entran en esta tipología y reúnen las mismas funciones en un ambiente único, vivido de varias maneras a lo largo del día. El tiempo marca la diferencia en estos lugares y el espacio se modifica según sus exigencias.
Durante milenios, el hombre ha utilizado los espacios interiores para protegerse, para dormir y descansar, mientras que ha desarrollado las demás funciones, desde la caza hasta la comida, al aire libre.
La historia de la verdadera y auténtica casa nace con el desarrollo de la agricultura y de civilizaciones que dejan de ser nómadas. Dejando templos, palacios y monumentos a la historia de la arquitectura y centrándose en la vivienda común, se descubre que desde su origen la estructura básica de la casa no se ha modificado durante miles de años.
En todo el Mediterráneo las casas varían según las características de cada lugar: el amplio local único situado a nivel del suelo se modifica para hacerse más fresco o más cálido, según la posición geográfica y la estación del año.
Aunque construido con materiales diferentes, tierra, piedras, ladrillos, madera, permanece fiel al gran arquetipo del primer espacio que cada hombre conoce: el vientre materno, único, suave, cálido, el primer lugar de vida.
El propio concepto de casa surge de este primer modelo, de este espacio indiviso, cálido y protegido donde descansar y nutrirse.
Durante el Imperio romano, las viviendas más comunes en el campo estaban formadas por un amplio espacio que se abría a un patio delimitado por paredes y un portal; en el centro del espacio abierto normalmente había un estanque y en el interior se encontraban la chimenea y los Lares, las divinidades protectoras de la casa; a esta célula básica se podían añadir otras construcciones. En las ciudades, y en Roma en particular, la mayoría de la gente vivía en grandes construcciones de varios pisos, llamadas insulae, cuya planta baja estaba destinada a las tiendas.
La casa se ha aprovechado también como lugar de trabajo; de hecho, antes de la Revolución industrial, las actividades artesanales, el comercio y los intercambios se ejercían casi siempre en una zona de la vivienda.
Durante la Edad Media la casa común presentaba una sala, que durante el día podía ser la tienda o el taller y de noche se transformaba en dormitorio. Herreros, forjadores, panaderos, alfareros y carniceros necesitaban por lo general otros espacios destinados exclusivamente a sus actividades. Sin embargo, en la mayoría de los casos, la planta baja, con sus cambios de función a lo largo del día, constituía la vivienda más habitual.
En el norte y el oeste de Europa se difundió una tipología de casa de unos 4 a 7 m de anchura, con una longitud que oscilaba entre los 10 y los 20 m, unificada bajo un mismo techo; en un extremo se encontraba una sala con chimenea y, a veces, una habitación separada por un tabique, generalmente utilizada como dormitorio, mientras que el resto del espacio estaba ocupado por el establo.
Las casas de la Edad Media, construidas en su mayoría con madera y paja o con adobe, resultaban fáciles de levantar por sus futuros habitantes, que eran ayudados por maestros albañiles locales.

Mirando la casa desde la cama de los abuelos, se puede ver el horno, la cama de matrimonio de los padres delante de la chimenea con los utensilios de la cocina y los otros muebles de la casa. Todo el ambiente recibe luz de la gran entrada que, a menudo, se queda abierta, de la ventana que está sobre la puerta y de una pequeña abertura en el segundo nivel en posición frontal, que permite una ventilación suficiente (dibujo de Angela Pedone)

Todavía en 1954 asnos y otros grandes animales de trabajo se quedaban dentro de la casa; esta costumbre, prohibida sólo por posteriores leyes higiénicas, se justificaba por la necesidad de calentar el ambiente durante los períodos fríos. Colgada de una viga situada junto a la cama de matrimonio se ve la cuna; en esta posición el niño está siempre bajo control, protegido de cualquier peligro y se mece dulcemente con su propio movimiento; en el primer piso se halla la cama de otro hijo y la despensa, que se compone de cestas de trigo, tinajas de aceite y de todo lo necesario para la casa (dibujo de Angela Pedone)
VIVIENDA DE UN SOLO AMBIENTE DEL SIGLO XVII
de Marcello D’Astore
En Ostuni, en la parte meridional de Apulia, se encuentra un tipo de casa con bóveda, típica del siglo xvii, formada por un único ambiente.
Antiguamente la zona delante de la chimenea, el hogar, era el punto de encuentro y el centro de todas las actividades que se desarrollaban en la casa: no sólo se cocinaba, sino que era sobre todo el lugar en el que se reunían las personas mayores y los más pequeños para gozar del fuego encendido y escuchar historias. El sitio era pequeño y las personas se ponían una muy cerca de la otra.
La mesa de trabajo utilizada cerca del fuego era muy baja, unos 60 cm, y algunas hornacinas en la pared contenían todo lo necesario para la sencilla cocina de esa época.
La base de una concavidad excavada a 40 cm del suelo formaba un asiento, que era utilizado como cómodo banco.

La chimenea estaba colocaba en un pequeño espacio lateral, con un techo más bajo para crear un lugar cálido e íntimo; aquí se ve el relieve de uno de estos lugares antes de la intervención del arquitecto (dibujo de Marcello D’Astore)

En el plano de la restauración se ve cómo el arquitecto ha respetado la estructura existente agilizando el recorrido de la escalera de entrada (proyecto arquitectónico de Marcello D’Astore)
En la sala, verdadero centro de este habitáculo, unida a la cocina a través de un arco, se concentraban todos los recorridos de la casa; unas características repisas circundaban el espacio interrumpiéndose sólo en la única ventana hacia la calle. Nichos con impostas constituían los puntos de fuerza y de sostén de los muros, realizados con bloques uniformes cuyas intersecciones se rellenaban de tierra roja. Sólo las casas señoriales tenían piedras escuadradas y bien ajustadas entre sí, mientras que en las construcciones más pobres, como esta, los bloques de piedra trabajada sólo se encontraban en correspondencia con puntos críticos: arquitrabes, montantes laterales, parapetos, contornos.
Fig. * y Fig. **, la zona del hogar antes y después de la restauración: el nicho excavado en la pared, que servía de despensa, es ahora el lugar que acoge la encimera de gas (fotografía de Marcello D’Astore)

Una cornisa que hace las veces de estantería recorre el perímetro de la estancia; la alacena está empotrada en la pared (fotografía de Marcello D’Astore)

La zona de la escalera antes y después de la restauración; la piedra, una vez limpia se ha dejado a la vista en los puntos importantes de la arquitectura, las esquinas, las impostas de la bóveda, los escalones; la puerta lleva al baño, en cuya pared se abrió una pequeña ventana en forma de arco (fotografías de Marcello D’Astore)

El pequeño nicho excavado en la pared contiene ahora un jarrón; todo el espacio está enyesado e iluminado con luz reflejada por las bóvedas (fotografías de Marcello D’Astore)
Aparte de la tierra roja, que se utilizaba para ajustar las piedras entre sí, no se utilizaba ningún otro tipo de material de unión, cuya función era desarrollada por la cal que, en varias capas, acababa finalmente la estructura externa de los muros y remplazaba el enyesado. En esta construcción, cuando se limpiaron los muros, se encontró un grosor de cal de 56 mm, formado por las sucesivas capas dadas, cada año, durante la limpieza de primavera, tradicional momento de renovación de la casa.
La piedra característica de la zona de Ostuni es una calcárea blanda y blanca que, recién sacada, se araña incluso con una uña; expuesta al aire, sufre un proceso de carbonatación y de desecación a causa de la cual se vuelve más dura, aunque sigue siendo apta para la elaboración con sencillos utensilios como la sierra. Con el tiempo se amarillea y se cubre de colonias de mohos que la protegen del exterior y preservan su característica microporosidad, haciéndole que permanezca impasible al transcurso del tiempo. Esta piedra es un excelente material para la construcción, que se transforma y adapta a cualquier exigencia; tiene muy buenas características de aislamiento térmico: en invierno guarda el calor en la casa y durante el verano su color claro refleja los rayos solares haciendo más fresco el interior: a los lados de la ventana hay dos estanterías de piedra que servían para aguantar las macetas en las que se plantaban los ambientadores de la casa, las plantas aromáticas, como albahaca, salvia, perejil, o los perfumadísimos claveles.
En el siglo xix la industrialización impone la necesidad de separar claramente el trabajo, con sus propios espacios, del ámbito que empieza a llamarse «privado»: la casa en este momento se definía por las necesidades de «descansar y dormir».
La vivienda, hasta entonces centro de relación social y lugar de trabajo y sustento, se vuelve espacio organizado para albergar a sus consumidores, una «máquina para habitar» que sirve básicamente para descansar y volver luego al trabajo. A lo largo del siglo xx, empezando por la década de 1930, la vivienda es un espacio funcional y fraccionado, calculado y establecido según movimientos y cuerpos estandarizados.

Un apartamento para una persona sola: muy pequeño, un espacio de poco más de 4 por 6 m, pero con todo
lo necesario para que resulte confortable; no tiene muebles altos que lo sofocarían, sino unas estanterías bajas sobre las que está la televisión que separan la zona de noche de la de día, donde se sitúa la mesa utilizada para comer y para el trabajo. Cerca del sofá cama se ha dispuesto una pequeña área de descanso con un sillón y una alfombra redonda. Junto a la puerta de entrada se ha colocado un armario alto

En esta solución las diferentes áreas quedan bien definidas, la cocina está organizada alrededor de una mesa cuadrada, hay una zona de conversación definida por un sofá y una alfombra; la cama está separada por un biombo que al cerrarse libera todo el espacio
UNA VIVIENDA MÓVIL
Entre las más conocidas de la historia, junto con los nuraghi sardos, se encuentran los trulli de Apulia: un «montón de piedras», con un poco de tierra como único material de cohesión, constituye un espacio interior sencillo y redondo. Casas que se construyen con rapidez, eficaces contra el cálido clima mediterráneo y con una sorprendente «movilidad»: ante la llegada de visitas inoportunas, la casa se podía desmontar en pocas horas, dejando en su lugar tan sólo un montoncito de piedras. Pasado el peligro, las piedras retomaban su forma de casa antes del anochecer.
Esta exigencia impuso un modelo a seguir y se aplicó con rigor, según los nuevos postulados de la división de funciones, de la idea de un espacio neutro y de las necesidades predeterminadas del habitante. Separadas las funciones, el amplio ambiente común que contenía la chimenea y la mesa y que había sido el centro de la casa hasta entonces y desde sus orígenes, desaparece de golpe, fraccionado y dividido en células más pequeñas, puestas en comunicación por funcionales pasillos.
Fue de esta manera como, en el siglo xx, la que hasta entonces había sido la forma preferida y más habitual de vivienda, es decir, un espacio único que se transforma con el paso del tiempo, se convierte en forma menor, secundaria, como si fuera una solución auxiliar. Nacen así los estudios y apartamentos de un solo ambiente, concepto que resalta la ausencia del resto de la casa.
Si a cada función corresponde un espacio definido y separado, ¿cómo resolver el dilema de disponer de un solo espacio?

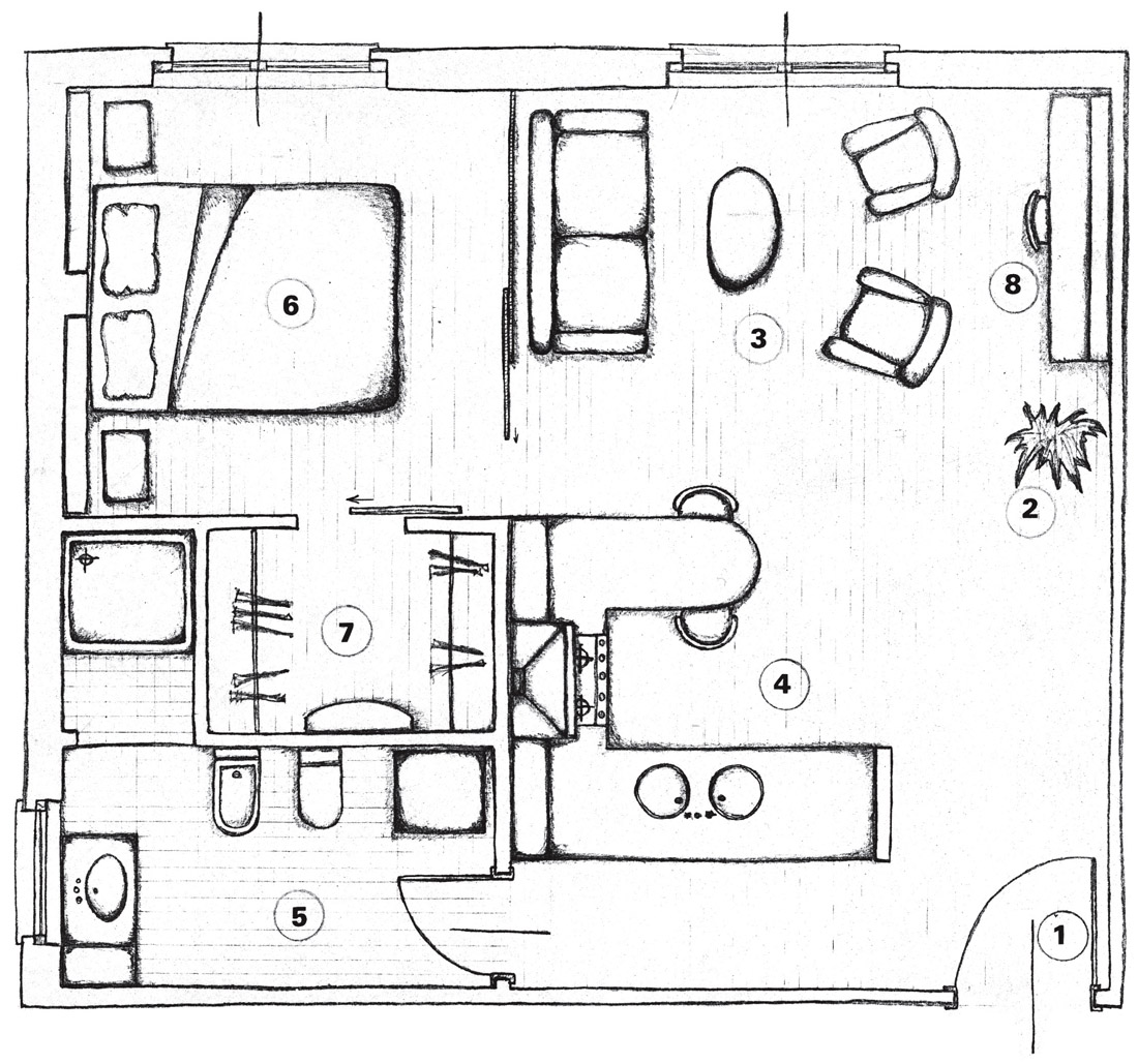
El apartamento ilustrado dispone de un armario vestidor a la entrada del baño; la zona de día se transforma en zona de noche gracias al sofá; la cocina y la mesa redonda al lado de la ventana se convierten en el verdadero centro de la casa

En el apartamento se ha dispuesto una entrada definida por una alfombra y un mueble; un biombo protege el sofá cama y los sillones; un pequeño escritorio está arrimado a la pared que separa las ventanas, mientras que una mesa cuadrada extensible está en el centro de la zona del comedor y de la cocina
Cada problema, si se encara con imaginación e iniciativa, se puede transformar en un reto; por ejemplo, tener un espacio único y abierto a disposición, aunque sea pequeño, es un buen punto de partida para crear los lugares que acogerán nuevos hábitos. No hay que asustarse de las dimensiones físicas: la percepción de un ambiente no depende sólo de sus medidas, sino del conjunto de las sensaciones táctiles, olfativas, visuales, sonoras, que llegan al organismo. En un lugar en el que la mayor parte del tiempo se está inactivo, como es la vivienda, el entorno se puede transformar en un pequeño universo diferenciado y complementar todos los demás microcosmos que uno siente la necesidad de formar.
Ya se ha visto cómo el local único ha sido algo constante en la historia de la vivienda, una elección que ha acompañado al hombre a lo largo de los siglos y que ha creado costumbres para afrontar las condiciones cambiantes del entorno, la más inmediata de la cuales es el tiempo.
Cuando se organiza una casa, especialmente una de único ambiente, la consideración del elemento tiempo es la base sobre la cual se apoyan todas las decisiones que se refieren al espacio, la cantidad y la posición de los muebles, la colocación de las zonas en las cuales privilegiar una acción en lugar de otra. De hecho, el tiempo, particularmente la alternancia de día y noche, crea el ritmo de cada casa, determina el movimiento de los habitantes, sus posiciones en los distintos ambientes, crea recorridos privilegiados que establecen la posición de los equipamientos.

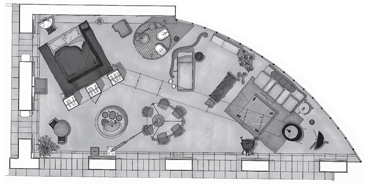
En una antigua casa torre de Pisa, la arquitecta Gabriella Ioli Carmassi ha diseñado dos apartamentos a partir de un único espacio; aquí se ve una parte del más pequeño: se ha puesto especial atención en la elección de los materiales y de las superficies que definen estas pequeñas joyas de la arquitectura de interiores (fotografía de Mario Ciampi)

La presencia de un objeto de arte personaliza un ambiente y lo caracteriza de una manera inconfundible (casa en Florencia, proyecto arquitectónico de Daniele Cariani)
A menudo es la estructura de obra la que determina el punto de partida para la distribución del espacio: las paredes, la posición de las ventanas, de la entrada, de los bajantes del baño y de las conexiones de la cocina son elementos fijos que determinan la colocación de las zonas destinadas a acciones específicas.
Estas zonas son evidentes en un piso de varios ambientes, pero en un estudio o apartamento a menudo se superponen y a veces se anulan: un sofá, centro de la zona de día, por la noche se puede transformar en cama y crear la zona nocturna. Diferentes utilizaciones se intercalan en un equilibrio de funciones que cambian a lo largo del día, hasta el punto que en el estudio o apartamento la única zona claramente definida es el baño; todo lo restante puede ser pensado y colocado donde más se desee.
Otra palabra clave para la vivienda de un solo ámbito es la versatilidad; las diferentes áreas pueden separarse por elementos decorativos no necesariamente fijos, como biombos, paneles prefabricados, estanterías fácilmente desplazables o, aún mejor, muebles con ruedas.
Las divisiones más logradas son aquellas puramente visuales, en las cuales el límite entre un espacio y otro se da por un simple cambio de color, por la presencia de un mueble, una alfombra o una luz diferente. Dos espacios que se pueden fácilmente reconocer e identificar, construidos alrededor de su propio centro, pueden estar uno cerca del otro sin que se interponga necesariamente una división material. Este efecto se logra diferenciando las superficies; suelos de diferente color y material, ligeros desniveles en la obra, en las paredes, en el techo y en el suelo: cada zona se puede definir y tratar por separado, aunque esté encajada en el conjunto de la casa. Los puntos de contacto entre los diferentes espacios caracterizados así no se tienen que esconder nunca, sino, al contrario, deben destacarse, de manera que se delimite el ambiente con claridad: por ejemplo, levantar un poco la zona de noche y separarla con una cortina sencilla de algodón ligero y reluciente o con un suave terciopelo, puede ser suficiente para crear un espacio íntimo, inviolable y secreto.

Una pared de cristal separa la zona destinada a la cama: la superficie transparente y perfecta se pone en contacto con la áspera presencia de los muros de obra vista y con el suelo de baldosas. El altísimo radiador y el gran espejo de marco dorado subrayan el carácter especial de este ambiente, suspendido entre pasado y futuro (proyecto de la arquitecta Gabriella Ioli Carmassi; fotografía de Mario Ciampi)

Llevando a cabo algunos cambios, el mismo espacio de 45 m2 se transforma en tres apartamentos diferentes.
La primera solución que se da es la más libre: un gran sofá cama en el centro, a su lado baja una chimenea modelo «batiscafo»; la mesa redonda cerca de la ventana define el espacio dedicado a comer y otras actividades de la casa; un amplio armario al lado de la cocina contiene ropa y otras cosas; una librería está adosada a la pared del baño.
En la segunda solución una pared separa la zona de la cocina de un rincón estudio puesto delante de la librería y de dos armarios altos; el sofá cama queda protegido por un biombo.
La tercera solución propone la zona nocturna o de conversación separada del comedor cocina por una pared suficientemente alta y ancha como para apoyar el sofá de un lado y las estanterías de la cocina del otro; salen dos ambientes más pequeños pero bien definidos, uno más íntimo y recogido alrededor de la alfombra redonda, el otro más abierto, alrededor de la mesa rectangular; en un rincón, cerca de la ventana, hay un espacio verde con una fuente para interiores, que colabora a la purificación del aire

En el espacio más grande de la casa-torre de Pisa, una zona del suelo presenta un desnivel y se diferencia de la otra por el uso de un pavimento distinto; las superficies divisorias se han tratado con estuco pintado con efecto mármol; la escalera de caracol de metal representa una solución de notable ligereza y limpieza (proyecto de la arquitecta Gabriella Ioli Carmassi; fotografía de Mario Ciampi)
Decorar un estudio o apartamento puede ser una experiencia agradable y llena de sorpresas: en un espacio limitado existe la obligación de identificar con milimétrica precisión las necesidades reales y los objetos que pueden solucionarlas, a través de un ejercicio de limpieza en el cual, las necesidades no realmente justificadas, no encuentran literalmente su espacio. Las exigencias principales que la casa ha satisfecho desde siempre son dormir y descansar, cocinar, comer, charlar y comunicar, guardar las cosas y cuidarse.
El mobiliario de las casas, a lo largo de la historia, ha sido siempre escaso y eficaz, incluso las casas señoriales han preferido la ornamentación y la utilización de ricos tejidos para dejar espacio a los movimientos de los hombres. En el siglo xiv, los muebles de un acomodado campesino eran un arca, un cofre y una cama; los nobles generalmente añadían también a estos muebles una mesa y una silla. Un claro ejemplo nos llega de los señores feudales de la Edad Media que, como muchos hombres de negocios contemporáneos, viajaban continuamente por sus tierras; la costumbre de moverse llevó al desarrollo de un sistema de muebles en el cual sólo la cama estaba fija en un sitio, todo lo demás eran cajas que contenían ropa y vajilla, y sillas, mesas y tapices plegables, que protegían de las corrientes de aire y decoraban rápida y eficazmente cualquier lugar en el que fueran colocadas.
Se puede decir, por lo tanto, que de la historia y de la experiencia cotidiana se pueden extraer algunas normas básicas para la decoración; la vivienda debe tener una cama o un sofá cama, una mesa, algunas sillas, una nevera, una encimera, un armario, unas lámparas y los elementos del baño.
Al organizar el espacio, deben tenerse en cuenta los desplazamientos más habituales en toda vivienda: habitar significa también moverse fácilmente y sin obstáculos. El Feng Shui, como se verá más adelante, aconseja disponer los muebles cerca de las paredes, sin crear ángulos evidentes ni barreras.
Es necesario valorar las costumbres de cada uno en relación a las exigencias cotidianas, como levantarse del sofá y abrir el frigorífico, utilizar la encimera, entrar en casa e ir al perchero o a la mesa. Los muebles y la decoración sirven para favorecer y hacer más agradables estas acciones: en el momento en que obstaculizan e impiden el movimiento, son inútiles.
MUEBLES Y RUEDAS
En los espacios pequeños los muebles pueden estorbar e incluso impedir las posibilidades que la vivienda ofrece a quien la habita: mover a gusto los objetos, sin esfuerzo y según las necesidades del momento, es, en cambio, una gran ventaja. Con cuatro ruedas montadas en la base, cualquier mueble se vuelve más manejable. Se pueden desplazar armarios con una sola mano, transformar las mesitas en carritos: cada mueble tiene de esta manera «una marcha más».

Dar un poco de movimiento a los muebles de casa es fácil; aquí se pueden ver dos métodos para el montaje de ruedas

Un apartamento proyectado por el arquitecto Massimo Vago para la exposición Decoración 2000; entre los muebles propuestos resaltan las lámparas de pie de Achille Castiglioni, la mesa de Gae Aulenti y al final el gran sofá Puesta de sol en Nueva York de Gaetano Pesce.

En el plano se pueden ver la zona de noche protegida por un armario, el baño y la cocina resueltos con dos islas redondas y separadas; muchos muebles están sobre ruedas, como la gran mesa auxiliar delante del sofá
La cultura del bienestar se ha fijado desde hace tiempo en la importancia del efecto ejercido por la luz en el organismo. Las indicaciones se dirigen a una utilización privilegiada de luces vivas, entre las cuales la mejor es, naturalmente, la solar. La luz del sol no tan sólo es imprescindible para la visión, sino que tiene la capacidad de regenerar todo el cuerpo. Si es posible, se tiene que aprovechar con la utilización de ventanas adecuadamente grandes, de acabados claros en los muros y en los puntos que se necesitan más luminosos; además, en los ambientes más pequeños, la elección de un suelo claro puede influir enormemente en la luminosidad de toda la habitación.
Un elemento importante para la difusión de la luz natural es la utilización de las cortinas. Sencillas, casi transparentes, ligeras, deben ser consideradas como difusores de luz y por esta razón es necesario escoger atentamente el color: el blanco ayudará más a que los rayos solares reluzcan; un tono naranja dará calidez a cualquier tipo de ambiente haciéndolo agradable e íntimo; el verde es útil en las tardes de verano para refrescar la habitación cuando la temperatura exterior es muy elevada.

La luz es protagonista en este pequeño espacio; además, la elección del suelo de madera pintado de blanco contribuye a iluminar todo el ambiente. Un corte vertical en la pared del baño crea nuevos puntos de vista y refuerza la perspectiva de las vigas del techo dejadas al natural (proyecto de la arquitecta Luisa Olgiati)

Varios puntos de luz crean ambientes insospechables, zonas de sombra y perfiles no vistos: en particular en la zona de conversación son adecuadas las luces reflejadas por las paredes y el techo (proyecto arquitectónico de Stefano Mingaia; fotografía de Graziano Giambastiani)
Si la luz del sol llega de un solo lado o es insuficiente, se tiene que prever una iluminación artificial que no produzca zonas de sombra no deseadas. Entre los muchos tipos de iluminación disponibles es mejor evitar las luces de neón, que pueden producir irritación ocular si se utilizan durante muchas horas.
En una vivienda de un solo ambiente, es útil tener una luz general que la pueda iluminar totalmente, pero que se utilizará únicamente por razones funcionales; se puede diferenciar cada zona con una luz especial y más definida. En general, es mejor iluminar directamente la mesa con una lámpara colgada encima o apoyada en su superficie, en el caso que se utilice también como escritorio. En la zona de estar es muy adecuada la luz indirecta, reflejada desde las paredes o el techo; también puede esconderse detrás del sofá, consiguiendo, de este modo, dar mayor profundidad al entorno. Se comercializan muchas variedades de lámparas de pie, de diferentes medidas, con luz halógena regulable que permite dosificar la intensidad luminosa según los propios gustos, pasando de una luz íntima y cálida a otra fuerte e intensa en su máxima potencia.
Si, en cambio, se prefiere la luz viva a la artificial, puede optarse por el uso del fuego, que en una vivienda puede conseguirse, de forma segura e inocua, gracias a las velas. Un espacio reducido puede iluminarse suficientemente con un reducido número de luces vivas colocadas cerca de superficies claras. Es fácil imaginar la luminosidad intensa que caracteriza un lugar, sobre todo si no es grande, cuando se ilumina con luces vivas, móviles y doradas: el espacio se dilata, vibra, se abre a otras dimensiones.
CUÁNDO NACIÓ LA BOMBILLA
El origen de la luz eléctrica se sitúa en Inglaterra. En 1841, Frederick de Molyens construyó en Londres el primer prototipo de bombilla capaz de funcionar, con un hilo de platino. En 1858, Michael Faraday con una lámpara eléctrica hizo funcionar el faro de Dungeness, en la costa meridional de Inglaterra. Durante 1878, Joseph Wilson Swan patentó una ampolla de vidrio con un hilo de carbono: la bombilla. El año siguiente, en los Estados Unidos, Thomas Alva Edison depositó una patente similar a la de Wilson, y tuvo la idea de aprovecharla para la iluminación pública. La iluminación de neón aparece en 1909. En 1914 se perfeccionó la bombilla de incandescencia, en la que se utilizan tungsteno para el hilo y gases inertes en la ampolla de vidrio.
En los primeros años del siglo xx se puede decir que la luz artificial ya había nacido.

La bombilla se encuentra en el interior y la luz, reflejándose sobre la superficie espejada de la lámpara, envuelve el entorno, decorando todo el ambiente (lámpara K, diseño de Memory Hotel Studio)

Desde finales del siglo xix la ciencia de la iluminación ha hecho muchos progresos; esta es una pequeña lámpara para la mesita de noche con fibra óptica (diseño de Beppe Facente)

Entre las formas que puede adoptar la luz, una de las más sugestivas es la de la lámpara amuleto, cuyos agujeros crean una decoración luminosa para paredes (diseño de Officina Indigena)
LAS LUCES VIVAS
Recuperar en las casa el fuego y las velas es una experiencia que cambia literalmente la manera de percibir el espacio. Las velas iluminan, perfuman y animan cualquier espacio; existen muchos tipos y
se pueden fabricar en casa con utensilios muy sencillos.
Las más fáciles de crear son las enrolladas: además de la mecha y de unas tijeras, es necesaria sólo una hoja de cera de abejas o de parafina de unos 2 o 3 mm de grueso, que se puede encontrar en las tiendas especializadas y en algunas herboristerías. Es necesario cortar la hoja, teniendo presente que su lado corto constituye la altura de la vela y el largo su grosor. Cortada la mecha un par de centímetros más larga que la vela, se apoya sobre el lado corto y se enrolla, bien apretada a su alrededor, la hoja de cera; cuanto más se estreche, más durará la vela.
Un simpático efecto se logra cortando la hoja en triángulo, puesto que al enrollarla se forma una vela en espiral que adelgaza en su extremo superior.
Para más informaciones acerca de la realización en casa de las velas se puede consultar Cómo realizar y decorar las velas, de Massimiliano Dini, Editorial De Vecchi, 1998.

La vela es un pequeño fuego vivo en la casa, que hace ver de una manera completamente diferente el entorno (diseño de Gianni Veneziano)
La elección de los acabados y de las paredes es muy importante para determinar el carácter que tendrá la vivienda. Después de experimentar con muchos materiales diferentes, y teniendo en cuenta sobre todo los aspectos relacionados con la salud, la arquitectura más actual tiende a utilizar preferentemente: la piedra, la madera, la cerámica, el ladrillo y el linóleo. Una de las cualidades más importantes que deben reunir las paredes y suelos es la de poder transpirar y no constituir un cierre hermético, como sucede con acabados plásticos o barnices y pegamentos sintéticos.
La piedra nunca ha dejado de utilizarse; además del mármol clásico, el pórfido, con sus tonalidades pardo-rojizas, ofrece bellísimas oportunidades para enriquecer cada sector.
Para el suelo del baño y el área de cocina es preferible optar por las baldosas, evitando así los problemas que ocasiona el agua; de todas formas, un suelo de madera bien hecho y mantenido con cuidado puede resultar satisfactorio y de claro efecto estético.

En el proyecto de este apartamento en Pisa diversas y contrastadas superficies se armonizan perfectamente en un equilibrio dinámico; el encuentro entre el cristal y la piedra, entre el ladrillo del suelo y el estuco pintado de la pared del baño es claro y preciso; también la madera de las vigas del techo se une al ladrillo visto de la pared del fondo (proyecto arquitectónico de Gabriella Ioli Carmassi; fotografía de Mario Ciampi)

En el plano de los dos apartamentos colindantes se nota la preferencia por las formas puras del círculo y del cuadrado; la misma simplicidad del proyecto se refleja también en su puesta en práctica

En la axonometría se puede ver la división del espacio; en el apartamento más grande el cristal separa la zona destinada a la cocina, en el otro la de la noche (proyecto arquitectónico de Gabriella Ioli Carmassi)
En caso de superficies poco amplias, la mejor elección suele consistir en utilizar un único pavimento para todo el suelo, aunque esta solución impide definir de manera eficaz las diversas zonas que se desea establecer. Sin embargo, pueden resultar de gran ayuda las alfombras y las esteras en fibra vegetal para lograr resultados inmediatos: el espacio se determina de manera clara con la elección de una alfombra, percibida como centro de la zona en la que se encuentra.

Una pequeña parte del suelo está levantada y tratada con otro tipo de ladrillo; los volúmenes puros están destacados por la decoración marmorizada de las superficies de las paredes (proyecto arquitectónico de Gabriella Ioli Carmassi; fotografía de Mario Ciampi)

El interior del baño, cuyo depurado diseño incluye grifería y lavamanos de bronce, contrasta con la vieja pared de ladrillo visto (proyecto arquitectónico de Gabriella Ioli Carmassi; fotografía de Mario Ciampi)
La presencia de una escalera en una vivienda de un único ambiente causa un impacto visual suficientemente importante como para conferir al conjunto una nuevo aspecto.
Las escaleras de caracol son muy utilizadas gracias a sus dimensiones reducidas; de hecho, las más pequeñas llegan a tener un diámetro de 90 cm solamente.
De todas formas, también las escaleras lineales, gracias a un especial juego de escalones, logran llegar a una anchura mínima de unos 70 cm.

Una escalera de caracol que ha sido ganada al lugar donde antes había la despensa (proyecto arquitectónico de Luisa Olgiati)

En el dibujo se pueden ver las medidas y la estructura de la escalera armario mostrada en las ilustraciones de la página de al lado
En esta escalera de cajones de madera y tirantes metálicos, todo el espacio posible se aprovecha perfectamente (proyecto arquitectónico de Rocco J. Mazziotta)

Debajo, detalle de la escalera: los tirantes metálicos, fijados al escalón de madera, garantizan su estabilidad (proyecto arquitectónico de Rocco J. Mazziotta)

La escalera mínima, obtenida con la superposición de los escalones, está escondida aquí por una mampara corredera de madera; el espacio debajo de la escalera se utiliza como trastero (proyecto arquitectónico de Paolo Simonetti)

Otra escalera contenedor, más cercana al modelo japonés, en madera de arce (proyecto arquitectónico de Alexander Huber)
UN ARMARIO PARA SUBIR
El kaidan, muy común antiguamente en la provincia japonesa de Omi, es un armario con forma de escalera o, viceversa, una escalera aprovechada como mueble, estantería o contenedor. Se utilizaba sobre todo para guardar la vajilla, los manteles y las lámparas.

Un antiguo kaidan auténtico actúa como catalizador en este pequeño apartamento restaurado en el centro de Milán. El mueble-escalera lleva al piso superior, donde se ha organizado una zona de trabajo, como se ve abajo a la izquierda. Abajo a la derecha, una estantería, hecha a medida, protege el hueco de la escalera (proyecto de Marco Zanuso jr.; fotografías de Joe Oppedisano)

En la elección de puertas y ventanas, dos elementos básicos del equipamiento y la seguridad de la casa, se tienen que valorar bien las numerosas posibilidades que se ofrecen hoy en día. No es obligatorio que una puerta se tenga que abrir necesariamente girando sobre los pernos, sino que también puede desaparecer dentro de la pared o deslizarse discretamente a lo largo de ella. Si no hay mucho espacio disponible, puede resultar interesante ahorrar el metro cuadrado que una puerta clásica dejaría inutilizable.
Las ventanas presentan aún más posibilidades de apertura que las puertas. Normalmente, en un apartamento no hay más que dos ventanas que suelen ser de apertura única. Además de iluminar, las ventanas tienen el papel básico de ser las principales renovadoras del aire: abrir las ventanas para cambiar el aire cada hora pone fin a cualquier problema de contaminación interna. Si sólo hay una ventana, puede resultar útil escoger una solución doble, que permita la apertura clásica hacia el interior, «a la francesa», con el batiente en vertical, y la «abatible», en la que el batiente gira sobre el eje horizontal inferior; esta última solución permite tener entreabierta la ventana y renovar el aire de manera continuada.

Una tela gruesa y decorada puede sustituir las persianas de las ventanas, como en muchas casas del norte de Europa (tejido Aton, de Haas)

El esquema en sección y la vista frontal de una puerta corredera empotrada

Esquema de la ventana abatible
A. Abatible con bisagra inferior; B. Abatible con bisagra superior; C. Abatible con tres bisagras
Las casas están cambiando, no gracias a los arquitectos, sino porque están modificándose las costumbres de quienes las habitan. Se ha desarrollado un enorme interés hacia lo que, de manera genérica, se define como «bienestar» y que se refiere a la salud, la ecología, al cuidado del cuerpo y el espíritu, a una nueva idea de naturaleza que ve a los hombres como partes de un solo organismo. Muchos proyectistas han empezado a trabajar en esta dirección, definiendo un campo, la «arquitectura natural» o «arquitectura bioecológica».
Se trata de hacer más sencilla y transparente la acción de habitar, empezando por la salud y el bienestar «biológico» del hombre. Se encuentran indicaciones de este tipo a lo largo de todo el libro, pero aquí se toma en consideración un espacio tipo, proyectado aplicando algunos de los principios de la bioarquitectura.
UN ESPACIO TOTALMENTE ECOLÓGICO de Gianfranco Carignano
Proyecto arquitectónico de Giordana Trovato, con la colaboración de Chiara Maggiore

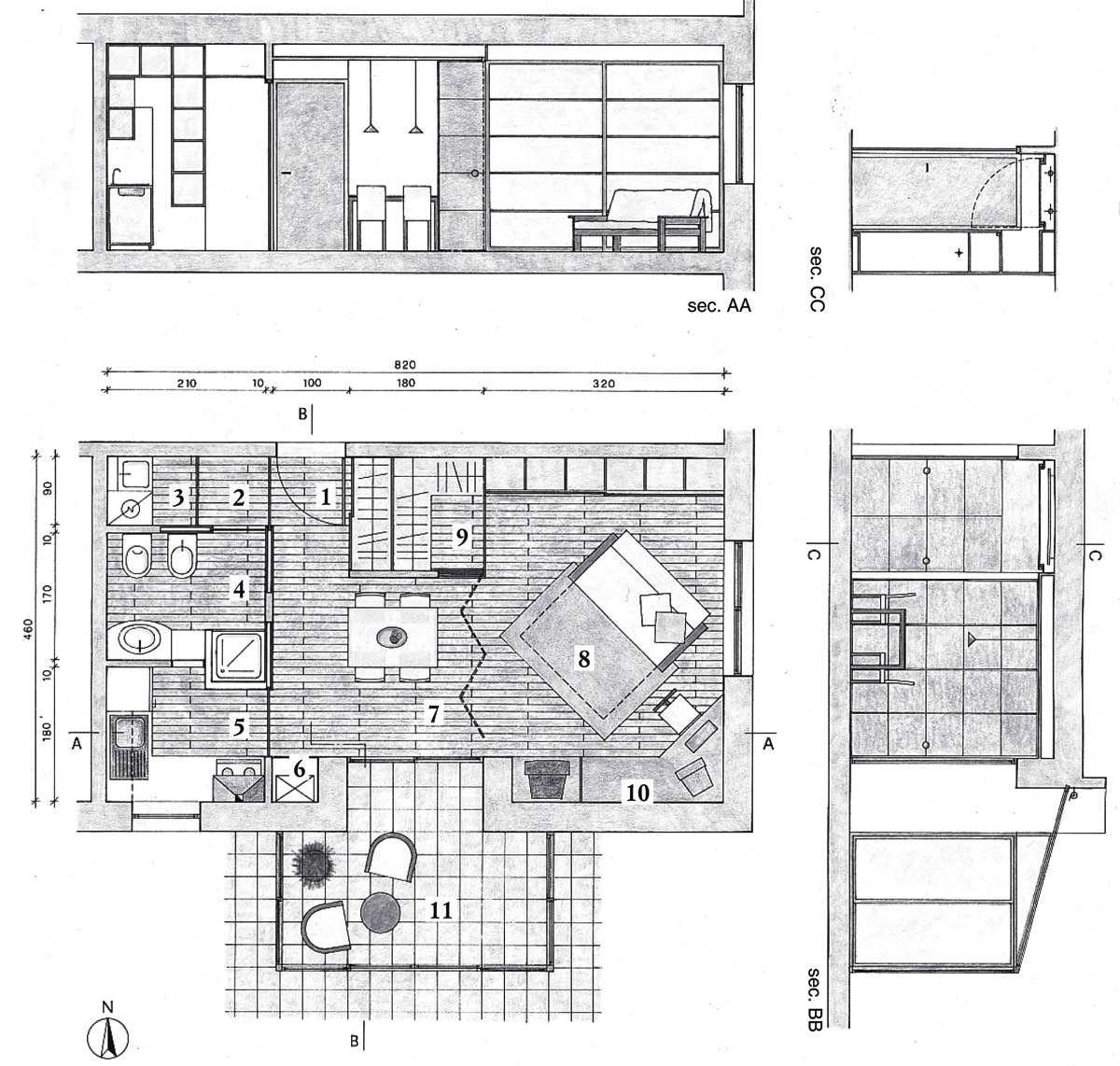
El plano y las secciones del proyecto del apartamento ecológico: 1. entrada; 2. vestíbulo del baño; 3. pequeño lavadero; 4. baño; 5. cocina; 6. caldera; 7. zona del comedor; 8. sala de estar; 9. armario vestidor; 10. rincón de estudio; 11. invernadero.
En las secciones se ve el plafón luminoso sobre la entrada: una pantalla de cristal opalino difunde la luz de dos tubos fluorescentes de espectro completo; la pantalla se puede retirar para su mantenimiento
Considérese una planta tipo de forma rectangular aireada e iluminada gracias al los vanos abiertos en las caras sur y este, quedando las paredes ciegas orientadas hacia el norte y el oeste. La solución propuesta prevé en el lado oeste, al lado de la entrada, un núcleo de servicios y, en la parte central, un bloque de equipamiento formado por un armario en el lado de la entrada y un vestidor hacia la zona de la sala
de estar y la cama, que se convierte en el elemento que define la distribución del espacio.
Hacia el sur, entre el bloque de equipamiento y la vidriera, se ha organizado la zona para comer; en la pared que delimita el bloque de armarios se integra un «paquete» de cuatro paneles de madera que pueden deslizarse a lo largo de las vías puestas en el techo para crear, si fuera necesario, una separación entre la zona para comer y la zona de la sala de estar y la cama. Aquí encuentran su lugar un amplio sofá fácilmente transformable en cama con cabecera orientada hacia el nordeste, una librería que llega hasta el techo con puertas correderas, para evitar que el polvo se acumule, y, en un rincón, un estudio con mesa de trabajo, silla ergonómica, PC y una columna equipada para equipo de música, televisión y vídeo.
La vivienda, situada en el último piso, dispone de una terraza, en la que hay un pequeño invernadero arrimado a la pared sur para aprovechar la acumulación de calor en invierno y que se puede transformar en un pequeño jardín. Durante el verano las vidrieras, que se pueden abrir, dotadas de adecuadas pantallas como cortinas o plantas trepadoras de hojas caducas, garantizan la aireación y la protección de la radiación solar.

En el dibujo se ponen en evidencia los acabados del apartamento ecológico en el que las maderas se tratan siempre con protecciones naturales (aceites vegetales, cera de abejas): 1. suelo de madera con tablas clavadas sobre listones fijados con argamasa de cal hidráulica; 2. tintes a base de cal apagada y tierras naturales; 3. puertas y ventanas de madera y cristales termoaislantes; 4. puertas de madera maciza. Además, en el dibujo puede observarse la distribución de los muebles: a. sofá-cama con estructura de madera, colchón de fibras naturales y cabecera orientada hacia el nordeste; b. asiento ergonómico con apoyo en las rodillas; c. estanterías cerradas con puertas correderas de cristal; d. armario-vestidor con puertas y repisas de madera; e. muebles realizados preferentemente con materiales naturales (madera, mármol, cristal: se tienen que evitar, sobre todo en la cocina, el tablero de contrachapado, medium density, aglomerado y los barnices de acabados, ya que calor y vapor facilitan la emisión de compuestos orgánicos volátiles, como el formaldehído); f. alfombra en tejido natural (lino, algodón, lana, sisal, yute, coco y otras fibras vegetales); g. separación comedor-cama en las horas de descanso, con puerta plegable de madera
Uno de los factores característicos de esta nueva forma de entender la vida y la vivienda consiste en aprovechar las enseñanzas derivadas de la convivencia entre culturas. La apertura de la cultura europea a otras grandes tradiciones como la india, china y japonesa, y las investigaciones de la antropología y la etnología sobre la culturas «arcaicas» han dado paso a la difusión en occidente de nuevas ideas y tradiciones, en otros sitios ya consolidadas por siglos de práctica.
El Feng Shui («viento y agua») es una de las más antiguas prácticas de intervención en la vivienda: desarrollada por los chinos a partir de las enseñanzas de uno de los más antiguos textos de la humanidad, el I Ching, el «libro de las mutaciones», es normalmente practicada en la distribución de los espacios en las habitaciones y en los lugares de trabajo. Con la ayuda de un experto, se conocerá la práctica del Feng Shui y se verá cómo podría ser una vivienda de un solo ambiente ideal según los consejos del arte «del viento y del agua».

Otras maneras de vivir, otras culturas se superponen a la occidental; en el centro de Milán, cerca de los Canales, para esta casa despacho constituida por un único ambiente han sido utilizadas técnicas y materiales nuevos y muy antiguos: arcilla y cera de abejas para las paredes y una parte del suelo (proyecto de Speciale Terra, de los arquitectos Tarshito y Nicola Facchi; fotografía de Maniscalco)
Por Carlo Amedeo Reyneri
Según el pensamiento chino, el mundo está impregnado de energía, la linfa vital que permite la existencia. La interacción energética entre el hombre y su entorno determina la manera en que los seres vivos perciben el lugar que habitan y esto influye de manera positiva o negativa en sus vidas.
El arte del Feng Shui, literalmente «arte del viento y del agua», ayuda a armonizar el hombre y su entorno, ya se trate del espacio abierto donde se colocará una casa o de una zona limitada dentro de una gran vivienda. Según el Feng Shui, las casas son proyecciones externas de quien las habita. Armonizando pues el exterior se puede llegar a un buen equilibrio interno. El Feng Shui armoniza el flujo natural de las energías, cuidando en particular las formas del entorno y sus partes constitutivas, como la posición de las puertas y de las ventanas, y ocupándose de la colocación de los muebles básicos, por ejemplo, camas, escritorios y mesas.

La costumbre oriental de utilizar el suelo para sentarse favorece posiciones más correctas y cómodas; una gran alfombra y una mesa baja que sigue su perímetro forman un rincón donde permanecer. El pan de oro utilizado para los acabados del gran óvalo del techo con ágatas y para los floreros es uno de los símbolos de la luz y del cielo (proyecto de Speciale Terra, de los arquitectos Tarshito y Nicola Facchi; fotografía de Maniscalco)
El estudio o apartamento de un solo ambiente es un espacio muy particular, donde se concentran todos los aspectos de la personalidad de quien lo habita y tienen por tanto que estar bien representados; por esta razón el Feng Shui ofrece algunas sugerencias.
■ La entrada tiene que ser cómoda para permitir que la energía penetre fácilmente; a veces, desgraciadamente, estos locales pequeños resultan del fraccionamiento de espacios grandes y se dedica poco cuidado a su recibidor. La energía tiene que pasar a través de una puerta regular, perfectamente visible desde el pasillo de acceso.
■ La energía tiene que penetrar el espacio sin encontrar obstáculos; es aconsejable no colocar armarios demasiado cerca de la puerta, ni obstáculos que dificulten la visión del conjunto desde la entrada, considerando que lo que se ve desde el umbral es el recorrido que sigue la energía que entra. Sin embargo, un exceso de espacio libre entre la entrada y la ventana de la pared opuesta impediría aprovechar bien la circulación de la energía, puesto que esta sería excesivamente rápida. El agua, fuente de vida, tiene que ser llevada por el viento, la energía del movimiento, pero si el viento es demasiado rápido, el agua se lo lleva todo.
■ Desde la puerta debería verse el espacio de relación con el exterior, la sala de estar y zona de la cocina. Esto determina unas relaciones equilibradas con las otras personas y con la comida; a menudo, el comedor es también donde uno se sienta a charlar con los amigos; de este modo las dos funciones se entrelazan con naturalidad.
■ Si no es posible mantener el baño lejos de la puerta de entrada, será necesario aislarlo bien. El baño, además de ser un punto de entrada del agua, constituye también una vía de salida para la energía. Situado delante de la puerta de entrada ocasionaría rápidas pérdidas de la energía necesaria.

En un pequeño nicho en la pared de tierra encuentra su lugar una pirita (proyecto de Speciale Terra, de los arquitectos Tarshito y Nicola Facchi; fotografía de Maniscalco)
■ Durante el descanso el hombre desea sentirse protegido, como si volviera al útero de la madre. La cama tiene que estar separada de la puerta de la entrada; a veces es suficiente una librería para dividir el espacio, dejándola entrever, sin aislarla en el centro de la habitación.
■ La zona de estudio, aun siendo de dimensiones reducidas, debe tener su propio espacio; no es conveniente mezclar la comida o los momentos de intimidad con el trabajo.
Se ofrecen ahora algunos consejos para hacer de la vivienda el espejo de la personalidad de quien lo habita.
■ No se deberían poner los equipos electrónicos demasiado cerca de la cama, ya que su campo magnético interfiere con el campo del organismo humano durante todo el periodo del descanso.
■ Es conveniente aprovechar la luz natural tanto como sea posible, evitando colocar los muebles cerca de las ventanas.
■ El uso de colores claros en paredes y techos crea una sensación de mayor amplitud.
■ Deben cuidarse los detalles y no dejar nada a la casualidad: en los espacios reducidos todo está a la vista y lo que no resulta agradable resta energía en lugar de proporcionar bienestar; es como si uno se pusiera un bonito vestido y llevara limpio un solo zapato: este olvido produciría un continuo estado de nerviosismo.
■ Se reservará un espacio para colocar un poco de verde, aunque sea sólo una pequeña maceta: se trata de no perder por completo la importante relación con la naturaleza.
La vivienda de un solo ambiente representa hoy en día una solución muy común, ya que las nuevas formas de vida han contribuido a la disminución de los amplios espacios que hace unos años eran habituales.
Pero como el Feng Shui identifica en la casa las diferentes habitaciones aptas para los diversos usos domésticos, en el espacio que consideramos no deben descuidarse los aspectos que son propios de la naturaleza humana y que es necesario encontrar en el entorno en que se vive.
La sensibilidad oriental, que ha permanecido inmutable a lo largo de los siglos, contribuye a hacer que este tipo de vivienda se convierta en algo personal y exprese la armonía de quien lo habita con el ambiente que lo rodea.

Una estantería realizada en madera y cerámica incluye originales contenedores en forma de jarrón (proyecto de Speciale Terra, de los arquitectos Tarshito y Nicola Facchi; fotografía de Maniscalco)
APLICANDO EL FENG SHUI
A partir de las sugerencias que el arte chino del Feng Shui ofrece para armonizar la casa, se presenta aquí un ejemplo de cómo se puede distribuir racionalmente un espacio pequeño teniendo en cuenta la energía de las diferentes zonas.
El espacio pensado tiene una superficie de unos 40 m2, en los que se han colocado la zona de día, la cocina con un rincón para la mesa, el dormitorio con armario vestidor y un baño completo.
Paso a paso se analiza ahora cómo se puede vivir de la mejor manera en este pequeño, pero bien distribuido apartamento.
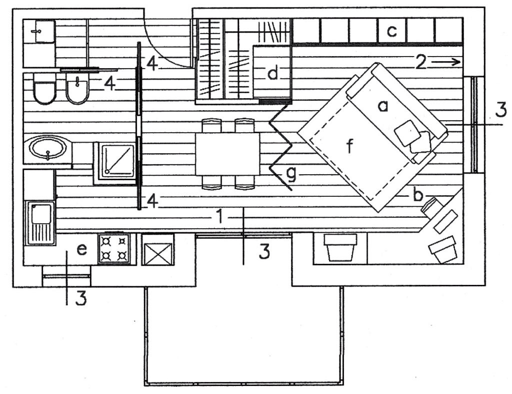
(1) La energía penetra en el apartamento a través de la puerta de entrada y, sin encontrar obstáculos, se difunde en el ambiente. Delante de la puerta se abren los espacios de relación con el exterior, es decir, la cocina y la sala de estar. No hay muebles que obstaculicen el flujo regular de la energía y tampoco recorridos demasiado directos que la dejen salir a través de las ventanas, ya que no se encuentran sobre el eje de la entrada principal.
(2) Si se ponen algunas plantas en un rincón, el entorno se hará en seguida más acogedor, y también los huéspedes se encontraran bien y relajados.
(3) El espacio de la sala se ve bien desde la entrada y está organizado alrededor de una mesita oval, que favorece la intimidad y evita los ángulos de una fría mesa cuadrada.
(4) La cocina ofrece, aunque sea de dimensiones reducidas, una equilibrada relación con el momento de encuentro alrededor de la mesa. Es importante que esta zona se aparte un poco del eje de la entrada para evitar que la atención se concentre directamente en el «comer», reflejando así un excesivo interés por la comida por parte de quien habita el piso.
(5) La puerta del baño se encuentra en posición lateral, de manera que esta zona, por la que fluyen el agua y la energía de la casa, no funcione como un pozo en el que precipite la alegría de vivir, y con ella todas las aspiraciones y los proyectos.
(6) Detrás de un ligero biombo está colocado el dormitorio: esta zona mantiene una cierta intimidad, ya que es conveniente sentirse seguro cuando se duerme, sin que se produzca, sin embargo, una interrupción de la continuidad entre las distintas zonas. El espacio en el que por la noche se encuentra amparo, como en el útero materno, recibe así toda la energía que las relaciones sentimentales deben tener.
(7) El armario vestidor ayuda a colocar todo aquello que, mal dispuesto y en desorden, rompería la armonía del conjunto. Por otra parte, el hecho de no tener armarios pesados en los espacios reducidos favorece de manera muy notable la armonía de las diferentes zonas y no obstaculiza la circulación del flujo vital.
(8) En el extremo de la sala de estar se ha colocado un pequeño pero indispensable estudio, con el escritorio y las estanterías, sobre las cuales ordenar los documentos de casa y los libros preferidos; aquí es posible trabajar con un pequeño ordenador, sin que interfiera con la preparación de la comida o con un momento de intimidad en el dormitorio.
Una vivienda organizada de este modo consigue proporcionar un pequeño espacio a cada una de las funciones que se realizan en ella, sin que ninguna predomine y equilibrándolas todas. Puede personalizarse el espacio con la colocación de algunos detalles: una bonita cortina puede matizar la luz del sol en las horas más cálidas, o una tela verde para los sofás puede disponer el alma a cordiales relaciones. Colores armoniosos en las paredes, una buena iluminación durante el atardecer, radiodespertador, teléfono y televisión fuera de la zona de la cama son elementos que deben tenerse en cuenta, para hacer de un espacio racional y ordenado un agradable lugar, donde encontrarse a sí mismo con amor.

El plano de un apartamento proyectado según las recomendaciones del Feng Shui:
1. entrada; 2. planta de interior; 3. zona de día; 4. zona de cocina; 5. baño; 6. zona de noche; 7. armario-vestidor; 8. zona de estudio (proyecto arquitectónico de Carlo Amedeo Reyneri)
Antes de entrar en el análisis de las diferentes zonas de la vivienda de un único ambiente, es necesario echar un vistazo a los resultados de la investigación acerca de las formas de habitar, de sus últimas conquistas, para poder sacar así las mejores sugerencias.
Un espacio «mágico»
«Jugando al escondite» es un espacio proyectado por los arquitectos Dante Donegani y Giovanni Lauda, profesores de la Domus Academy de Milán, con Iae Kyu y Elena Mattei.
Se trata de una habitación cuadrada en la que los muebles y los objetos desaparecen según el mando que se acciona, liberando completamente el espacio, quedando así:
Las paredes convertidas en contenedores liberan el espacio de la casa. Las actividades domésticas quedan encerradas dentro de elementos extraíbles de dimensiones estándar, a modo de cajas equipadas a medida. El amor por el vacío no excluye, de esta manera, el placer de consumir. La complejidad y la riqueza de la casa encuentran un orden provisional. Los muebles desaparecen, reducidos a negativos, calcos o cavidades plasmadas de acuerdo con las formas de quienes las habitan, o se integran los electrodomésticos en los armarios que desaparecen. La naturaleza, encajada y compactada (invernadero, pajarera, acuario), se vuelve paisaje artificial que actúa como mediación entre la casa y la ciudad.
Los resultados extraídos de este proyecto se pueden sintetizar así:
■ se libera el espacio integrando equipos, muebles, productos y utensilios, concentrando recursos y funciones favoreciendo una mayor movilidad doméstica, estableciendo nuevas jerarquías y nuevas relaciones entre las actividades domésticas y los muebles en una casa que ya no se divide en ambientes funcionales;
■ permite realizar un piso más personal, organizando la complejidad y la riqueza de la vivienda de acuerdo con un orden provisional y temporal; el espacio se transforma según las necesidades individuales, entre nuevos servicios y viejos rituales;
■ elimina las diferencias entre dentro y fuera, dilatando las funciones de la casa hacia la ciudad, realizando equipamientos para vivir a la vez dentro y en el entorno;
■ libera la vivienda de su dimensión patrimonial y deja espacio al placer de consumir.

Plano del espacio «Jugando al escondite»; los elementos de decoración están contenidos en armarios escondidos, que aparecen según las acciones que se quieren desarrollar (fotografías de Roberto Baldessarri)

Un hipotético catálogo de armarios escondidos: 1. acuario-pajarera;
2. sala de estar-TV; 3. buhardilla-caja de herramientas;
4. despensa; 5. frigorífico dispuesto para tentempiés fríos; 6. trabajo doméstico; 7. gimnasio; 8. relax; 9. almacén; 10. estudio; 11. música; 12. rincón para juegos infantiles

El espacio completamente vacío (fotografía de Roberto Baldessarri)

El espacio se transforma: aparecen la cama y el estudio (fotografía de Roberto Baldessarri)

De las paredes puede salir una estantería con ánforas y otros elementos (fotografía de Roberto Baldessarri)

El módulo de relax se apropia del espacio vacío (fotografía de Roberto Baldessarri)
Un local en un jarrón
Otros campos de investigación son los que trabajan en un tipo de relación con la naturaleza más inmediato y profundo.
El estudio Speciale Terra, de los arquitectos Tarshito y Andrea Facchi, ha elaborado dos hipótesis de locales en total armonía con la naturaleza; describen de esta manera el estudio:
¡JARRONES en la arquitectura, qué interesante! Treinta radios convergen en el cubo de la rueda, pero es el agujero central el que la hace útil. Moldeamos la arcilla para crear un jarrón, pero el vacío central hace útil el envase. Dibujamos puertas y ventanas en las paredes de los edificios: son estas aberturas que los hacen útiles. «Por esta razón la plenitud tiene su función, pero la utilidad esencial pertenece al vacío» (Lao Tse).
La manera correcta de escuchar la esencia de la existencia consiste en hacerlo en el interior de un jarrón que no está roto, que no está sucio, que no está boca abajo.


El hombre pensado como parte integrante de la naturaleza necesita modelos de vivienda acordes con ella. Las últimas tendencias toman como modelo las formas, materiales y usos más naturales (ilustraciones de Francesco Ventura)