En los capítulos siguientes se describirá el desarrollo del diseño urbano como modo de pensar y de hacer ciudades, caracterizado por objetivos fundamentalmente concretos y operacionales hacia el proyecto urbano.
Hasta la Revolución Industrial, la problemática giraba en torno al diseño formal o a la «arquitectura de ciudades», y ésta tendía a la gran construcción. Entrado el siglo XIX, sin embargo, los procesos analíticos propios de la Revolución Industrial y de las ciencias biológicas, físicas y sociales, cuestionaron la necesidad de «un punto de vista verdadero», en las palabras de Le Corbusier. Al escribir Joseph Hudnut su introducción al texto publicado por CIAM en 1942, se refiere a la arquitectura como una «especial cualidad de orden», con «bases más firmes que una lógica de la forma, una recompensa más profunda que una experiencia estética» y de una arquitectura que «asume el verdadero carácter y dirección de nuestra cultura cívica en evolución».
Considerar a la ciudad como un objeto formal era un enfoque clásico. En el comienzo de su «Discurso del Método», Descartes describía a la ciudad perfecta: «.... tan geométrica y regular como un plano de arquitecto...» Desde este enunciado cartesiano se prefiguró la concepción racionalista y abstracta de la ciudad del Barroco y la transición ecléctica que la continuó hasta su agotamiento como modelo al aparecer la Revolución Industrial. Las bases del cuestionamiento que se inicia en nuestro siglo con el CIAM sobre la ciudad «formal» de los siglos anteriores, se presentan elocuentemente en el texto introductorio de J. Hudnut1.
«...Trazada como el jardín de Versalles en una trama rígida y geométrica, esta ciudad capturaría en una red fija de líneas paralelas y radiales, todos estos confusos y contrarios organismos que la extraña evolución de la sociedad cívica había traído a la existencia».
«En torno a la cruz mágica de las coordenadas, los monumentos públicos y las viviendas privadas de esta ciudad, las tiendas, teatros e industrias, las escuelas, las prisiones y las iglesias, danzarían eternas cuadrillas con la precisa elegancia de líneas y puntos de un teorema de Euclides. Una realidad irracional, un fenómeno biológico en su origen y en su desarrollo, iba entonces de ese modo, a hacerse conformable a una creación pura de la mente» (figura 2.1).

Figura 2.1
Sector del plano de la ciudad de Washington, D.C., Publicado en «La práctica del urbanismo». Reproducción de la City Parks Association, Filadelfa.
«Aquí entonces encontramos una sanción filosófica para el origen de la ciudad clásica, ‘clara et distincta perceptio’, que los arquitectos habían conjurado de la turbulenta cultura de Grecia y Roma. El orden y la serenidad que habían descubierto en el Partenón y en las columnatas de los foros de Augusto y Trajano, expandidos en la más vasta trama de las ciudades, deberían dar forma plástica a esta lógica cartesiana que se había expandido por Europa con la fuerza lenta e irresistible de un glaciar. La estructura de las ciudades podría ser analizada tan fríamente como las abstracciones de la geometría y resuelta tan exactamente en sus partes componentes. Estas, habiendo sido purificadas en todo lo que podría ser iluminado por la razón, podrían ser rearmadas en los cielos matemáticos, tan claras como un cristal. Después de esto, la vida del hombre, habiendo sido sometida a una purificación conmensurable —habiendo sido liberada del error llamado pasión y de ese accidente llamado crecimiento— podría ser invitada por los arquitectos a asumir en sus frescos teatros, el medido, bien proporcionado y grácil compás que es lógicamente su destino».
«No fue a menudo, ni siquiera en el siglo XVIII, que la idea pudiera escapar de la tinta y papel, a la piedra y espacio. Sin duda alguna, modeló un fragmento de París, y ayudada por accidente, soldó el pabellonado Louvre a la Plaza de la Concordia y a la Plaza de L’Etoile —y sabemos cómo en Nancy le dio unidad espacial a las gráciles plazas de Hervé de Cerny. Pero la calidad del orden aquí establecido no penetró las vastas zonas sin orden que envolvían a estos oasis de paz geométrica...»
«Olvidadas de la arquitectura, las ciudades abrían sus anchos brazos hacia afuera en una expansiva penumbra de desorden. El plan de Washington, que trasladó a la escultura La Constitución Americana, aprisionó en un molde férreo las nacientes energías del gobierno, y sin embargo, su poderosa geometría hace mucho más evidente ese caos circundante, que amenaza en cada crisis de perforar los no demasiado perfilados límites que separan el plan calculado de la ciudad impredecible» (figura 2.2).
« ¿Cómo puede suceder que este ideal de forma cívica tan persistente a través del siglo XIX, esta perfecta ciudad planificada y dibujada en innumerables documentos, haya dejado una huella tan débil y tan equívoca en el mundo actual? Las demandas que hizo sobre nuestra imaginación son suficientemente evidentes; las satisfacciones estéticas que permitió, no pueden haber sido totalmente ilusorias; y la lógica de la cual provenía, era por lo menos hasta el momento, sin fallas».
«Nunca llegará el día en el cual los hombres no deseen sobrepasar su mundo desordenado y fragmentario con un esquema coherente y finito de las cosas, o edifiquen su Versalles privado, protegido contra el tumulto y la incertidumbre. Tampoco podemos descubrir el origen de nuestra falla en la idea y principio de la arquitectura, cuyas antiguas promesas permanecen, incluso en este torturado momento, tan válidas como siempre. Para persuadirnos de esto, tenemos sólo que entrar a los portales de la Catedral de Chartres».

Figura 2.2
Roma: Sección del plano G.B. Nolli de 1548. Diseño urbano de la Escuela Barroca encargado por Sixto V.
«El problema está, creo, no en la arquitectura sino en una arquitectura que no tiene una base más firme que una lógica de la forma, y una recompensa no más profunda que una experiencia estética. El problema no está en el orden, sino en una especial cualidad del orden».
«Lo infructuoso del ideal que se cristalizó en París, en el Plan de Washington, en toda la suntuosa tradición del Renacimiento, no surge de una falla de expresar lo que se intentaba expresar, sino más bien de lo que se ha excluido de la expresión. Estaba embarricado por su propio principio de las más profundas fuentes de la vitalidad en las artes. Su autoridad y su estilo, su invención y color, su ocasional fantasía, no se construyeron desde la experiencia sino desde el pensamiento, y aparecen planas y escasas al ser comparadas con las demandas que el alma hace a la arquitectura.»
«Puede parecer extraño que encuentre en un programa de mejoramiento cívico las bases de una nueva arquitectura; de esta nueva arquitectura que no es meramente un principio de lógica o de estética, pero sí el verdadero carácter y dirección de nuestra cultura cívica en evolución».
Arte, Técnica y Sociedad hasta la Revolución Industrial se habían dado como vertientes unidas del proceso cultural. A partir de esta época, aparecen en conflicto, sujetas a las ideologías y los contenidos estéticos y científicos que caracterizarán la historia moderna. La arquitectura en este contexto, entra al centro de una batalla ideológica —que dura hasta ahora— sobre su propio sentido e identidad.
Hacia 1900, la idea tradicional de Arte ya aparecía cuestionada. Ruskin, en sus «Siete Lámparas de la Arquitectura», formula la última síntesis de una filosofía del arte, que se inicia con la Escolástica en Occidente, y que será puesta en duda radicalmente2. Morris y su grupo del «Arts and Crafts» (Artes y Oficios), intentan separar el arte de la producción industrial y encontrar la base de la belleza en el producto artesanal y singular. Los pre-rafaelistas ingleses: Wilde, Beardsley o Rosetti, los poetas «malditos» franceses: Rimbaud y Baudelaire, cuestionan el arte de su época y también reformulan nuevos principios estéticos contestatarios pero elitistas, en que el arte se refugia en un mundo de gran refinamiento y para iniciados, al que Proust resume genialmente en su obra «En búsqueda del tiempo perdido». Sin embargo, la nueva realidad social y económica de Europa —y similarmente de los Estados Unidos— en rápida urbanización y desarrollo industrial, irrumpe en el hecho como el fundamento de nuevos conceptos y perspectivas sociales y estéticas. La historia avanzaba rápidamente, en todas las esferas: la Comuna de París en 1848, la unificación alemana e italiana desde 1870, y la guerra franco-prusiana, el desarrollo de los imperios coloniales de las grandes potencias europeas en África y Asia, la Primera Guerra Mundial y, finalmente, la Revolución de Octubre de 1817 en Rusia, trasladan toda cuestión estética y filosófica a percibir un final de un período y a ser parte del «nuevo espíritu de la época», que surgía de todas estas convulsiones.
Las ideas que surgen en este período son muy importantes para el desarrollo del urbanismo. El conflicto entre Artes Decorativas y Arquitectura, por un lado, y la Técnica por el otro, aparece abierto y franco. El modo de hacer, la «tectónica», es lo primero que se ve afectado por la cambiada realidad de la producción industrial. El contenido cultural del objeto hecho, en escultura, arquitectura o diseño urbano, en la etapa previa a la Revolución Industrial era tradicionalmente unitario. Se hacía de un modo artesanal similar, y la escala de producción variaba desde el mueble a la casa, o de la estructura singular de una escultura a la sumatoria total de la catedral gótica. Sólo era posible en el tamaño y la relativa mayor complejidad de materiales y procesos establecer algunas diferencias en el arte, que se resumían sobre todo, en diferencias de estilos.
En la etapa pre-industrial, desde siglos existieron como protagonistas de la factura de objetos útiles o estéticos el artesano y el artista, pero eran difícilmente separables. Se resalta en el caso de Miguel Ángel y de Leonardo. El taller de producción no se diferenciaba del taller del artista. La libertad de trabajo y la supresión de las corporaciones medievales se inician en Francia por la Revolución de 1789, y ésta, apenas se anticipa a la Revolución Industrial que se gesta en Inglaterra y Francia, especialmente en el siglo XIX. En Inglaterra, los primeros opositores a las máquinas, los «luditas», no fueron artistas; fueron obreros corporativistas. De allí que el cambio que implicó la industria fue asimilado difícilmente por la sociedad del siglo XIX3.
Otros todavía intentan rescatar al Arte por la Artesanía y volver a una Arquitectura producida con unidades, materiales, sistemas de producción y expresión plástica artesanales; como William Morris, cuando organiza el «Arts and Crafts». Sus ideas tienen gran repercusión y traspasan a la arquitectura moderna varios propósitos, especialmente la expresión de los nuevos materiales —acero, vidrio y hormigón—.
Sin embargo, de aquí en adelante la máquina llegó a ser inevitable en todas las esferas. Afectaría al modo de organización de la sociedad, permitiría la producción masiva, la acumulación de capital, la explotación de nuevas materias primas y territorios. Surgiría el proletariado industrial, y en la ciudad industrial, encontraría su marco deprimente y explotatorio. Cuando no, se llegó a organizar una ciudad paternalista y utópica en base a la industria, como será en las «company-towns» de Pullman o las utopías socialistas de Owen, o los «falansterios» de Cabet y Fourier en Francia.
Después del «Arts and Crafts», hacia 1920, el «Jugendstijl» (estilo joven) o el «Art Nouveau» (arte nuevo), intentaron encontrar un camino en que el arte, la producción y la arquitectura, incorporen nuevas formas y materiales. Pero se remitió a una formulación estilística y refinada en formas orgánicas, motivos decorativos y materiales eclécticos.
La dificultad y el enmarcamiento teórico y metodológico en arquitectura se perfilaron desde el siglo XIX, con la separación gradual entre arquitectura e ingeniería, que se acentuó con la Revolución Industrial. Se centró —como expone brillantemente Gideon— en problemas referidos a la arquitectura de las ciudades, que superaron los códigos estéticos formales y el valor representativo que alcanzó la gran arquitectura urbana del Barroco y Neoclásico de los siglos XVII hasta fines del XVIII4. Especialmente el urbanismo de las capitales europeas que, desde la reconstrucción de Londres después del incendio de 1666, a los grandes esquemas urbanos realizados por las monarquías absolutas de Europa, como son Roma, Versalles, Nancy, Karlsruhe, Postdam y San Petersburgo, se mantienen inmovilizados como modelos de la ciudad «clásica» hasta la era industrial. Esto sucede especialmente en Occidente. En otras culturas, los procesos históricos fueron diferentes, y si bien el modelo occidental se extenderá por toda la época moderna, su lógica formal y técnica no será mantenida (figuras 2.3 y 2.4).

Figura 2.3
Londres: Plano de John Evelyn, para la reconstrucción de la ciudad después del incendio de 1666.

Figura 2.4
Karlsruhe: Plano de la ciudad, fundada en 1715, de diseño neoclásico.
A: Plano inicial del propio conde Karl Wilhelm. B: Diseño posterior por Friedrich Weinbremmer.
El caso americano merece una referencia aparte. Salvo algunos casos excepcionales, en Iberoamérica se generalizó la aplicación de un modelo único que es el damero, desde los inicios de la Colonia. En Norteamérica, con algunas excepciones de modelos espontáneos o con referencias medievales, como es el caso de Boston y Quebec, encontramos variantes del mismo patrón reticular en Philadelphia, Nueva Orleans y Nueva York.
Sin embargo, más tarde, en el trazado de Washington, la nueva capital de la Unión, L’Enfant y Jefferson aplican los mismos esquemas formales del neo-clásico en el Plan de 1790. Las ideas y obras de Boullée, Blondel, Ledoux y Lequeu, sobre las «reglas de lo bello» y los efectos universales de la visión estética se habían repartido por Europa como la gran Arquitectura5, y perdurarán hasta principios del siglo.
El siglo de la máquina. A partir del siglo XIX6 el crecimiento de las grandes ciudades industriales dentro de un proceso general de urbanización, es el fenómeno más destacado dentro de la situación del urbanismo. La ciudad de la época industrial fue una ciudad en crisis. Fue el momento en que ciudad, sociedad, tecnología y cultura se enfrentan a una transformación radical. Desde este momento el cambio urbano es total y violento. La funcionalidad y racionalidad requeridas para abordar la arquitectura urbana se trocan en una estratificación social y un formalismo urbanos acentuados.
El cambio que trajo la industrialización no era esperado. Siegfried Gideon describe: «Súbitamente en esta época se produjo la conmoción. La manera de construir ciudades no estuvo de acuerdo con las nuevas condiciones creadas por la industria»7. El desorden urbanístico en la estructura física de ciudades inglesas, como Birmingham y Manchester, se produjo desde que se localizó en ellas la producción fabril y las fundiciones de hierro, la vivienda obrera y el mercado consumidor. Los centros urbanos se convierten en ciudades-usinas, donde la población vive, comercia y se educa, pero bajo condiciones de higiene, vivienda y equipamiento supeditadas todas al, darwinismo industrial: la supervivencia de los más aptos.
El cisma. Desde la segunda mitad del siglo XIX, y precisamente cuando había mayor incertidumbre acerca de cómo había de organizar la vida para que se hallara en condiciones de afrontar los nuevos métodos técnicos y los nuevos problemas sociales, se efectuó gran parte de este desarrollo tecnológico e industrial. «Sin embargo, ante la crisis», dice Gideon, «las clases dirigentes probaban más de fortalecer su creencia en la verdad y estabilidad de las cosas por la creación de edificios de carácter grandioso y planes monumentales en sus ciudades»8, origen de la arbitrariedad de mucha de la arquitectura de esa época y de las desoladas ciudades que se perfilaron como modelo en toda Europa y Estados Unidos y que presentaron sólo algunas excepciones, como veremos más adelante en las ideas de Geddes o Wagner, en los planos de Burnham (Chicago) (figura 2.5) o de Olmsted (Central Park).
Como consecuencia, quizás nunca una época anterior incluyó tantos movimientos sociales, políticos y culturales y de consecuencias tan inmediatas y globales. Sobre todo, la gran crisis social que surge en el siglo XIX; las masas urbanizadas se convierten en un proletariado industrial naciente, que se desata y convulsiona con las nuevas ideologías de la revolución socialista que encabezó el nuevo siglo. «Algunos piensan que están en el principio de una gran reforma», comenta Gideon, «... otros, al contemplar la situación desastrosa que los rodea, creen que se hallan en el límite final de una época»9. Quizás es que ambos aspectos se reúnen. Es verdaderamente el final de la era paleotécnica. La tecnología del acero, la energía del vapor y el proceso de socialización comienzan a enmarcar al mundo, que se irá urbanizando impulsado por el dinamismo de la ciudad industrial.

Figura 2.5
D. Burnham: Plano del sector céntrico para Chicago en 1909 (derechos del Commercial Club of Chicago, 1909).
Técnica versus estética urbana. En las ciudades industriales los problemas se tornaron más masivos y complejos. La situación del urbanismo y de la arquitectura se hizo más incierta de abordarlos. Entre la arquitectura urbana y la técnica, se agudizó el quiebre: la urbanística era formal y de tipo puramente representativo. En las nuevas capitales, la arquitectura suple la falta de fundamento social, con soluciones decorativas y la monumentalidad. En las ciudades industriales, el criterio es abiertamente utilitario y la arquitectura queda sometida a las necesidades de la industria: grandes concentraciones de usinas rodeadas de colmenas, de barrios para obreros.
Al arquitecto de la época no le interesaron los problemas de la ciudad, pues como describe Gideon, «él todavía se consideraba un artista»... Ante las necesidades de tipo técnico y económico que se tornan en fundamentales, se encontraba impotente. El Prefecto de París, Haussmann, refiriéndose al Plan de París, que es posiblemente la realización en urbanismo más importante de la época, escribe que «los arquitectos como artistas no demostraban interés alguno por los gastos. Y además, podría añadirse que, generalmente no sabrían hacer un presupuesto aproximado, ni poseían las condiciones requeridas para comparar y comprobar una factura»10.
Se separaron, por un lado, la obra funcional expresada directamente por una solución técnica, y por el otro, la obra como objeto decorativo; una especie de arquitectura de pastelería que culminaría en arqueología de estilos. Sin embargo, la potencialidad de la técnica y de la industria fue aplicada a ciertos elementos, y por esto, las grandes e importantes construcciones de este siglo son fábricas, puentes, algunos grandes edificios, bibliotecas, museos, las estaciones de ferrocarriles, la Torre Eiffel en París, etc.
El arte y el fenómeno estético europeo, aparentemente habían sido catalogados y definitivamente codificados por las Academias. El Neo-clásico y los «revivals» utilizaban los mismos elementos, con variaciones de forma, desde hacía 300 años. Después de Palladio, lo que concernía a las ciudades y a la arquitectura eran meros problemas temáticos y de composición formal. La sociedad europea del siglo XIX logra mantener una especie de inmovilismo estético hasta fines de siglo. Desde ese momento, la Primera Guerra barrió con esta situación, congelada en esquemas formales y composicionales.
Las Ferias Internacionales. Esta época industrial, que descubre la técnica, necesitó expresar el sentimiento de poder de la máquina y de la industria. De aquí, nacen las grandes Exposiciones Internacionales, el proyecto de Bogardus, para la Feria de Nueva York, con una torre de 90 metros; las Exposiciones de París de 1855, la de Londres de 1862, las de París de 1867 y 1878. De aquí surgen algunos esquemas urbanísticos, especialmente después de la Feria Mundial de Chicago, de 1893, en que Burnham actúa de arquitecto, y que resume los postulados formales composicionales de la etapa. Santiago de Chile también tuvo su Palacio y Feria, en 1875 y para el Centenario, en 1910.
Las ciudades utópicas. Otra expresión interesante del período, fueron las nuevas ciudades creadas con objetivos tendientes a la creación de nuevas colonias y establecimientos religiosos o comunidades ideales: Hygeia, de Papworth, en Illinois, Estados Unidos, en 1827, o los Falansterios de Cabet, o Fourier en New Jersey, en 1843. También existieron intentos surgidos entre industriales progresistas, como Roben Owen, que realizó en Inglaterra —en New Lanark y posteriormente en Indiana— serios intentos de ciudades-fábricas con criterios utopistas11 (figuras 2.6 y 2.7).

Figura 2.6
Hygeia: Plano de una ciudad modelo por J.B. Papworth en 1827. Diseño de escuela romántico-clásica para Ohio River, Kentucky, Cincinnaty.

Figura 2.7
Falansterio: Ciudad colectiva para obreros propuesta por Fourier, para crear un asentamiento económico (publicado en «Historia mundial de la arquitectura y el urbanismo»).
La palabra «urbanismo» aparece a comienzos de este siglo. El «urbanismo» tuvo su antecedente en el grupo de arquitectos de la Escuela de Viena, de fines del siglo XIX12 y especialmente se originó en el grupo de pioneros de varias disciplinas que se congregaron en el Congreso de Londres de 1910. Asistieron a él, Geddes, Struben, Bonnier, Howard y Burnham, entre otros. Fue en este Congreso donde la palabra «urbanismo» apareció por primera vez. Sus primeros miembros, provenientes de diversos países, especialmente de Europa, son los precursores de esta disciplina13.
En esta primera reunión internacional de urbanistas, en el Congreso de Londres, Daniel Burnham, el más importante arquitecto norteamericano del período, describió así su impactante proyecto para la Feria Exposición Mundial: ... «la inserción de la gran planificación de edificios públicos y paisaje en los Estados Unidos, comenzó en la Feria Mundial de Chicago. La belleza de su distribución y de su construcción hicieron una profunda impresión, no sólo en el sector más educado de la comunidad, pero quizás más aún sobre las masas, y esta impresión ha sido perdurable»14. Burnham no dudaba de su propia importancia.
Desde el Plan de la Feria al Plano de Chicago de 1909, a los Planes de Manila, Cleveland y San Francisco, Burnham se constituyó en uno de los más notables realizadores del naciente urbanismo. El Plan de la Exposición de Chicago, con sus brillantes edificios blancos, dispuestos simétricamente en torno a un patio de honor, con sus cúpulas y columnas clásicas, dejó una imagen y un modelo perdurable. El esquema clásico se mantendría en la estética urbana como el patrón de orden. Y la organización estaría orientada todavía por factores perceptuales y de composición estilística.
El comentario más crítico respecto al contradictorio período descrito fue hecho en los Estados Unidos por Louis Sullivan. Este gran arquitecto norteamericano, maestro de Wright y verdadero inventor del rascacielos de acero, al observar los efectos de la arquitectura neo-clásica de Burnham en la Feria de Chicago, sobre la arquitectura de las ciudades americanas, escribió:
«El virus de la Feria Mundial, después de un período de incubación, comenzó a mostrar signos inequívocos del contagio. Apareció violentamente con el estilo Clásico y del Renacimiento en el Este, y se extendió lentamente al Oeste, contaminándolo todo. De este modo murió la arquitectura en la tierra de los libres; en una tierra que declaraba su ferviente democracia, su inventiva, su ingeniosidad, su osadía única, su espíritu de empresa y progreso. De este modo, el virus de una cultura, pedante y extranjera a esta tierra, realizó su trabajo de desintegración...», y concluye:
...«El daño introducido por la Feria de Chicago durará por medio siglo desde esta fecha, si no más. Ha penetrado profundamente en la constitución de la mente americana, afectando allí con lesiones afines a la demencia»15. La profecía se cumplió, a pesar del testimonio extraordinario y avanzado de Frank Lloyd Wright y otros. Una forma arquitectónica que reflejara la función y el sistema estructural básico de un edificio —ideales de Sullivan y Wright—, sólo retornó como ideal arquitectónico con la impactante migración del Bauhaus a los Estados Unidos, a partir de 1939 y la apertura a las ideas modernas16.
En América Latina, que tuvo su similar etapa neo-clásica, los planes de Vicuña Mackenna en Santiago o de Benoit y Rocha en La Plata, como ejemplos —aunque algo más tarde—, el proceso se repite, y la copia de los modelos europeos fue abierta y declarada hasta la década de 1950.
Las Exposiciones de Urbanismo. A partir de 1910 se organizan en Europa grandes exposiciones Internacionales de planeamiento de ciudades. Berlín, Londres y Dusseldorf, son las primeras ciudades que las acogen. Permitieron confrontar diversos métodos y realizaciones que se llevaban a cabo.
El urbanismo inicial se desplazó en varias líneas metodológicas. Incluyendo implementación económica y administrativa sólo en algunos países europeos, especialmente en Inglaterra17 y Holanda18, que a partir de 1900, presentan un período de gran desarrollo y actividad de construcción y renovación de ciudades. También se produjo una tradición metodológica importante en Suecia, en que desde 1874 se exigían planos reguladores.
Otro antecedente se dio en Francia, por medio de la obra y acción de Marcel Poette. En 1916 organizó un Instituto de Historia, Geografía y de Economía Urbana, con un planteamiento notablemente integralista para el urbanismo de su época. Es sumamente interesante el caso de Francia, ya que la reorganización de la administración de los servicios y redes (resseaux) urbanos para París, que realizó el Barón Haussmann al comenzar su plan de transformación en 1853, originó servicios públicos y bases de acción sumamente avanzados en lo técnico, administrativo y financiero, que hasta la fecha se mantienen19 (figura 2.8).
Sin embargo, en las Escuelas de Arquitectura de Francia, determinadas por los principios estilísticos del Beaux Arts, se mantuvo una concepción formalista del diseño arquitectónico de ciudades, dándose el caso en este país, en los primeros años de este siglo, de una total separación entre las disciplinas de ingeniería, con sus aspectos administrativos, físicos, técnicos y financieros, y la arquitectura de Bellas Artes, que siguió una corriente monumentalista oficial, o se orientó sólo a problemáticas estilísticas y estéticas, incluso después de los intentos de la reforma del CIAM.

Figura 2.8
París: Plan para París por G.E. Haussmann, 1853–1859. Las líneas pesadas negras son las avenidas nuevas abiertas por zonas ya habitadas. Las líneas más livianas son las vías construidas en los suburbios. Nuevos distritos en achurado cruzado, parques públicos en achurado simple.
La enorme fuerza de las ideas en el ciclo de evolución de la arquitectura y urbanismo a partir de la Revolución Industrial, no es explicable en base sólo a los temas y problemas propios de estas disciplinas. La realidad económico-social y la estructura política del mundo occidental, habían entrado en un período de evolución vertiginosa. Aparecieron consecuentemente, diversas corrientes, tanto en el plano ideológico como estético-cultural, que a partir de la post-guerra de 1918 y organizados en grupos, asociaciones profesionales o movimientos artísticos, intentan una reorganización de la sociedad europea y el desarrollo de una nueva estética.
Estos movimientos en arquitectura, son destacados en menor grado en urbanismo: el Futurismo, el Jugendstijl, Esprit Nouveau, el Constructivismo, Expresionismo y Bauhaus, son algunos de ellos. Este hecho no ocurría de un modo tan total en Europa posiblemente desde el Renacimiento. La preocupación central de los nuevos movimientos que surgen, además de orientarse al diseño de ciudades y al planteamiento de nuevos métodos, se dirigió a una crítica radical de la situación imperante y al planteamiento de nuevos principios sociales.
Estos principios son de carácter global, radical y utopista: se rechaza totalmente una situación histórica anterior y se propone una nueva alternativa que impulsará a la humanidad desde la técnica a la organización social y política.
El carácter global de los principios surgidos en los nuevos movimientos, quedó descrito en los postulados del Grupo Constructivista: «no una cosmovisión, sino una realidad del mundo» (Nicht Weltvisionen, Sonde Welt Realität)20; porque se entremezclan nuevas concepciones estéticas con el reconocimiento de una nueva realidad industrial, económica, social y política. De aquí nace la necesidad de encontrar una estética y una nueva ética de la acción para una civilización maquinista.
Citando una de las revistas importantes de la época:... «En el fenómeno estético de la evolución de las artes plásticas, no ha sido suficientemente valorada la necesidad de considerar la máquina y los elementos mecánicos como nuevos símbolos de inspiración estética.»21 Marinetti, destacado poeta futurista italiano, subraya en otro manifiesto en 1909 «...Cantaremos el vibrante fervor nocturno de los arsenales y de las canteras incendiadas por violentas lunas eléctricas...». Boccioni, un escultor también de la misma escuela, en 1914 anuncia que «la era de la grande individualidad mecánica ha comenzado, y todo el resto es paleontología». El Arte entra a ser expresión directa de una acción colectiva, la cual es expresión de las nuevas ideologías y un NUEVO ESPÍRITU o «nuevo estilo» que se extiende por toda Europa, desde Rusia, Holanda, Checoslovaquia, Italia, Francia, Cataluña y Alemania. Aparecen como expresión de estas inquietudes el Jugendstijl en Alemania, el Esprit Nouveau en Francia, el Futurismo en Italia, el Constructivismo en Rusia.
La situación europea de la post-guerra, especialmente en Europa Central, Francia y Alemania, y la Revolución Rusa, a partir de 1917, llevan a la gestación de diversos movimientos sociales y políticos, concurrentes con el surgimiento de los nuevos métodos de producción industrial, y las nuevas concepciones estéticas. La globalidad del fenómeno es acentuada por los ajustes políticos que acompañan al período, especialmente en Francia, Alemania y Rusia. Globalidad que se radicalizó y llevó a la utopía. El utopismo llevó a las declaraciones más ingenuas, a las actitudes más idealizadas, y a cambios radicales en todas las esferas: a la revolución socialista y comunista.
El utopismo llegó a su extremo en el período inicial de los Soviets en que se bordeó la anarquía social en los años inmediatos a la revolución de Octubre. Pero el arte se abrió líricamente a la nueva realidad; a la revolución, a la industria, a la técnica, a los puentes, a las torres de acero. Majakovsky, el gran poeta ruso, después de su visita a los Estados Unidos en 1919, describe a Chicago entusiasmado: «Vi entonces a la ciudad toda electro, dinámica-mecánica...»22
Isadora Duncan, establece en la U.R.S.S. su escuela de danza experimental, siguiendo una nueva pedagogía y con cánones de naturalismo, expresividad y simplicidad. Coinciden las primeras fases de organización de los Soviets, con las visitas y trabajos urbanos para ese país de arquitectos renovadores como Hilberseimer, Meyer y Le Corbusier (figura 2.9). Por otra parte, en Francia aparecen exiliados de Checoslovaquia y Rusia; Gabo, Chagall y Stravinsky, portadores de nuevas ideas en plástica y música. Francia y Alemania aparecen empeñados en una revolución en el arte, tan importante como la revolución social que se desarrolla en Rusia, o la industrialización y mecanización de los Estados Unidos.
El radicalismo implica la presencia de un cambio total y definitivo con la tradición. Una nueva estética, un nuevo principio social y una nueva humanidad es la que surgiría en la perspectiva de la cultura industrial. Así, al Constructivismo que surge en 1917, se le define en términos casi absolutos como «el hijo armonioso de la cultura industrial».

Figura 2.9
Hilberseimer: Dibujo de un sector céntrico de Berlín, planteado en 1926.
Históricamente, el Constructivismo nació en Unión Soviética. Posterior a la Revolución de Octubre, en panfletos como el «Arte de la Comuna», se proclamó la «dictadura futurista del arte», paralelamente a la «dictadura política del proletariado». Con el «futurismo» de Malevic, Tatlin, Kandinsky y Majakovsky, se inició un proceso que orientará toda la arquitectura y urbanismo futuros de Europa23.
El lema de los constructivistas rusos se convirtió en un programa: «abajo el arte, viva la técnica»24. El contenido ideológico es explícito. «Sobre todo, la tectónica, la construcción y el producto, justifican ideológicamente, teóricamente y por experiencia, el cambio de los elementos materiales de la cultura industrial, en volumen, plano, color, espacio y luz»25. El contenido social y el utopismo revolucionario, también se relacionarían a la arquitectura. Dice un texto de la época: «La nueva arquitectura debe basarse sobre los más recientes descubrimientos técnicos y científicos; expresar su contenido socialista, cooperando el ordenamiento de la estructura económico-social y modelar en tal sentido revolucionario la ideología de las masas. Las soluciones arquitectónicas nuevas, en relación a los problemas de la cuestión industrial y social, deben representar una síntesis dialéctica de los factores económicos, técnicos, ideológicos y plásticos»26.
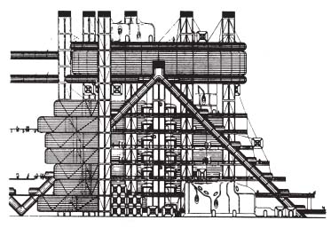
La perspectiva constructivista del urbanismo y del desarrollo en la Unión Soviética, fue hacia un país nuevo; mecanizado, industrial, dedicado al trabajo masivo, lleno de rascacielos, radioestaciones, sobrevolado por aeroplanos. La arquitectura es austera, de gran riqueza formal, con expresión de los esfuerzos mecánicos y el trabajo de los elementos y materiales (Torre Monumento para la 3a Internacional de V.E. Tatlin)27 (figura 2.10), o fantasías tectónicas, como las de Lavitsky, ciudades casi enteras de vidrio, con edificios colgantes y giratorios espectaculares.
Se produce una fecunda labor en Urbanismo en la Unión Soviética: se crean nuevas ciudades, centros descentralizadores agrícolas y zonas industriales (Giprogu, Belograd). Los contactos con los urbanistas alemanes se establecen desde 1920; Ernst May (Ciudad Lineal de Magnitogorsk) y Hans Meyer, trabajan en la U.R.S.S. Se estudian varias ciudades satélites y ciudades lineales, como Stalingrado, Elektrovoz, Lenikahan. La zonificación estricta, la vivienda en bloques de hasta 2.000 habitantes, la integración de funciones agrícolas e industriales, de esparcimiento y áreas verdes, son corrientes en las ciudades del período. La Unión Soviética se mecaniza y electrifica. El progreso se convierte en mística (figura 2.11).
Sin embargo, vino la crisis en 1920, cuando en el VIII Congreso de los Soviets, fue considerado «degeneración burguesa» y se atacó a fondo esta «depravación y degeneración» y se anuncia que el «gobierno anula la ayuda prestada a toda la Escuela cubista y futurista»28. El futurismo y constructivismo devienen en fantasía y fetichismo técnico por la situación de primitivismo en el desarrollo industrial y técnico en Rusia, a diferencia, por ejemplo, de Alemania o de la naciente potencia industrial, los Estados Unidos. Antecede a una constante en el Tercer Mundo contemporáneo; el desfase entre los movimientos ideológicos, científicos o culturales, y la racionalidad y autenticidad de objetivos y medios en las sociedades en modernización (figura 2.12).

Figura 2.10
Tatlin: Monumento para la 3a internacional comunista.

Figura 2.11
Constructivistas: Muestra de 4 colonias o pueblos obreros de los años 20, en la Unión Soviética.
El constructivismo fue acogido entusiastamente en Europa como el arte de la era industrial, los resultados y grados de desarrollo de estas ideas, en tres países claves —Unión Soviética, Alemania y Holanda— fueron diferentes pero interrelacionados.
Si bien el constructivismo fue especialmente importante en Holanda, la nueva arquitectura y el urbanismo se desarrollaron en plenitud. Los postulados constructivistas se precisaron a través de las obras de Mondrian, Rietveld, Oud y van Doesburg. En 1923, De Stijl, que existe como grupo de avanzada desde 1917 en Leyden, hace su primera exhibición colectiva en París.

Figura 2.12
S. Shestakov, esquema de Plano general para el «Gran Moscú» (1925). En rayado cruzado, los barrios centrales; en blanco, las zonas industriales; en rayado simple, los nuevos barrios; y en círculos, las zonas verdes.
La acción de la nueva arquitectura en Holanda fue más desarrollada en el campo del diseño y plástica que en diseño urbano. Sin embargo, un mismo arquitecto, Petrus Berlage, realizó obras avanzadas en las nuevas direcciones y los Planos de Rotterdam en 1914 y de Amsterdam en 1915.
De Stijl en 1922, dedicó dos números de la revista a El Lissitsky, el más importante arquitecto constructivista ruso, y luego se encuentran Lissitsky, Mies van der Rohe y van Doesburg en 192229. Ese mismo año, van Doesburg, Karel Maes, Lissitsky, Hans Richter y Max Burchardt, fundan la Internacional Constructivista, en Dusseldorf. En su declaración sostienen: «el arte es tanto ciencia como técnica, un método de organización de la vida en su conjunto»30. La Internacional Constructivista, desde Dusseldorf, se extiende por Alemania, luego Checoslovaquia (M. Pevsner; N. Gabo), Hungría (Moholy-Nagy), Bélgica (Karel Maes), y Francia (Le Corbusier). La «estética de la máquina» había sido planteada por Le Corbusier en su «Leçon de la Machine», Francia en 192431.
Los contactos internacionales de la Internacional Constructivista se estrecharon. En 1925, en la exposición de Arte Decorativo en París, la muestra soviética recibe el Grand Prix y causó impacto en toda Europa. En 1929, para el «Concurso del Centro Soyuz», el gobierno soviético llamó invitados a los mejores arquitectos de Europa: de Austria, Francia, Inglaterra y Alemania. Este fue ganado por Le Corbusier. Se pide en las bases una demostración de «arquitectura contemporánea, basada en las adquisiciones de la ciencia moderna»32; un año después del Concurso para el edificio de la Liga de las Naciones, en Ginebra, que originó la exclusión del notable proyecto del mismo Le Corbusier por razones estilísticas, la Unión Soviética estaba en la avanzada profesional del movimiento moderno de arquitectura.
Los nuevos conceptos de la forma, la construcción y el espacio, ya están desarrollados al enunciar el holandés van Doesburg, sus 16 puntos en «Hacia una Arquitectura Plástica» (Beeldende), en 1924. Allí sostiene los principios fundamentales de la nueva plástica:
1. Supresión de la forma como TIPO PRECONCEBIDO
2. Arquitectura elemental, desarrollada desde los elementos de construcción en su sentido más amplio. Función, masa, plano, tiempo, espacio, luz, color y material son los elementos de EXPRESIÓN PLÁSTICA
3. Organización eficiente, sin derroche, de una arquitectura ECONÓMICA
4. Arquitectura FUNCIONAL, desarrollada desde la determinación exacta de requerimientos
5. La nueva arquitectura es SIN FORMA; aunque definida, no tiene fórmula estética anterior. La división de los espacios funcionales es determinada por planos rectangulares, los cuales se pueden extender indefinidamente y están en relación tensil con el espacio exterior
6. La nueva arquitectura ha demostrado que todo es RELACIÓN, relación de una cosa a la otra
7. Arquitectura DINÁMICA. Todo está estrictamente determinado por contraste. Plano, línea y volumen, están sutilmente colocados en relación tridimensional
8. Supresión de la diferencia entre INTERIOR y EXTERIOR. Se genera un PLAN LIBRE, totalmente diferente del clásico. Los espacios se interpretan; todos son importantes
9. Arquitectura ABIERTA; el espacio total es subdividido de acuerdo a los requerimientos. Planos móviles
10. ESPACIO Y TIEMPO. Unidad de ambos en un nuevo aspecto plástico; espacio en cuatro dimensiones
11. Arquitectura CENTRÍFUGA, anti-cúbica, de espacios abiertos
12. Simetría y repetición: supresión de la repetición o ejes fijos de simetría. No concede repetición en el recinto, o en la fachada a la calle. Un complejo de edificios es tanto una entidad total como lo es una casa
13. En vez de frontalidad y visión estática, se ofrece una riqueza PLÁSTICA multilateral de actividad espacio-temporal
14. COLOR. Integración de la pintura como expresión de armonía. El color expresa la arquitectura en sí misma; las relaciones se expresan en color
15. Arquitectura ANTIDECORATIVA, ORGÁNICA y EXPRESIVA
16. Arquitectura como SÍNTESIS de una nueva plástica, la suma de todas las artes33.
La utopía constructivista en la Unión Soviética, sin embargo, había fracasado pocos años después. Hacia 1930, surgió el principio del «realismo socialista», y con una arquitectura monumental de grandes edificios bloques, culminando, en 1937 con el Proyecto del Palacio de Los Soviets, de los arquitectos Iojan, Chelfreich y Sukho, en 1937, una torre llena de decoraciones con una estatua de Lenin y una estrella en su vértice. La persecución del Stalinismo y la rigidez ideológica terminaron con la nueva arquitectura.
En el Constructivismo y en las corrientes que de aquí surgen, se producirá una reformulación de la relación del Arte, Arquitectura y Técnica. La tecnología como palanca del progreso de la sociedad que de aquí surge, y a su vez, de una sociedad industrial, que encuentra nuevas expresiones de un arte funcional y utilitario que aparece por toda Europa. Es en este sentido, que se entiende la globalidad, la utopía y la radicalidad de las nuevas corrientes. Se precisa que «el arte colectivo del presente es la vida constructiva»34. Arte e ideología se confunden en una nueva moral de contenido científico-industrial.
En América Latina se reconocen por lo menos influencias constructivistas en Chile, a través de los arquitectos Oyarzún, Philippi, Schade y Dávila, que traen estas ideas de Alemania y Austria, y del precursor Arquitecto-Ingeniero Carlos Carvajal35. En un texto de este autor se sostiene su carácter «internacional»: son una misma voluntad en países diferentes, respetando sus condiciones diferentes. Esta internacional resume la Revista de Stijl «no es un resultado de algún sentimiento humanitario, idealista o público, sino de aquel mismo principio amoral y elemental sobre el cual la ciencia y la técnica están basadas»36. De allí que están contra ‘toda producción artística, subjetiva y puramente sentimental. Los fines de esta Internacional constructivista’ son resolver problemas de orden práctico»37. De aquí surgiría la utopía de la teoría revolucionaria desde la arquitectura, que tendría tanto impacto en América Latina desde 1960.
Paralelamente a la Internacional Constructivista, que agrupó inicialmente a muchos de sus artistas plásticos y arquitectos, las nuevas ideas pudieron ser llevadas a la práctica en el Bauhaus por su fundador, Walter Gropius y los maestros y estudiantes que constituyeron la asociación en 1919.
Coincidentemente con el hecho que el Bauhaus nace en la ciudad de Weimar, en Abril de 1919, este período se llamó también la República de Weimar, por haber tenido allí su capital la primera República en Alemania.
Entre 1919 —en que aparece el Bauhaus—, hasta 1928, en que Gropius deja su dirección, se resalta la búsqueda de una nueva plástica, dentro de las formas de producción artesanal y/o industrial. Una generación que se confirmó después en la fundación del CIAM: Mies, Oud, Le Corbusier, Gropius y Behrens y que consolidan la total renovación de los postulados y métodos de producción en la arquitectura y plástica.
En el Bauhaus, junto a la idea de un arte social o representativo de una sociedad de masas, aparece la idea de «función» como parte sustancial de una obra arquitectónica y fundamento de la forma. La condición de trabajo cooperativo y la relación del trabajo y estudio de alumnos y profesores en el Bauhaus, surge de la apertura constructivista en una nueva y brillante generación que se desarrolló entre las dos guerras, y que hizo del Arte de la Construcción un instrumento al servicio del cambio social, con una ética social más allá del problema estético puro. Relacionan el arte, la docencia y el trabajo como modo de vida y pensamiento.
En el Bauhaus se agrupan destacados artistas. Entre los plásticos, Kokostchka, Gropius, Itten y Schlemer; en el teatro Erwin Piscator; en el grabado Kate Kolwitz, y especialmente, Bertold Brecht en la lírica. Fueron ejemplos, en sus respectivos campos, de una preocupación más allá del planteamiento estético en la obra de arte y postulando la significancia y el compromiso del artista con la sociedad de su época. La importancia del Bauhaus trascendió a la arquitectura. La ideología constructivista y funcionalista en esta Escuela, se tornó en programa concreto de acción. Se desarrolló, además, como una base para la formación del artista-artesano, incorporándose a los problemas concretos de la producción industrial y, sobre todo, expresó en el plano del arte y la arquitectura el verdadero renacimiento intelectual y estético que ocurrió en Alemania entre 1920 y 1930. En la ciudad de Alemania, los movimientos de izquierda y la clase obrera políticamente más avanzada de Europa se conjugaron con el desarrollo de la literatura y de las artes. Es notable el hecho de que esto tuviera origen en un país en crisis, como lo era Alemania en aquélla época, por la derrota de la Primera Guerra, pero aún así, con una de las más poderosas industrias de Europa.
El Bauhaus rechazó al romanticismo por «subjetivo y confuso» y se buscó una belleza funcional y ascética, en vez de una «auto-indulgencia emocional». Se buscó el trabajo colectivo y de grupos contra el individualismo elitista del artista y del arquitecto tradicionales.
La eliminación de lo superfluo y la decoración llevó a una estrictez estética. Así, en la plástica se acentuó el uso de los colores primarios o de las tres formas básicas: el cuadrado, el círculo y el triángulo. En música, se destacaba la «música útil» (Gebrauchmusik), y en la literatura Bertold Brecht buscaba la «palabra desnuda», esto de «decir las palabras limpiamente». En coreografía fueron inolvidables los movimientos de los maravillosos robots en los ballets de Schlemmer, donde el color, los trajes y los movimientos del bailarín, junto a la música atonal de Schonberg, transforman todos los componentes en una simbiosis precisa. El «Staatliche Bauhaus», literalmente, la «Casa Estatal de la Construcción», se orientó desde su fundación a solucionar prácticamente las dicotomías entre arte y técnica, arte y sociedad, sociedad y técnica. El arte tiene una función para el Bauhaus, que es la de «interpretar el estado de desarrollo de una sociedad, prever y dirigir su futuro. Es ella quien modela el mundo cotidiano del hombre, sus cosas y sus actos»38. La técnica a su vez, «debe estar al servicio del hombre, proporcionándole las herramientas para la confirmación de su vida diaria». El avance técnico y científico irá a la par con los valores éticos y estéticos, para crear el ámbito adecuado para una nueva sociedad industrial y democrática39.
Estos aspectos se precisan al escribir Gropius otras obras y, posteriormente, la Declaración de Principios «Internationale Architektur», en 192540. En ella estableció los fundamentos de una nueva arquitectura para la sociedad industrial, y un nuevo sentido del arte, despojado de los elementos adjetivos y decorativistas, orientado a una estética y ética de lo simple, directo y funcional. Junto a Gropius, trabajaron en el Bauhaus un número impresionante de artistas y diseñadores, todos los cuales tuvieron una repercusión extraordinaria en el arte de los siguientes treinta años. Lyonel Feininger, Johannes Itten y Gerhard Marcks, Paul Klee, Max Bill, Vassily Kandinsky, Oskar Schlemer y Moholy-Nagy, Hans Meyer y Mies van der Rohe, que sucesivamente sucedieron a Gropius como directores. Marcel Breuer y Josef Albers, ambos activos hace 40 años en Estados Unidos, y Ludwig Hilberseimer, su más importante urbanista (figura 2.13).
En 1928, Gropius debió dejar la dirección del Bauhaus por motivos políticos, el Bauhaus se trasladó a Dessau y luego a Berlín. En 1933, el nazismo terminó definitivamente con la Escuela y comenzó el éxodo de los maestros a Suiza, Francia, Inglaterra y especialmente a los Estados Unidos. Todos ellos generaron en diferentes países nuevos grupos de trabajo y traspasaron los métodos y principios del Bauhaus. Gropius viajó a Inglaterra, entre 1934 y 1937, fecha en que fue contratado como profesor en la Universidad de Harvard, Estados Unidos. Escuela que reorganizó y dirigió desde 1939 a 1945.

Figura 2.13
W. Gropius: Perspectiva y planta de un asentamiento mayor, publicado en su obra completa.
Las huellas y ramificaciones del Bauhaus se multiplicaron: Mies van der Rohe al dejar también Alemania, organizó el Armour Institute en Chicago, entre 1933 y 1937; Moholy-Nagy el Instituto de Diseño de Chicago, en 1943, y ambos, junto a Serge Chermayeff, crearon el I.I.T., Illinois Institute of Technology, en 1950. Max Bill en 1945, organizó la Escuela Superior de Diseño de Ulm, la cual dirigirá desde 1965 el argentino Tomás Maldonado. Josef Albers reorganizó el Departamento de Artes Visuales de la Universidad de Yale, Estados Unidos, y en 1955 organizó los cursos de «plástica» y los Talleres de la Escuela de Arquitectura de la Universidad Católica de Chile, siendo una de las más importantes conexiones directas con estas raíces que tuvo la arquitectura moderna en Chile41.
El Urbanismo en el Bauhaus no alcanzó las proyecciones anteriores. Sin embargo, la influencia se extendió con el desarrollo de proyectos de vivienda en Alemania, construidos por arquitectos como el mismo Gropius, o Hans Scharoun, Bruno Taut, Hans Meyer y Ernst May. Plantearon un nuevo enfoque socialmente sensitivo de vivienda popular, y en cierto grado contrapuesto a las preocupaciones más estilísticas de otras expresiones de la nueva arquitectura, quizás más aristocratizantes e individualistas, como «Robie House» y «Falling Water» de F. Lloyd Wright, o una «Ville Savoye» de Le Corbusier (1929). Ejemplo explícito de esta preocupación, fue el conjunto habitacional Weissenhof, en Stuttgart (1927). Fue arquitecto coordinador Mies van der Rohe, y en él participaron J.P. Oud, P. Behrens, Le Corbusier y Gropius, como equipo y desarrollando cada uno un tipo distinto de casas colectivas. Otros ejemplos, especialmente en lo urbanístico, fueron las proposiciones y planes de Le Corbusier, tales como el Plan Voisin, presentado en 1922, la Ciudad Jardín, en Frankfurt, de Ernst May, o las proposiciones de Hilberseimer (figura 2.14).

Figura 2.14
Urbanización Goldstein por Ernest May.
El «urbanismo» apareció unido con la reforma o el «espíritu nuevo» de la Arquitectura europea, que se organizó en tomo al grupo del Primer Congreso Internacional de Arquitectura Moderna (CIAM) en 1928 y que no vino a disolverse hasta su 11° Congreso en Oterloo, en 1959, treinta años después.
La preocupación por lo urbano se acentuó singularmente después del Segundo Congreso CIAM de 1929, en Frankfurt, sobre «La Vivienda para el Mínimo de Existencia» y en el Tercer CIAM de Bruselas, en 1930, sobre «Loteo Racional». La preocupación por la integración entre problemas de vivienda y urbanismo abrió necesariamente las fronteras estilísticas de la arquitectura a su contenido social, económico y tecnológico.
Los CIAM, a través de sucesivos Congresos, plantearon un método de análisis global para los problemas urbanos y de la vivienda, en torno a las disciplinas denominadas «arquitectura» y «urbanismo». Esta escuela, humanista e internacionalista, desde su inicio promovió una integración de la arquitectura con todas las bases socio-culturales del momento; «postula su acción a partir del hombre y de la satisfacción de las exigencias materiales, espirituales y sentimentales» y, sobre todo, «el reconocimiento del fenómeno de transformación social y económica de la época»42.
Esta Arquitectura Moderna, como se la llamó hasta pasado 1960, se definió en nuevas orientaciones funcionalistas que intentan «expresar el espíritu de una época».43 De aquí surgió el «Estilo Internacional», expresión del «espíritu moderno» y de la estética maquinística de la técnica, del funcionalismo y la expresión de la estructura y de los materiales. El diseño y la construcción de edificios fueron reformulados en base a las nuevas ideas y se intentó integrar a la arquitectura todo el naciente proceso de industrialización. La nueva actitud de «internacionalismo» y «modernidad» que caracterizó a los CIAM, se refiere a entender que la arquitectura es una; el espíritu moderno es más que un estilo, un modo de construir; y la funcionalidad, la expresión del material y la producción industrial, una base ética y estética de la nueva arquitectura.
Más que como nueva metodología, también en el plano de los principios se destacó un abierto compromiso con la realidad contemporánea.
En el intento de responder a nuevas inquietudes de su época, otro aspecto relevante fue extender la problemática arquitectónica más allá de la construcción del «edificio clásico» y del «estilo». De aquí que el CIAM gradualmente incorporara, aunque en forma empírica, la problemática urbana44. De la planificación urbana y sus complejos elementos, por necesidad se pasó al enunciado de aspectos administrativos, políticos, económicos y sociales, no todos aún organizados en esa época con un método claro o una teoría suficiente. Estas inquietudes originaron que el CIAM se extendiera gradualmente a planteamientos y utopías técnicas y sociales, aspectos que constituyen las raíces del largo proceso de discusión y compromiso ideológico y sociológico de la «arquitectura moderna» como reformismo urbanístico en contraste con un contexto social, económico y político, que a la larga tomó otros rumbos en Europa después de la guerra en 1945.
La realidad política anterior a la Segunda Guerra Mundial se originó en la nueva relación entre las fuerzas de producción y en la organización de las economías industriales, con una nueva sociedad urbana de masas. Pese a los esfuerzos de la generación fundadora del CIAM, el panorama que presentaba a los arquitectos el mundo anterior a la Segunda Guerra era difícil, por las crecientes presiones en problemas económicos, de salud, habitación popular y regeneración de ciudades. El mero cuestionamiento de las bases del arte y la aplicación de la técnica y la producción industrial como objeto ideológico no era suficiente. Sin embargo, el rol del arquitecto y el papel de la arquitectura, en lo espiritual —como símbolo— y en lo material —como necesidad («máquina para vivir»)—, permaneció sólo como un programa, una utopía o un conflicto aún no solucionado, destacándose dos temas: la Vivienda Social y el Urbanismo, como nuevos campos profesionales.
Después del Segundo Congreso CIAM de Frankfurt en 1929 sobre «La Vivienda para el Mínimo de Existencia», los arquitectos «modernos» europeos habían reconocido que el estudio de los problemas contemporáneos de la arquitectura estaban completamente ligados a los de la vivienda y de la urbanística, siendo muy difícil intentar marcar una línea de separación entre arquitectura y urbanismo. Los estudios sobre la vivienda necesariamente llevaron al análisis de la ciudad en su conjunto, incluyendo aspectos relacionados: la densidad demográfica, el uso del suelo, los servicios comunes y la circulación. Sin embargo, las inquietudes estilísticas y expresivas se dan al mismo tiempo, buscándose una arquitectura que sea «símbolo y mensaje para la humanidad». Es decir, se sigue con la idea del valor cultural y global de la arquitectura como expresión de una sociedad o una época y su validez internacional como método y planteamiento.
El establecimiento gradual de nuevos conceptos científicos y sistemas políticos, así como la utilización de una tecnología e industria cada vez más desarrollada, habían introducido en los postulados estilísticos abstractos y en la plástica del estilo Internacional una motivación más amplia y un impulso utópico y transformador muy poderoso.
Sin embargo, la Segunda Guerra Mundial condujo al aislamiento y división de los miembros del CIAM, que por ser «internacional» desde su inicio, se vio abocado a todos los problemas de la división de Europa y expuesto a las consecuencias de la Segunda Guerra, que tornó al continente en un campo de batalla. Por esta causa, alcanzaron a efectuarse sólo tres reuniones antes de la guerra. Los Congresos de Bruselas en 1930, de Atenas en 1933–35 y el Congreso de París en 1937.
El Tercer CIAM de 1930, en Bruselas, fue sobre el «Loteo Racional». Acentuó una línea integradora hacia el urbanismo que culminó con el Cuarto Congreso CIAM en 1933. Aquí se enunció la CARTA DE ATENAS, segundo documento fundacional del urbanismo CIAM45 y tuvo dos etapas.
De los nuevos postulados surge «un método racional» para las ciudades; se propuso una «ciudad funcional», donde existiera una clara zonificación y el emplazamiento consecuentemente racionalizado en ella de las cuatro «funciones colectivas»: vivienda, trabajo, esparcimiento y circulación. Se destaca el Plan, la importancia de la vista, el asoleamiento y las áreas verdes; las autopistas clasificadas y los bloques regulares de edificios constituyendo una grilla. Además, se propuso un nuevo método de análisis comparado de ciudades, a través de normas de presentación y elementos similares para todos los países, la «grilla» CIAM.
Antes de la Segunda Guerra hubo estudios urbanísticos interesantes. En 1931, el Plan Alger de Le Corbusier; en 1935, Broad Acre City de Wright (figura 2.15); y en 1937, el Plan Londres del Grupo MARS, que constituyó el grupo inglés del CIAM. Entre las realizaciones se destacan: la primera «ciudad Jardín» en los Estados Unidos; Greenbelt en Maryland, de Clarence Stein, iniciada en 1936 (figura 2.16). En 1937 y 1939, Sunila y Kauttua, también ciudades satélites, realizadas por Alvar Aalto en Finlandia.

Figura 2.15
Broad Acre City: Diseño por Frank Lloyd Wright entre 1932 y 1958.

Figura 2.16
Greenbelt: Planificación por Hale Walker del año 1935 en Maryland. Fue una de cuatro ciudades nuevas de reasentamiento del proyecto «New Towns» de la década del 30, en la tradición de la ciudad jardín.
En 1938, Lewis Mumford publicó en Londres «La Cultura de las Ciudades», que se transformó en un manifiesto de los objetivos humanísticos de la generación del CIAM ante la falta de planificación e ideales para la construcción de las ciudades y su relación con la naturaleza adecuando los medios de la tecnología a una sociedad y humanista democrática.
En América Latina, aún en una etapa de transición, encontramos en el período ,esquemas heterogéneos. Entre éstos, la trama formal con diagonales, de Bello Horizonte, capital del Estado de Minas Gerais en Brasil, en 1925 (figura 2.17); el Plan de Santiago de Chile, de Karl Brunner (1929–1932), hecho en base a los postulados del Stadtebau vienés. A partir de 1938, la influencia del CIAM aparece en la proposición de Le Corbusier, hecha con Jeanneret y Hardoy, para un nuevo Centro de Negocios y la remodelación del área central de Buenos Aires (1938–1950), y continuaría en varias capitales (figura 2.18).
Durante la guerra se desarrollaron algunos grupos nacionales del CIAM que continuaron trabajando, el grupo francés ASCORAL en el cual participó activamente Le Corbusier 46. En 1945, publicaron «Los Tres Establecimientos Humanos», dirigido por Le Corbusier, donde planteó su tipología de la «ciudad radio-concéntrica de comercio y servicios», «la unidad de explotación agrícola autónoma» y la «ciudad lineal industrial». Estos tres «establecimientos» son fundamentales para un urbanismo integral.
Terminada la guerra en Europa, las consecuencias fueron significativamente diferentes. Los maestros de la arquitectura internacional se encontraban esparcidos después de 1940, y la división política y el control total de las actividades en urbanismo y construcción que trajo la guerra, debilitaron los nexos profesionales y económicos entre los arquitectos.

Figura 2.17
1895, (Estado de Minas Gerais, Brasil).

Figura 2.18
Le Corbusier 1938–40, Jeanneret y Ferrari (Argentina).
En 1945, el grupo francés del CIAM publicó en el libro de Le Corbusier «Cómo Concebir el Urbanismo», un esquema de ordenamiento y proposiciones sobre problemas de construcción de viviendas e infraestructura; con objetivos de proceder «al examen del espacio edificado y sus prolongaciones» y «la ocupación del suelo y las circulaciones». Intentó establecer una doctrina del espacio edificado, «respondiendo a las cuatro funciones de: habitación, trabajo, recreación del cuerpo y del espíritu y circulación, para difundir esta doctrina en la opinión pública, hacerla adoptar por los poderes públicos y velar por su aplicación»47. Se esperaba que, en base a esta asociación interdisciplinaria de profesionales, se proporcionase a Francia un orden capaz de orientar los planes, las empresas y la legislación de la reconstrucción del país después de la Segunda Guerra Mundial.
En esta obra, Le Corbusier postuló sus ideas fundamentales. Lo que planteaba era su cosmovisión del hombre en el espacio edificado, en la cual «el hombre mediante sus obras se debe poner en armonía con el Universo» y en la que las técnicas deben constituir un instrumental «adecuado para la nueva etapa de la humanidad, la era maquinista»48. Estas ideas de Le Corbusier resumen parte de la orientación filosófica de su urbanismo utopista y visionario, que mezcló la artesanía, la analogía biológica, sus preocupaciones sobre la tecnología, el «modulor» y el folklore, en el concepto del «saber habitar».
A la fuerza formal, intelectual y técnica de sus proposiciones, se opuso la incomprensión y la dificultad de llevarlas a cabo, especialmente en Francia. El más importante arquitecto moderno, maestro de varias generaciones de arquitectos que acudían a trabajar con él en su Taller de la Rue de Sevres, permaneció marginado de las tareas concretas del urbanismo que se realizaron en Francia. Tuvo dificultades ya en 1933, con intereses nacionalistas y de las grandes empresas de construcción, que atacaron a través suyo a la arquitectura moderna. En 1941, sus contactos con el Gobierno de Vichy y las tareas que se le encargaron tampoco alcanzaron a concretarse en compromisos ni planes oficiales. Se le tildó de «fascista» por un lado, y de «agente bolchevique» por el otro. Quedó atrapado quizás por el tipo de «política apolítica» que intentó realizar para llevar a cabo sus ideales en arquitectura. Lo expresó en forma característica: «El urbanismo expresa la vida de una época. La arquitectura revela su espíritu. Algunos hombres tienen ideas originales y son pateados en el trasero por sus esfuerzos»49. En 1945 se le rechazó su proposición de un Centro Comunal, en St. Die-Belfort, en el cual había resumido sus planteamientos del momento.
Le Corbusier asociado con su primo Jeanneret, logró sin embargo, entre 1951 y 1958, la más importante comisión que recibiría: el diseño de la nueva capital del Estado de Punjab, Chandigarh. Allí logró implementar algunas de sus ideas; el expresionismo simbólico y el monumentalismo del centro político administrativo, la organización en base a súper-manzanas de 800 x 1.200 metros y el sistema de circulación clasificado en 7 tipos de vías jerárquicas, las 7 V (figura 2.19).

Figura 2.19
Le Corbusier 1951. (Estado de Punjab, India).
Por otra parte, el método CIAM de análisis comparado de ciudades, así como la apertura hacia el urbanismo operacional y que se presentó en obras tan significativas como «Pueden sobrevivir nuestras ciudades» del arquitecto catalán José Luis Sert, publicada en 194250, no habían sido aceptados totalmente entre los arquitectos. En esta obra se hace una crítica penetrante y responsable al caos urbano y a la necesidad de un «modelo de acción y análisis», en base a las «cuatro funciones» de la Carta de Atenas. En ella se consideran aspectos de integración de ciencia y método que recuerdan las primeras formulaciones de Patrick Geddes51.
En la obra de Sert, se planteó el avión entre los nuevos medios usables en la investigación urbana, por sus posibilidades de dar una visión panorámica y definiendo lo que llamaría la tercera «fachada urbana». Otras preocupaciones fueron la ecología urbana, considerando a la ciudad como un organismo vivo, y las posibilidades de la aplicación de las técnicas, tanto en la planificación como en la producción industrial y construcción. Se planteó el concepto de Plan Regional, determinándose sus componentes geográficos (terreno, clima, etc.) y el uso de investigaciones empíricas en base a estadísticas52. Se enunció el método de la planificación y su aplicación: las fuentes de producción y de materias primas, aspectos de población —distribución, estratificación y ocupación— la densidad y número de centros urbanos, comunicaciones, etc.53
De este listado de materias ya era evidente un enfoque evolucionado y mucho más complejo, en que el campo de acción del urbanismo se extiende a varias disciplinas.
Posteriormente, el ario 1945, la necesaria integración de disciplinas que plantearon los programas de reconstrucción europea después de la guerra —en ciudades como Varsovia, Rotterdam, Berlín, o las nuevas ciudades inglesas—, así como las necesidades del crecimiento industrial y económico del continente, enmarcaron el inicio de una crisis en el CIAM. Se tenía un método, una ideología y un ideal de arquitectura perfectamente delimitado, pero no satisfacía a las nuevas generaciones. O la realidad contingente avanzaba sin planificación, quizás sin racionalidad, o con otros objetivos en un mundo aún mucho más dinámico.
En el Sexto Congreso CIAM de Bridgewater, Inglaterra, en 1947, con el tema «Diez Años de Arquitectura Contemporánea», el grupo inglés MARS, y en especial uno de sus más importantes arquitectos, Arthur Korn, presentó como tema fundamental la preparación de los planes de reconstrucción de Inglaterra y una legislación correspondiente, con lo que logró influir en los planes de centros industriales y especialmente un plan para la Región Metropolitana de Londres. El CIAM gradualmente se iba convirtiendo en una visión, un método, y sus miembros lograban realizar obras importantes. Así, después del Sexto Congreso, se realizaron los planes de remodelación de varias ciudades de Holanda y Alemania, el Centro de Varsovia y grandes conjuntos habitacionales en toda Europa.
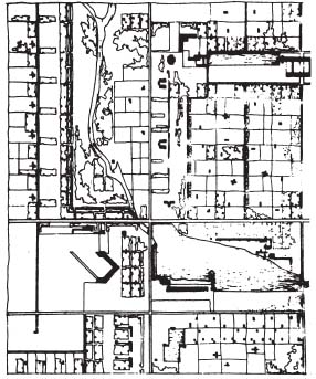
Después de la guerra, en América Latina resalta la acción en Diseño Urbano de la oficina organizada por Lester Wiener y J. Luis Sert, que realizaron la ciudad industrial de Chimbote, Perú, en 1947 (figura 2.20); el Plan Regulador de Bogotá, asociados con Le Corbusier, entre 1950–1953 (figura 2.21); y en 1955, un Plan Piloto de la Habana. Aquí se aplicaron los esquemas y los métodos CIAM; se establecieron súper-cuadras o unidades de habitantes, una vialidad clasificada, la zonificación de áreas verdes, áreas centrales peatonales de comercio y equipamiento, y zonas industriales exclusivas, volúmenes de habitación en alta densidad contrastados en el paisaje. América Latina se convirtió en un importante laboratorio urbanístico que se había iniciado con los Planes de Buenos Aires, y culminaría en la proposición de Brasilia, de L. da Costa (1957–1960) (figura 2.22).

Figura 2.20
Sert y Wiener, 1947, (Perú).
El séptimo Congreso del CIAM se reunió en 1949, en Bergamo, Italia; se discutió sobre las «Relaciones entre Arte y Arquitectura en las Escuelas de Arquitectura». Se aprobó una simbología uniforme para la exposición comparativa de proyectos y se formularon los enunciados de una declaración, la «Carta del Habitat». Pero ya se preparaba la división del CIAM. Desde 1947, los CIAM eran grupos con creciente polarización hacia puntos de vista totalmente divergentes sobre urbanismo, planificación y arquitectura.
Así, el CIAM culminaría con sus propias utopías. O quizás, en la contradicción de posiciones rígidas y divergentes que se iban precisando y tomando orientaciones diferentes al abocarse a las urgentes tareas del desarrollo urbano de la década de 1950. También surgía una nueva generación de arquitectos. Este período se convirtió en una etapa de duda y de rechazo a las fórmulas de composición zonificada y purista de ciudades, a los métodos y planteamientos teóricos del «funcionalismo», y a los grandes esquemas y utopismos urbanos de un Le Corbusier, por ejemplo.

Figura 2.21
Sert y Wiener, 1950, (Colombia).
Aparecieron, en consecuencia, grupos como el «nuevo empiricismo», o la «arquitectura orgánica», que dan especial importancia a valores concretos de la arquitectura relacionados con materiales, el lugar y las tradiciones locales.

Figura 2.22
L. Da Costa, O. Niemayer, 1957, (Brasil).
Así, en 1951, en la publicación del CIAM 8, «El Corazón de la Ciudad», se postuló que la mayoría de los arquitectos modernos —continúan definiéndose con la denominación de «moderno»— comprende que «acabó la época de la arquitectura racional, cuyo objetivo era expresar la función práctica en arquitectura». Hoy se tiende a una libertad plástica y «a un vocabulario arquitectónico más completo»54.
En una visión panorámica de la evolución de los CIAM, aparece que la especulación teórica de la arquitectura y el urbanismo en estos años había sido sobrepasada por una realidad urbana cada vez más compleja y conflictiva; por las necesidades urgentes de la reconstrucción de post-guerra; por las nuevas regiones rurales que se incorporan al creciente proceso de urbanización y por los problemas propios del método CIAM. Como lo interpretan algunos autores, en esos años se estaba explicitando un esfuerzo por descubrir una ruta alternativa, «hacia la creación de un nuevo estilo», aunque éste ignorara más que resolviera algunas de las urgentes demandas de la situación contemporánea. Especialmente «aquéllas relacionadas con el industrialismo, la organización social de la ciudad y los nuevos conceptos de forma y espacio»55.
Estas inquietudes y planteamientos que se dieron en el CIAM, convergen a veces con conflictos. Así en 1951, en el mismo Octavo Congreso de Hoddesdon, Inglaterra, se presentan trabajos dispares y con formulaciones tan contradictorias, que muestran el gran eclecticismo en que se caía. La claridad ético-social que tenía el movimiento CIAM entre las décadas del 20 y 30, en este Congreso será definida como un mero «racionalismo» por las nuevas generaciones de estudiantes y arquitectos.
En el Noveno Congreso CIAM, de Aix-en-Provence, Francia, en 1953, sobre el tema del Habitat, se originaron nuevas y más serias divergencias con las nuevas generaciones de arquitectos y urbanistas. Los problemas de arquitectura —entendidos por el CIAM en el sentido tradicional de forma y función, material y expresión— no parecen compatibles con las nuevas preocupaciones relacionadas con «organizaciones urbanas totales» con los problemas de transporte, la prefabricación, la ecología y administración urbana, la teoría de sistemas y modelos económicos. La planificación y el urbanismo, aceptados como ciencias aplicadas al asentamiento de colectividades urbanas, habían desbordado las ideologías, los esquemas y las «grillas» CIAM. Por otra parte, las propuestas utópicas, en su mayoría, tampoco fueron realizadas. Surgió conciencia de la necesidad de enfoques de carácter operativo e interdisciplinario y no ideológicos para el problema del crecimiento y cambio urbano: la renovación de áreas centrales y las regiones metropolitanas.
En 1954, después del Noveno CIAM, un grupo de jóvenes arquitectos se reunieron en Holanda para la preparación, de lo que se llamó el «Manifiesto de Doorn». Se reunieron nuevamente en 1956, constituidos ya como un grupo, el Team 10, en el Décimo CIAM de Dubrovnik en Yugoslavia, el que tuvieron que preparar como encargado, y en el cual hicieron un desafío conceptual al CIAM. Fueron arquitectos provenientes de varios países: J.B. Bakema y Aldo van Eyck de Holanda; G. Candilis y Sh. Woods, griego e inglés, que trabajaban en Francia; A. y P. Smithson y John Voelcker de Inglaterra; Jerczy Soltan de Polonia; E. Grung de Noruega; Ralph Erskine, inglés, residente en Suecia y Antonio Coderch de España.
El Team 10 se constituyó «por la toma de conciencia mutua de la inadecuación de los procesos del pensamiento arquitectónico que habían heredado del Movimiento Moderno como un concepto total, pero más importante, porque cada uno intuía que el otro había ya encontrado algún camino para un nuevo comenzar»56.
Este comienzo y la etapa que continuó, se orientaron a inducir hacia lo más central de la problemática arquitectónica; una «acertada comprensión y sensibilidad para los modos de vida y las aspiraciones, el uso de los artefactos y las herramientas, los tipos de transporte y la comunicación de la sociedad presente», de modo que «como una cosa natural, se pueda construir hacia la realización de la sociedad por sí misma». En este sentido, se sostiene que el Team 10 es utopista, pero «utópico acerca del presente»57. Concluye el texto del Team 10, Primer: «De este modo su propósito no es teorizar sino construir»... Los arquitectos y hermanos Smithson ampliaron sus objetivos al sostener que «cada generación siente una insatisfacción nueva y concibe un nuevo orden»58. Una vez más se requería de un cambio. ¿Era esto un avance o una nueva oscilación del reformismo arquitectónico?
El verdadero vencedor del CIAM, «no fue el Team 10, sino el tiempo»59 dice John Drew. Los dirigentes de la primera generación eran ya viejos. Le Corbusier tenía 69 años y Gropius 73. Como explicó Mies, la arquitectura debía evolucionar con el tiempo: «...cada época hace lo que está a su alcance».
Esta nueva generación reaccionó contra la tiranía del funcionalismo. Pero sobre todo abrió con una nueva madurez una perspectiva innovativa de la arquitectura, y notablemente, del diseño urbano. Intentó expresar claramente la apertura científica, una tolerancia y visión más amplia hacia las complejas contradicciones de la vida cultural que alimentan a la arquitectura y a la ciudad. Estos arquitectos —la tercera generación, como los llama Drew— representan «una especie de parlamento de intereses. Coexisten dentro de un pluralismo de enfoques, estilos y países. Los modelos que utilizan han constituido una especie de híbrido, que ha combinado la concepción orgánica de los sistemas espontáneos de organización con la geometría y con las matemáticas»60.
Las hipótesis mecanicistas y sobre todo idealistas del «racionalismo» anterior, evolucionaron a partir de esta Tercera Generación; van unidos a un clasicismo, a un misticismo y a un sentido de ordenar la arquitectura y la ciudad con la naturaleza toda, descubriendo las leyes orgánicas de constitución de los sistemas, desde el orden que expresan en sus proposiciones de ciudades (Archigram, Metabolistas), a los sutiles detalles de un Van Eyck o Erskine, que se adaptan a la tradición vernácula de las arquitecturas regionales de Europa.

Figura 2.23
Paolo Soleri: Dibujo a mano alzada, que muestra un asentamiento para artes y oficios (publicado en «Paolo Soleri Sketchbook»).

Figura 2.24
Archigram: Proyecto de un centro comercial en Montreal del año 1964 (publicada en C. Rowe; «Collage City»).
Desde el orden orgánico del Team 10, a las analogías orgánicas o de las megaestructuras de los metabolistas y a la anarquía personalizada de las «ciudades-artefactos» de Soleri y del Archigram, hay muchas diferencias (figuras 2.23 y 2.24). Esta generación es aparentemente contradictoria en sus inventos y formas. Sin embargo, lo que caracterizó a esta etapa, es la búsqueda de nuevas fronteras de contacto entre la realidad científicamente cognoscible y manejable y la acción práctica de la arquitectura. Esto, los de Safdie, Alexander y Utzon; una arquitectura antropológicamente sana y respetuosa como la que sostienen Habraken, Coderch, Erskine o Van Eyck; o las «megaestructuras» de Tange, Maki, Kikutake e Isozaki, con sus motivos técnicos y toda la parafernalia de aparatos, instalaciones y artificios mecánicos y electrónicos futuristas (figuras 2.25 y 2.26).

Figura 2.25
Peter Cook: Nodo universitario para ser inserto en el proyecto «Plug-in-city», del año 1965.

Figura 2.26
Arato Isozaki, Proyecto Ciudad Espacial, 1960 (Collage).
Ya no parecen primar ni las ideologías ni Escuelas determinadas. Sin embargo, surgió de esta época una arquitectura de una calidad técnica y formal extraordinaria. Al observarse la obra de Louis Kahn y de James Stirling, que son los arquitectos si no más característicos de esta etapa, sí los de mayor influencia, se descubre una vuelta al ejercicio de la arquitectura como «arte mayor» en todo su esplendor y rigor. Al pasar a la escala de las ciudades, no encontramos esta misma habilidad y fuerza, pero tampoco las pretensiones de los años anteriores.
Por otra parte, en 1960, en teoría y docencia, se había establecido en Estados Unidos el primer programa de post-grado en Diseño Urbano en la Universidad de Harvard, de la cual Sert era Decano y sucesor de Gropius. El Diseño Urbano fue denominado explícitamente como una «disciplina puente» entre planificación y arquitectura. Se intenta un nuevo enfoque integrador, que no sería sólo «arquitectura», ni «town planning», «urban planning», «city planning» o «amenagement urbain». De Harvard pasa a Pennsylvania State, como «civic design» y en breves años se establece el diseño urbano como disciplina en su propio campo, en la mayoría de las universidades de los Estados Unidos y abriéndose el campo en América Latina, desde fines de esta década.
En la década del 60 aparecieron numerosas obras, estudios y proyectos que fueron precisando este nuevo campo, o este antiguo tema revisado bajo otros puntos de vista: la «Imagen de la Ciudad» de Kevin Lynch, profesor del M.I.T., apareció en 1960, en que aplicó un método empírico a la percepción y notación visual de la «imagen urbana». En ese mismo año, Kenzo Tange, presentó su extraordinario Estudio y Proposición para Tokio61. En 1961, se elaboró el interesante proyecto de Candilis, Josic y Woods, para Toulouse Le Mirail, en Francia. Ese mismo año se publicó otro proyecto con una metodología y claridad notables, el Estudio de Hook New Town, del London County Council, que junto a los estudios para Tokio, ofrecen un método desarrollado de análisis, de factibilidad y proyecto físico integral y tridimensional de una Ciudad Nueva (figuras 2.27 y 2.28)

Figura 2.27
Craig Cox, Shankland, London County Council 1961, (Inglaterra).

Figura 2.28
K. Tange 1960, (Japón).
En 1963, Chermayeff y Alexander publican otro texto fundamental, «Comunidad y Privacidad». Este mismo año y con otros conceptos, se fundó el Centro de Ekística en Atenas y C. Doxiadis, su director y creador, comienza la aplicación sistemática de su Teoría Elástica62. En 1964 se publicó la obra base de Maki, «Investigations in Collective Form», en que establece las categorías, los tipos de elementos y modelos de organización de las tramas urbanas como «formas colectivas». En 1965, Paul Spreiregen publica su «Diseño Urbano; La Arquitectura de Ciudades», en Washington (traducido al español en 1971), y Edmund Bacon, arquitecto Jefe del Plan de Philadelphia, su extraordinaria obra «The Design of Cities» (El Diseño de Ciudades, traducido al español en 1975). Este nuevo enfoque totalizador y sistémico ya había sido intuido por Kahn en su proposición para Philadelphia y se desarrollaba por el equipo de Denise Scott Brown en esa Escuela.
Entre el 60 y el 70, pudieron irrumpir con mucha fuerza, nuevas y orientadoras ideas y proyectos, que se van precisando por los métodos con que se realizan y por problemas técnicos, sociales y plásticos que requerían. El liderazgo, en teoría y metodología, lo asumen las Escuelas de Post-Grado de los Estados Unidos y organismos estatales de Inglaterra, Francia, Suecia y países nórdicos.

Figura 2.29
Plan de Cumbernauld, Wilson y Seager, Corporación de desarrollo, 1962 (Escocia).
Cumbernauld, Escocia, en 1962; Santo Tomé de Guayana en Venezuela, 1962–1965; Habitat 67’, Montreal, Canadá, en 1967; el Proyecto PREVI en Lima, Perú, en 1969 y las remodelaciones urbanas en Nueva York e Isla Roosevelt, Estados Unidos, entre 1963 y 1971, son algunos casos que merecen señalarse por los aportes que presentan (figura 2.29).
Otra referencia a la notable influencia de la arquitectura japonesa, es la acción de Tange en el M.I.T. y los Talleres de Fumihiko Maki en Harvard, donde trabajó con J. Tyrwhitt y J. Soltan, importantes arquitectos de CIAM. En 1965, la Escuela de Diseño de Harvard editó el trabajo elaborado bajo la guía de Fumihiko Maki, «Sistemas de Movimiento de la Ciudad»63. Se intentó una estrategia selectiva de acción para la ciudad de Boston, en la cual se integrarían los puntos de cambio de medio del sistema de movimiento con la organización de nuevos espacios sociales, en base a un «sistema de terminales abiertos». En este proyecto, el método utilizado, unido a la acción del equipo (M. Corea, E. Lozano, G. Munizaga y J. Wampler), sirvió de partida a las tesis y trabajos desarrollados desde 1968 por M. Corea, para la Universidad y Ciudad de Rosario, Argentina, la extensa publicación teórica y de docencia de Lozano, y el notable proyecto de Wampler en 1969, profesor titular del M.I.T. desde 1978, de un conjunto experimental de vivienda construido sobre la bahía de Boston, y que fue la proposición de esta ciudad para el Concurso de Celebración del Bicentenario de la Independencia de los Estados Unidos, en 197664.
El desarrollo del diseño urbano desde la década del 60, podría aparecer como la evolución secuencial y lógica de una serie de ideas, Escuelas y movimientos, que en forma lineal fueron gestando o acentuando una preocupación coherente y sistemática por temas previamente acotados y después abordados. No es así. Cuando veíamos como origen de la vertiente «funcionalista» moderna, la presencia de un quiebre anterior en realidades de la Arquitectura, el Arte y la Técnica, aparecen connotaciones de valor, significado e instrumentación ideológica y social adicionales. Se describió el quiebre como el de los «tres conflictos dialécticos»: una serie de contradicciones que, desde la organización de la sociedad, se extendieron al Arte y la Técnica y de allí a la urbanística.
Cabalmente, la interacción entre técnica —o ciencia— y sociedad reestablecida de otro modo, fue quizás la más radical en sus efectos, ya que reorganizó intelectualmente a esta sociedad industrial; la transformó en un arquetipo para todo el mundo y configuró el mundo moderno en base a la tecnología y la ciencia. Sin embargo, las ciudades que se construían no revelaban una nueva síntesis y alternativas efectivas. La ciudad, consecuentemente, no pudo enmarcarse ni como un mero hecho espontáneo, ni como un problema de arte, un objeto cultural. Tampoco, a pesar del desarrollo de la tecnología, apareció entonces como más eficiente ni más económica que los prototipos anteriores, ni apareció clara su relación con factores sociales y políticos de gestión urbana.
Hacia 1960, ni la estética de la máquina, ni los prismas simples, ni las «cuatro funciones de la vida colectiva» —que constituyeron la base de la reforma del CIAM y de la nueva ciencia y arte del urbanismo— habían conseguido llevar la arquitectura de las ciudades a un grado aceptable, o a un estado tranquilizador de que se estaba en el camino correcto, o que los principios de la arquitectura tradicional los abordaba suficientemente. En Asia y África se perfilaban nuevos y graves problemas. La crítica entre los arquitectos y hacia los arquitectos se multiplicó. Se hizo común, especialmente en América Latina y en algunos países de escasa gestión política y técnica de sus procesos urbanos.
Otra vertiente empírica, a la vez que teórica, se gestó a partir del problema de la ciudad, pero entendida ésta como un ente social, geográfico y económico, que podía ser abordado por las ciencias sociales e implementada tecnológicamente. Los antecedentes a esta segunda vertiente del diseño urbano, se remontan a la génesis de las ciencias sociales y urbanas, especialmente en los Estados Unidos y Reino Unido, a fines del siglo XIX. Con un enfoque diferente y anterior a la tradición CIAM, de fuerte contenido empírico, y orientada sobre todo desde la geografía y las ciencias sociales, presentó otra alternativa, especialmente en los países anglosajones, que sólo vino a complementarse con el CIAM en la post-guerra, después de 1950. Se originó y definió desde las disciplinas nuevas que allí se habían organizado: el «landscape architecture», (arquitectura paisajista) el «town-planning» o el «cityp-lanning» (planificación urbana), hasta llegar al marco mayor del «regional planning» (planificación regional). Estas orientaciones conllevaban la inclusión de una serie de disciplinas y teorías, que habían surgido a fines del siglo XIX o inicios del siglo XX, como la geografía, la sociología y la localización económica al campo urbano, y que en 1968 fue denominada «urbanología»65. Lo que intentaba surgir es una verdadera «ciencia de las ciudades», más allá de su mera fabricación arquitectónica.
De allí que es necesario referirse a otras tradiciones, que no nacen de la tradición empírica de la arquitectura, ni de las propias orientaciones teóricas de la arquitectura, porque explican y completan esta evolución y esta crisis en un contexto mayor. Para ello sirven de referencia algunos textos y estudios, como de Max Weber, «La Ciudad»66, de Adna Weber, «The Growth of Cities in the XIX Century»67, las obras iniciales de R. Park y R. Mackenzie68 en la Escuela de Chicago de 1920, los estudios de Ernest Burgess, Homer Hoyt y Louis Wirth, destacados científicos sociales de esta misma Escuela69.
También se desarrollaron en Estados Unidos métodos nuevos de carácter empírico, relacionados con el notable proceso de urbanización, y construcción de ciudades que allí se realizó a fines del siglo pasado, debido a la expansión territorial e inmigración. Algunos trabajos, como los de D. Burnham y Ch. Elliot, los de Frederick

Figura 2.30
F. Olmsted: Plano de Buffalo de 1976, mostrando sistema de parques y el plano general de desarrollo.
Olmsted70 (figura 2.30), y otros arquitectos paisajistas, diseñadores de vías-parque (parkways) o como Clarence Perry, orientados a la planificación y construcción de ciudades a inicios del siglo XX, fueron más allá de la pura construcción arquitectónica. Llevaron a la definición de una actividad más vasta, relacionada a gestión y financiamiento, zonificación y diseño de vialidad y parques en las nuevas urbanizaciones, y que generó el «city-planning» norteamericano71 similar al «town-planning» inglés.
Lo que impulsó el cambio, fueron los problemas de incorporación de nuevos territorios, el saneamiento y recuperación de terrenos urbanos y la importancia que empezó a adquirir el transporte en la organización de ciudades y regiones.
Quien estudie el desarrollo de nuevos métodos y ciencias, notará que en Estados Unidos es común que los mismos problemas hayan originado las especialidades, las que se han desarrollado con un enfoque acentuadamente empírico y científico, especialmente desde las universidades. Tales especialidades, aunque diversas en su origen, más tarde se llamaron Arquitectura Paisajista, Planificación Regional, Geografía, Arquitectura, Ingeniería, Planificación Urbana o Diseño Urbano, Sociología, Economía, Administración y finalmente, Ciencia Política. Hasta la fecha, estas disciplinas han constituido campos interdisciplinarios abiertos que se organizaron —bajo la acción de grupos estatales, profesionales y sobre todo, universitarios— desde 1960, en diversos modos y programas que implicaban conexiones interdisciplinarias, bajo el tema común del Diseño Ambiental (Environmental Design).
La tradición europea de la escuela CIAM, en cambio, mantuvo un carácter «integralista», y al plantear métodos y equipos multidisciplinarios, especialmente a través de proposiciones, como el Plan Mars de Londres, o el Grupo ASCORAL francés, definió al arquitecto urbanista como el «Jefe de equipo», el hombre síntesis, imagen que se mantuvo como orientación profesional hasta hace muy pocos años (1960), especialmente en Francia y América Latina.
En Estados Unidos en cambio, la enseñanza moderna de la arquitectura —que se originó con la reforma de los programas de Beaux-Arts y con la introducción que en 1939 hizo Gropius en Harvard de las ideas del Bauhaus y CIAM— se hace dentro de un medio académico y profesional en el que además del diseño o de la arquitectura, otras especialidades también están abocadas al estudio del fenómeno urbano en forma empírica y científica. Esto implicó que cada vez más, en la gran mayoría de las más importantes Escuelas de Arquitectura y/o Diseño, se incluyeran cursos, o por lo menos, se organizaran como Departamentos asociados, Arquitectura, Arquitectura Paisajista y Planificación, y a veces, el Diseño Urbano. En los países anglosajones y nórdicos, además existe una tradición profesional importante: nos encontramos con oficinas abocadas a estudios completos de urbanización y construcción, tanto como del análisis de factibilidad y planificación, así como la gestión económica y social necesaria. El aparato estatal replica esta capacidad de planificación y gestión.
Como resultado de estudios especializados, la ciudad, a diferencia de la línea CIAM, se estudió efectivamente en cuanto fenómeno controlable y observable científicamente. Ha requerido de métodos de análisis desarrollados, desde las ciencias sociales, y que le darán al «planning» la disciplina que a abarcará estos estudios, características diferentes del «urbanismo» CIAM, y al «design», una connotación más general y concreta que a la «arquitectura» moderna ya tradicionalizada.
El método y la «grilla», los congresos, las exposiciones y proyectos que se elaboraron en el CIAM, indudablemente que fueron obra de arquitectos. El método se abocó a una constatación general, más que a la precisión analítica de problemas urbanos —sean sus aspectos administrativos, sociales, económicos o físicos— a presentar doctrinas y proposiciones de proyectos formalizados netamente en el plano de diseño e instrumentación física. Por este camino se llegaría muchas veces como resultado a simplificaciones y utopías arbitrarias, sin poder avanzar con los años hacia un proceso metodológico que permitiera abordar efectivamente las inquietudes iniciales de La Sarraz en 1928, o del Cuarto Congreso sobre «La Ciudad Funcional» y la Carta de Atenas del año 1933.
El problema no se presentaba solamente en los postulados que surgen y que diferencian los campos disciplinarios, métodos o doctrinas. El tema central era ¿qué era una ciudad, cuáles eran sus componentes, hasta qué punto era construcción y proyecto o realidad social y agente económico? ¿De qué manera era dependiente o autónoma la arquitectura como técnica y arte, como disciplina, de los factores externos a ellas?
El problema se centró en la definición de la relación misma entre arquitecto, arquitectura y ciudad.
La década del 60 al 70, en América, Japón y Europa, fue un período de transición y definición entre las disciplinas del diseño y planificación, a partir del último CIAM en 1959 y coincidió con el establecimiento del primer curso de graduados en Diseño Urbano en 1960 de Harvard, dirigido por Sert Las formulaciones teóricas y los proyectos y realizaciones fueron explicitando un modo nuevo de actuar y un campo cada vez más específico. Comenzaron diez años intensos de revisión y avance en Europa y Estados Unidos del diseño urbano, que hacia 1973, culminarían con la Trienal de Milán y la fundación de la Revista «Oppositions» y del Instituto de Estudios Urbanos de Nueva York. El Diseño Urbano aparecía como la respuesta a una necesaria arquitectura total de la ciudad.
El Diseño Urbano que surgía, apareció acotado sobre todo en los Estados Unidos, en cursos, escritos y en grandes proyectos. Ambiguamente, en los grandes conjuntos habitacionales de Alemania, Francia y la Unión Soviética. En las magníficas realizaciones de las ciudades universitarias inglesas y en los innumerables proyectos de Ciudades Nuevas y capitales en países de todo el planeta, entre los cuales se destaca el Japón, por la variedad y precisión técnica de sus formulaciones.
Desde 1960 esta nueva forma de planificación urbana comenzaba a ser un hecho establecido: estaban en ejecución los planes de centros y regiones metropolitanos de Moscú, Caracas, La Habana, París, Helsinski, Estocolmo, Barcelona, Copenhague, Londres, Viena, Tokio, Washington, San Francisco y Chicago. Todas estas ciudades contaban ya con equipos técnicos y métodos establecidos para el control y gestión de sus centros urbanos. En Chile, el Plan Regulador Intercomunal de Santiago y la constitución de una oficina del Plan Intercomunal, habían sido organizados entre 1959 y 1962. Los primeros graduados en planificación, formados en Estados Unidos, Inglaterra o Francia, habían llegado a diversos países de América Latina, especialmente a Venezuela, Colombia, Chile y México.

Figura 2.31
Candillis, Josic, Woods, 1961.
Esta década reveló una variedad de importantes ejemplos. Desde el plan de Tokio de Kenzo Tange, para una ciudad construida sobre pilotes en la Bahía de Tokio para 10 millones de habitantes, a la «Ciudad del Océano» sobre megaestructuras fotantes de Kikutake, del «Domo Geodésico Urbano» que Buckminster Fuller propuso ese año, contrastado con el proyecto de Metrotown para Baltimore, Estados Unidos planteado en base a un corredor de transporte público (ver Anexos).

Figura 2.32
Von Moltke, Corporación de Guayana 1960 (Venezuela).
Desde 1961 se publicaron o construyeron varios interesantes proyectos en Europa. La Nueva Ciudad de Hook, al Sureste de Londres, para 80.000 habitantes, del London County Council; Toulouse-Le-Mirail, ciudad satélite de Toulouse, para 100.000 habitantes; la Ciudad Universitaria de Berlín, de los arquitectos Candilis, Josic y Woods, también propuestas con una trama o megaestructura tridimensional (figura 2.31); o el Plan de Washington 2000, como un esquema lineal de «corredor» metropolitano.

Figura 2.33
F. Pooley 1964, Llewelyn Davies 1970 (Inglaterra).
De aquí que las nuevas ciudades que fueron desarrolladas en este período también fueran variadas y reflejaran diflerentes metodologías y configuraciones de diseño, que fueron precisando el campo de esta nueva disciplina cada vez más independizada del urbanismo CIAM. Cumbernauld, en Escocia; Senri y Kosoji, en Japón; Santo Tomé de Guayana, en Venezuela (figura 2.32); Halen, en Suiza o Milton-Keynes entre Birmingham y Londres, son algunas de las principales ciudades nuevas de la época (figura 2.33).
El crecimiento —proceso de urbanización— y sus cambios —el metabolismo—, se constituían en temas fundamentales. Ese mismo año, Jean Gottman publicó un estudio sobre la «conurbación noreste» de los Estados Unidos, haciendo un análisis global del fenómeno de «conurbación» como entidad urbana y regional integrada, en la cual el tamaño y la interdependencia de los factores locacionales, la infraestructura, el territorio y las comunicaciones, presentan un ente nuevo y continuo que reúne la más alta concentración de población, actividades productivas, políticas y educacionales en un paisaje continuo semi-urbanizado de 500 millas de largo, con tasas de crecimiento y desarrollo hasta la fecha desconocidas. Para el Tercer Mundo, en 1962, Constantino Doxiadis elaboró y publicó un proyecto para Islamabad, capital de Pakistán Occidental y había consolidado una Oficina Consultora Internacional de Planificación y Diseño Urbano, Doxiadis Associates, que tendría una importante labor, entre las cuales una asesoría a CONADE, la agencia de Planificación de Argentina.
En 1963 se realizó en Grecia el Simposio de Delos. Fue convocado por Doxiadis, fundador de la Sociedad Mundial Ekística y en este congreso se formuló la «Declaración de Delos», especie de nueva «Magna Carta» de los Asentamientos Humanos. Esta conferencia congregó, bajo el auspicio del Instituto Tecnológico de Atenas, a personalidades de todo el mundo72.. Desde la isla, dichas personalidades formularon un llamado, que por la importancia de los que lo suscribieron y las disciplinas y países que representaban, tuvo una repercusión inmensa en los centros académicos y políticos del mundo. Parece necesario recordar algunos de sus puntos fundamentales, que todavía permanecen como el testimonio de una generación de post-guerra, cuyos miembros, en los próximos 25 años, tendrían una inmensa tarea de reactualizar la ciencia urbana en un marco totalmente planetario. La ciudad y la tierra estaban en un punto crítico de la civilización una vez más, y el llamado a la acción de la Declaración de Delos, planteaba:
«Reunidos en Delos, en este día 12 de Julio de 1963, nosotros los suscritos, provenientes de una vasta gama de disciplinas, naciones, compromisos políticos y grupos culturales diferentes, afirmamos y declaramos que:
1° La ciudad, a través de la historia, ha sido la cuna de la civilización y el progreso humano. Hoy, como cualquiera otra institución humana, está incluida en la más profunda y amplia revolución que jamás haya sobrellevado la humanidad.
2° Esta revolución aparece bajo el signo del cambio más dinámico. En los próximos cuarenta años, la población del mundo se incrementará a 7 mil millones. La ciencia y la tecnología determinan cada vez más los procesos de la vida humana. En la medida que éstas avanzan, la conducta social del hombre es modificada profundamente. Estos cambios se presentan en sí mismos en cada campo, como un peligro compensado por una incluso mayor oportunidad. El hombre puede usar el poder atómico para reducir cada asentamiento humano a las ruinas de Hiroshima. Les puede proveer también de suficiente energía para satisfacer todas las necesidades humanas. La población del mundo puede por mucho superar su abastecimiento de alimentos; incluso, para mantener el ritmo de crecimiento, la producción actual de alimentos debe crecer en tres veces hacia el año 2.000. Sin embargo, por la primera vez también, poseemos los medios para asegurar suficientes alimentos para todos.
3° Estas paradojas son ampliamente sentidas. Lo que no se comprende es que la falta de adaptación de los asentamientos humanos al cambio dinámico, puede en plazo breve, sobrepasar incluso a la enfermedad y a la hambruna como el más grave riesgo exceptuando la guerra que enfrenta la especie humana».
Como conclusión, se proponía una nueva educación, un nuevo enfoque, y una nueva ciencia, la Ekística. Los elementos fundamentales a abordar eran el uso del suelo, la localización de inversiones y la planificación de ciudades. Al urbanismo, a la planificación y al diseño urbano, se agregaba la Ekística. Y agregaba la Declaración:
«Por esto, subrayamos con toda urgencia posible nuestra creencia que en cada acción nuestra, en las agencias que tienen estos problemas a nivel nacional o internacional, en las instituciones de educación superior, sean públicas o privadas, nuestra sociedad requiere:
a. Establecer en su propio derecho una nueva disciplina de los asentamientos humanos (EKÍSTÍCA);
b. Iniciar la investigación básica del tipo del mayor alcance;
c. Reunir especialistas de otras disciplinas relevantes para trabajar en conjunto sobre proyectos en estos campos;
d. Elaborar nuevos métodos de entrenamiento de las personas que puedan asumir el liderazgo y la responsabilidad en esta esfera de acción.
e. Atraer a algunas de las mejores mentes jóvenes a esta nueva área de investigación, desarrollo y práctica.»
«Provenimos de diferentes naciones, de diferentes antecedentes culturales. Nuestras políticas diferen, nuestras profesiones son variadas. Pero creemos que el problema de los asentamientos humanos es un problema general y fundamental en nuestro nuevo mundo dinámico y que éste debe ser visto y estudiado, de tal manera, que pueda, en común con todas las grandes disciplinas científicas, trascender a nuestras diferencias locales».
«Concordamos que la implantación práctica de políticas de temas tan vitales como son el uso del suelo, la localización de inversiones o la planificación de ciudades a través del tiempo, estarán determinadas por políticas y necesidades domésticas. Y que, como ciudadanos, nos comprometemos para intentar traer estas materias al diálogo político más activo en nuestras sociedades locales...» y concluye postulando:
«Pero no estamos divididos en aquello que queremos afirmar de la manera más contundente: Que somos ciudadanos de una ciudad global, amenazada por su propia y torrencial expansión, y que en este nivel, nuestra acción y nuestro compromiso es con el hombre mismo»73.
En este período se inician obras y proyectos de gran envergadura. La influencia de la alta tecnología entró rápidamente al diseño urbano. El grupo Archigram desarrolló Plug-in-City: ciudad desarmable y con planteamientos de alta tecnología (high-tech), que intentan abordar a la ciudad como un inmenso artefacto modular, móvil, cambiante o adaptativo. Del metabolismo de los japoneses, se pasó al mecanicismo brutalista de los ingleses. Así, los proyectos de grandes campus universitarios, como la Universidad de East Anglia, de Dennis Lasdun, para 6.000 estudiantes en 170 has., realzaba la topografía con circulaciones sobre nivel, con edificios aterrazados y curvos con 150 a 200 metros de frente. Otro caso es la Universidad de Loughborough, de ARUP Associates, un proyecto en trama reticular tridimensional, en que los componentes, el sistema constructivo, las instalaciones, así como las circulaciones peatonales y vehiculares, están integradas en las 40 hás. del Campus.
En el plano de la acción pública y de la administración, en 1966, se crearon en los Estados Unidos y en Chile, los primeros Ministerios de Vivienda y Desarrollo Urbano o de Urbanismo de las Américas. La organización política y administrativa del proceso urbano cobraba una creciente importancia y comenzaba una nueva etapa para la acción, en que las estrategias y proyectos tendían a ser más integrales y el Estado y los organismos públicos jugarían un rol cada vez más activo en políticas de uso de suelo, y transporte, en la remodelación urbana o creación de nuevas ciudades y conjuntos habitacionales.
En el campo de la teoría, se pueden señalar en este período dos textos que complementan las ideas desde distintos enfoques, revisan los objetivos y métodos del «urbanismo» y del «diseño». Uno, «Urbanismo: Utopías y Realidad», de Francoise Choay, publicado en París, en 1965, revisa la historia y cuestiones sobre ideología y práctica en el urbanismo. El otro texto es de Christopher Alexander, publicado en 1968, en Cambridge, Estados Unidos, «Notas sobre la Síntesis de la Forma». Alexander ya había obtenido su Doctorado en Matemáticas en la Universidad de Cambridge, y entró a estudiar Arquitectura a Harvard; allí, en sus estudios de graduado, cuestionaría los métodos y procesos de diseño corrientes en una Escuela de Arquitectura. Terminado su Máster en Arquitectura, fue el primer caso en la historia de la Universidad, en que se autorizó a continuar a un Doctorado en la Facultad de Artes y Ciencias. «Notas sobre la Síntesis de la Forma», resumió las ideas de su Tesis y produjo una gran influencia en los medios académicos, especialmente de habla inglesa.
En 1969 se realizó un Concurso Internacional auspiciado por las Naciones Unidas sobre Vivienda Marginal en Perú74. Alexander con John Turner, arquitecto inglés, quedó seleccionado entre los finalistas, revisarían las innovaciones del diseño urbano en los países en desarrollo. En 1968, Doxiadis publicó en Londres su texto definitivo: «Ekística, una introducción a la Ciencia de los Asentamientos Humanos». En esta obra presentó con una gráfica e interés extraordinario, uno de los textos más fundamentales para el análisis, la definición teórica y metodológica, así como la presentación de casos en diseño urbano hasta la fecha, comparando las fases de desarrollo y los elementos de estructuración básicos para los procesos urbanos. La ciencia urbana y el diseño urbano, se podía decir que ya estaban consolidados.
Se había avanzado del voluntarismo técnico o del idealismo estético. De los urbanistas, profetas, los utopistas sociales o los inventores del «mass media», a una conciencia responsable: un mundo de urbanización explosiva, en que la ciudad dejaba definitivamente de ser un artefacto. El paisaje y los recursos naturales no podían ser dejados al arbitrio de los hechos irremediables. Existían elementos manejables y experiencias transmisibles, aunque el planeta estaba plagado de centros urbanos devastados e inhumanos y la arquitectura urbana todavía era inferior al período del despotismo ilustrado. Hacia el 70, nadie se sentía demasiado seguro de las soluciones, de la calidad del ambiente de las «ciudades satélites» de Europa, ni de los «Siedlungen» alemanes, ni de los «town centers» del medio-oeste norteamericano. Aparecían como modelos la geométrica regularidad de Brasilia (Costa) o Chandigarh (Le Corbusier), la forma y crecimiento de Daka (Kahn), de Islamabad (Doxiadis), los planes de la Universidad de Bagdad (Gropius), las nuevas ciudades de los califatos árabes. Quedaban avances, libros, experiencias y nuevas preguntas.
El Diseño Urbano y la Arquitectura de la ciudad seguían todavía requiriendo integración con los complejos problemas de gestión, administración y habilitamiento del medio ambiente, el que estaba definitivamente trastocado por la expansión de las ciudades, la tecnología, las comunicaciones y el transporte.
Son muchas las cuestiones que se pueden derivar de esta historia de los últimos cien años del urbanismo. Los sucesos y las posiciones que se han presentado escuetamente, son ricos y variados. Sin embargo, desde una perspectiva contemporánea, parece más necesario concluir en qué es lo que presenta el futuro con respecto a las ciudades y asentamientos en el proceso de urbanización y, finalmente, el método y teoría que configuran la ciencia y praxis urbanas. Desde 1970 han ocurrido sucesos previstos y otros totalmente imprevisibles.
Para establecer una prospectiva para la arquitectura y urbanística, para acotar sus temas y nuevos problemas, es de interés revisar algunas hipótesis, Charles Jencks expone el modelo de las «oscilaciones» o «pulsaciones»75 para explicar estos cambios. Jencks aplica métodos predictivos desarrollados en las disciplinas científicas al área del entorno edificado. Considera fundamental la comprensión del futuro que plantean las diferentes ideologías que configuran la realidad contemporánea. Citando a MacLuhan: «No hay absolutamente ninguna inevitabilidad mientras exista una voluntad de contemplar lo que está sucediendo». ¿Cómo puede contemplarse lo sucedido?
Este autor distingue entre los dos patrones básicos del cambio cultural, las «oscilaciones cíclicas» o el tiempo reversible, y el «desarrollo acumulativo» o el tiempo irreversible. Se cuestiona por qué aceptar como inevitables las consecuencias indeseables de las decisiones arquitectónicas, ya que éstas, si son reconocidas pueden ser variadas o eliminadas, y pueden proyectarse los aspectos deseados en nuevas combinaciones culturales.
En la arquitectura, desde 1920 Jencks observa seis tradiciones de importancia e intenta predecir y describir cómo se han combinado, desarrollado o separado en los próximos 60 años que siguieron. Estas seis tradiciones serían:
1. La tradición LÓGICA, que origina el «funcionalismo» en los 30, y a partir del 80 las «megaformas»
2. La tradición IDEALISTA, que origina el «Estilo Internacional» (funcionalismo) CIAM
3. La tradición AUTOCONCIENTE, que origina al «Beaux Arts» y la arquitectura «fascista» o formalista
4. La tradición INTUITIVA del «Art Deco» y que culmina en el 60 con la arquitectura «pop»
5. La tradición ACTIVISTA, origen del constructivismo y futurismo
6. La tradición INCONCIENTE, que origina la arquitectura espontánea, vernacular.
En la historia se repiten los procesos. Vuelven los ciclos, como alternancias de opuestos: por una parte, la tradición lógica, idealista y autoconciente, y por otra parte, una tradición intuitiva, activista e inconciente, acota Jencks. Es decir oposiciones similares a lo apolíneo y lo dionisíaco, a la pulsación entre clásico y barroco en los estilos tradicionales.
¿Cómo es esta evolución, hacia dónde se dirige? Para ello, es necesario revisar los términos de «estilo» en relación a lo moderno como vanguardia. En la evolución de los estilos, existe también una formulación típica de ciclos: un origen (arcaico), un desarrollo y plenitud (clásico) y luego una fase de complicación o eclosión (barroco), para concluir en decadencia y saturación (manierismo).
Entre 1920 y 1960, la arquitectura que surgió, y los planteamientos ideológicos bajo los cuales se organizó en el plano de la crítica y de la teoría, de la práctica o de la pedagogía, pudo ser clasificada o descrita en el término suficientemente ambiguo de «moderna».76 La idea de «modernismo» tiene una connotación de «nuevo», de distinto, de reacción al pasado, de descubrimiento, pero lleva finalmente al reconocimiento que en el hecho, este período es un continuum de modernismo y revisionismo. Culminó hacia 1970 con el «postmodernismo», que puede ser descrito como un avance a lo más moderno, para volver o al pasado clásico (inclusivismo de los «Grays») o al primer modernismo (exclusivismo de los «Whites»). En el fondo, aparece una constante dialéctica, el «retrovanguardismo»: el redescubrimiento del pasado de la arquitectura como solución al presente que ya se hace obsoleto. ¡Ya apareció el Deconstructivismo como la nueva alternativa después del 80!
La idea de «modernidad» también contuvo implícitamente la idea de una «globalidad» de la arquitectura, como método, estilo de vida o cosmovisión. El «urbanismo», la «urbanística», y el «diseño urbano», son términos o modos que intentan establecer puentes, fronteras o relaciones más amplias de una arquitectura que aparecería demasiado ilimitada, o restringida en sus métodos y campos tradicionales. ¿Es mucho o muy poco lo que aparece cuestionado?
Una tercera connotación de la arquitectura moderna es su «racionalidad»; su expresión funcional y técnica, su expresión científica, eficiente y concreta de nuestra época industrial. Sin embargo, el método, la enseñanza y la crítica arquitectónica, como nunca, han sido plurales, ambiguos, cuestionables por su subjetividad, y el arquitecto como nunca se ha presentado con tanta multiplicidad de enfoques. Muchos, como los de Soleri y OMA, han bordeado la magia, o en la culta expresión Pop y vernácula de Venturi, están abiertamente orientados a la búsqueda de la «complejidad y contradicción» como punto de partida. La fórmula del «menos es más» de Mies, va al «más no es menos» de Venturi, para reflejar en el hecho, que coexisten cada vez más posiciones, y que en la dialéctica arquitectónica, la discusión y las construcciones dejan cada vez menos perfilada una concepción básica y mínima de lo que es «más» o «menos», para los arquitectos y público en general. La discusión se centra en aspectos técnicos, estéticos, éticos y políticos, que superan cualquier intento de convergencia.
La concepción de la arquitectura moderna y sus ideales aún permanecen como un sustrato de un verdadero canon «clásico». Las virtudes racionales de la ingeniería (lógica, función y geometría), y las características visuales del arte abstracto (planos blancos, formas simples y balance asimétrico), llegaron más allá de la ideología a ser un estilo. Este estilo Moderno se puede yuxtaponer a los estilos clásicos anteriores y así también es posible sostener que la complejidad y contradicción de Venturi sería la nueva expresión del barroco o de la vuelta al vernáculo sofisticado.
¿Es posible considerar que ciertos conceptos y tipos de arquitectura se articulan en este período como totales coherentes? Jencks sostiene que sí y de modo relativamente congruente. Así, los arquitectos «intuitivos» tienden a favorecer modelos fexibles y formas expresionistas y orgánicas. Los diseñadores «lógicos o racionalistas» ven la necesidad de destacar una serie de procesos, elementos y disciplinas que están basadas en el razonamiento preciso y consistente y en la forma que lo explícita y que es el resultado correcto de una ecuación bien planteada. Gaudi vs. Perret, Mendelsohn vs. M. van der Rohe. O Lucien Kroll, Hans Hollein, Ralph Erskine y Graves, «intuitivos» por una parte, comparados con Fuller, Richard Meier, James Stirling y Peter Eisenman, como «racionalistas».
Más allá de esa inicial dialéctica entre lo clásico y barroco, o entre lo dionisíaco y apolíneo de los griegos, es posible ver a priori grandes conjuntos que constituyen familias genéricas. Jencks las denomina una «estructura semántica» entre series de ideas y formas relacionadas y sus opuestos. Esta clasificación permite ver la evolución de las ideas y obras en este siglo. Así, la arquitectura de Mendelsohn era «dinámica», porque era expresionista y fuida, y puede ser llamada «orgánica» y «plástica». Gropius y Le Corbusier, analizados así, globalmente, revelarán sino contradicción, por lo menos evolución, crecimiento, contraste y cambio. Es decir, superan a sus propias ideologías. Los tipos semánticos se presentan como opuestos y, por lo menos, son pares opuestos relativamente autónomos. Así, a una tradición Intuitiva se opone una posición Lógica. A una Auto-Conciente, una posición Conciente. A una tradición Activista el opuesto es una Idealista77.
Para Jencks, toda caracterización, especialmente semántica, debe ser explícita o trabajar por asociaciones. Vale la pena resumir sus categorías.
La tradición INTUITIVA se asocia con el naturalismo, el expresionismo, lo orgánico, delineado y fantástico; con el metabolismo, lo adecuativo y lo biofórmico (Aalto, Taut, Van de Velde, Harris, Scharoun, Kurokawa).
La tradición LÓGICA se relaciona con la ingeniería, con lo funcional, estructural, geométrico y matemático; con lo paramétrico o modular, con la megaforma, el precisionismo industrial y la arquitectura ultra-liviana (Freyssinet, Le Ricolais, Torroja, Arup, Nervi, F. Otto, Fuller, Alexander).
La tradición INCONCIENTE que se expresa en corrientes populistas, vernáculas, eclécticas, híbridas, tradicionales, de consumo, auto-construcción, móvil, ad-hocista, etc. (ambientalistas, Eames, Fuller, Venturi, Hundertwasser, Garbage-Housing de Pawley, Tercer Mundistas, John Turner.
La tradición AUTOCONCIENTE, su opuesto, se destaca por la tradición Académica, del Beaux Arts francés; lo clásico, el historicismo, la arquitectura fascista, burocrática, reaccionaria, empresarial y burguesa, el Post-Modern por mencionar algunas (Perret, Terragni, Speer, Ponti, Troost, Rudolph, Utzon, Kahn, Harrison, Yamasaki, los Krier, Rossi, Graves).
Un tercer binomio lo constituirán los opuestos entre tradición IDEALISTA y tradición ACTIVISTA, en el sentido de acentuar lo conceptual y teórico en contraposición a la ideología intervencionista y globalista, en un plano social y cultural. La línea IDEALISTA en el esquema de Jencks, se expresa en corrientes racionalistas, el purismo, la arquitectura heroica y metafísica, la cibernética, la semiología y la significación (Van Doesburgh, Aalto, Mies, Gropius, Neutra, Niemeyer, Le Corbusier, Brener, Doxiadis, Pei, TAC, Roche). La línea ACTIVISTA comienza con el constructivismo y el futurismo, sigue con el revolucionarismo y el comunalismo, la arquitectura metamórfica y desechable, el anarquismo, la arquitectura dinámica y el ideologismo (Lissistki, Tatlin, Vesnin, Meyer, Jacobs, Metabolismo).La Vivienda de Desechos de Pawley, R. Segre, favelas de Dos Santos, poblaciones y barriadas, Turner, en nuestra experiencia americana y chilena.
Si revisamos las pulsaciones en el plano de la teoría urbanística, se produjo, a partir de 1970, un interesante avance; un planteamiento de mayor integración disciplinaria y el cuestionamiento del funcionalismo de la ciudad moderna. Las posiciones historicistas, el sentido del lugar y la significación e identidad del paisaje urbano como memoria colectiva, son resaltados. Aparece un gradual revisionismo y la incorporación de conceptos formales y tipológicos a la «urbanística», especialmente en Europa. La Trienal de Milán en 1973, en la que tienen destacada actuación Aldo Rossi, Gregotti, Aymonino y Rob Krier, sirve de marco al lanzamiento del «neo-racionalismo» o el «postmodernismo», que se avoca a la reconstrucción de un pensamiento y praxis sobre la ciudad como hecho social y forma colectiva.
La metodología urbanística, hasta el momento, se había mantenido en posiciones demasiado diferentes. De algún modo, existía una cierta preocupación sociológica basada en el empirismo de la Escuela de Chicago, y que se expresaba en una crítica social y económica, continuada por Jane Jacobs y Albert Reiss78. También estaba planteada la posibilidad notacional de la imagen urbana, «la imaginabilidad» de Lynch o las experiencias del «paisaje urbano» inglés y el incrementalismo formal de Gordon Cuiten. Finalmente, aparecía la ciencia ficción de los metabolistas japoneses, o el inclusivismo Pop de Las Vegas y el paisaje del Disney World Americano, sostenido por Venturi.
La crítica feroz de Jacobs sigue a una tradición que se había iniciado con Munford sobre una ciudad mecanizada, inhumana, corrompida y corruptora de los ideales de una mejor sociedad. La metodología de Lynch o el incrementalismo de Cullen, suponían que en la visión, imaginabilidad, secuenciabilidad y recorrido de los espacios urbanos puestos a «escala», estaría la posibilidad de un nuevo diseño urbano democrático y participativo, de lo cual las Ciudades Nuevas inglesas eran un tedioso y poco inspirado laboratorio. Venturi agregaba la aceptación tan norteamericana de lo obvio y banal del Main Street U.S.A., como lo honesto y verdadero. Pragmatismo por un lado, vernacularismo y surrealismo (Stanley Tigerman), entusiasmo por las cosas como son y se hacen y que finalmente se botan. Lo banal era trascendente por su propia fuerza vital. La arquitectura que se hacía en gran parte de los Estados Unidos —a excepción de ciudades con gran refinamiento intelectual como Boston o Philadelphia y algunos condominios privados— se expresaba en los poderosos centros de Houston y Dallas, en grandes «shopping centers», Marinas en Florida, en los «malls» del Medio Oeste, en la Plaza Italia de Charles Moore, pero sobre todo, en los «Main Street» de Estados Unidos y en Disney World. Un mundo Pop de fantasía, consumista y nómade: «If you can’t lick them join them»; y Venturi, Moore y Phillip Johnson vieron la posibilidad práctica y teórica de reformular lo obvio del mercantilismo corporativo como «complejidad y contradicción».
Los japoneses, por su parte, manejaron sus problemas urbanos con una mezcla igualmente inexportable de alta tecnología, ciencia-ficción metabolista y megaformas, replanteando una ciudad de termitas para el mundo postindustrial, modelo que, con algunas variaciones, apareció en los conjuntos habitacionales de México, Venezuela, Argentina, Francia, Alemania y Unión Soviética, como la última solución de la Vivienda Social79 (figura 2.34) El vanguardismo era aceptar el presente con todas sus contradicciones especulativas y técnicas (vernacularismo, Pop, F.H.A. y H.L.M.), o avanzar al futuro con megaestructuras y ciudades paralelas (Tange, Friedmann, Isozaki, Archigram). En la vanguardia sucedió lo inesperado: la búsqueda del pasado y la resurrección de la ciudad histórica; el tipo, el estilo y la Arquitectura, como arte público, como redescubrimiento, en el más alto nivel de autonomía. Una nueva posición historicista, auto evidente, inclusiva y que dejaba contentos a los altamente sofisticados planteamientos teóricos de los Estados Unidos y de la Escuela de Venecia, igualmente que a las reproducciones más banales de los franceses. Permitía volver a una arquitectura esquemática pero icónicamente fácil, como la de los Krier, y permitía a todos, una vez más, redescubrir un nuevo estilo que garantizara al arquitecto la idoneidad formal del producto y evitara las enojosas contradicciones y cavilaciones que demanda cualquier proceso serio de gestión humana. Con el desarrollo de los trabajos de los hermanos Krier y el gradual transplante de nuevas formulaciones en varias Escuelas de Arquitectura y revistas de Estados Unidos y Europa Occidental, aparecen en Venecia, Barcelona, la Architectural Association, el Institute for Urban Studies, en Chicago y en Nueva York e incluso Caracas, Buenos Aires y Santiago, una alternativa nueva para el diseño de ciudades que se engloba entera en el término «neo-racionalista», en el sentido que la forma deba ser expresada o se exprese a sí misma «con lógica claridad y simplicidad»80.

Figura 2.34

Figura 2.35
León Krier: Proyecto de 1976 para el parque de la Villette.
Desde 1970, la teoría y discusión sobre la forma urbana y ciertos esquemas sobre su estructuración en unidades o elementos —los «barrios» (Rossi), o la «fachada», el «portal», la «calle» y otros elementos tipológicos (Rob Krier)—, aparecían como fundamentales. La solución a la ciudad sólo se daría en una explicitación formal, se recalca que es: «arquitectónica» y «autónoma», pero sobre todo «histórica» y «agregativa». En los proyectos de La Villette, de León Krier (figura 2.35), en las proposiciones para Stuttgart de Rob Krier, o en los esquemas para un Núcleo Suburbano y también en La Villette, de los argentinos Agrest y Gandelsonas, estamos reconociendo un retorno hacia una sintaxis basada en modelos composicionales clásicos, con variaciones semánticas y una retórica explícita. El grupo de O.W. Ungers, también refuerza el uso de una formalidad pre-determinada y depurada por ejercicios geométricos y semánticos de composición de gran fuerza formal y con una sofisticada tecnología que recalca la macro-forma y la metáfora que está inserta. La semiología se constituye en base estructuradora de la nueva arquitectura, reemplazando al funcionalismo anterior.
El grupo de OMA (The Office for Metropolitan Architecture), constituido por los arquitectos Koolhaas, Vriesendorp y Zenghelis, avanzó —o quizás retrocedió— hacia el diseño urbano del más puro expresionismo surrealista81. Detrás de sus propuestas urbanas para «El Parque de los cuatro Elementos», la «Ciudad del Globo Cautivo», o el «Hotel Welfare Palace», aparecen especialmente preocupaciones sobre la ciudad, el símbolo, la semiología y el uso de formas cargadas de referencias, pero que llevan al diseño urbano al más puro formalismo escenográfico. Cada exceso tiene algo de verdad. ¿No es esta especie de nueva utopía la reencarnación de los artificios mecánicos del Archigram, pero con un sabor a arquitectura expresionista surrealista o constructivista de 1920? La construcción se reemplaza por el dibujo o por el cine y el collage.
No se ve un diseño urbano, ni tampoco una arquitectura, coherente en estos proyectos de pretenciosa monumentalidad formal y simplificación escenográfica de la ciudad, sino una parte —y válida— de las consideraciones de más contenido. En cualquiera posición que se estuviera con respecto al urbanismo, era necesario preguntarse sobre qué modelo o teoría de ciudad se construye esta posición. Y como dice Rowe, no se puede plantear una teoría de la ciudad, si ésta no se sostiene en una teoría de la Arquitectura y en una teoría de la Sociedad en conjunto.
Por ser la ciudad un hecho arquitectónico y social, aparecía notorio que el idealismo utopista, el activismo o el funcionalismo moderno, carecían de una teoría social suficiente. Y que entre teoría de la planificación y teoría de la arquitectura, no aparecían aún claras las relaciones; y finalmente, que por lo menos era posible volver a revisar la propia teoría de la arquitectura. La ciudad de la arquitectura moderna (también llamada, la ciudad moderna), no aparecía claramente construida. «La constelación de actitudes y emociones que se reúnen bajo la noción de Arquitectura Moderna y se desbordan en una forma u otra en el inseparablemente relacionado campo de la planificación, comienzan finalmente a aparecer en conjunto demasiado contradictorios, muy confusos y poco sofisticados, para permitir cualquier resultado»82.
Desde el 70, varias líneas de argumentación se van contraponiendo: los ideales composicionales, el utopismo social, el activismo y el formalismo funcionalista de la ciudad moderna. Por otra parte, un inclusivismo historicista mezclado con vernacularismo. De la planificación y zonificación del CIAM, se pasa al metabolismo y a los sistemas y mallas complejas, para concluir en el post-moderno, en un formalismo alusivo, en el rescate de las tipologías de la ciudad histórica. «La forma sigue a la función», requería simplificar o ideologizar a las complejas funciones de la vida urbana. ¿Por qué no sustituir el argumento y volver a que la «función sigue a la forma»? Así, y desde la arquitectura, cualquier edificio sería relevante, si aparecía «con referencia». De aquí el historicismo, el referencialismo, la semiótica arquitectónica, la tipología y la metáfora que aparecieron, si no como causa, como su efecto. La ciudad «histórica» parecía ahora mucho más humana que la ciudad «moderna.» Es interesante que desde la «complejidad y contradicción» de Venturi 83, cuando O. Mathias Ungers desarrolla sus tipos y temas de «metamorfosis y metáforas», los artilugios y armados intelectuales serán ahora mucho más importantes en la imagenería e ideología arquitectónica. Los grandes edificios y conjuntos del Congreso de la Unión Internacional de Arquitectos de Buenos Aires en 1969, mostraron que los grandes conjuntos colectivos en Rusia, España, Argentina, Francia, Bulgaria y México, eran iguales, y que los grandes Congresos de la U.I.A. eran cada vez más una concentración de funcionarios encargados de la logística y la defensa gremial, más que de pensadores y vanguardias capaces de reformular a la nueva y eterna ciudad de la época.
En revistas y centros de estudio, en ciertos arquitectos de un ‘establishment’ diferente, estaría la salida a la que se orientó desde 1973 la «nueva arquitectura». Por un lado, vernacularismo y arquitectura local, por el otro historicismo y reconstrucción de la arquitectura clásica, y en todas partes del mundo, un surgimiento extraordinario de nuevos arquitectos de la 4a Generación, que volvieron a poner a la arquitectura en tensión crítica entre lo que se piensa y lo que se construye. La ciudad ahora fue aceptada como escenario ambiguo e incremental de una batalla incesante entre diseño, construcción y gestión; entre gestos estéticos extraordinarios y técnicas transfiguradas en materiales y detalles. Nuevos procesos de renovación urbana realizados en Boston, San Francisco, Philadelphia, Milán, Bruselas, París, Dusseldorf, Jerusalén, Bogotá, Caracas y Córdoba, Argentina, lo han demostrado.
En la tradición del «planning» y en el enfoque urbanístico de la arquitectura moderna, se había observado —sostiene Colin Rowe— el establecimiento de dos patrones de valor incompatibles: «Por un lado, destacar criterios científicos, los hechos, o a veces, lo que aunque se disfraza de ciencia, es al final gestión. Por otra parte, una preocupación por criterios flantrópicos o ideales que hasta hace algunos años eran de la contracultura; vida, pueblo y comunidad». Rowe resume esta contradicción: «Si el último conflicto se presenta entre una concepción retardada de la ciencia y un reconocimiento inseguro de la poética, sin embargo, es aparente que la arquitectura moderna, en su gran etapa, fue una gran idea, porque compuso y expuso hasta la extravagancia, dos mitos que publicita: Una combinación de fantasía sobre la ciencia —con su objetividad— y las fantasías sobre la libertad —con su humanidad— llevadas desde el siglo XIX al XX a ser corporizadas en edificios» 84.
De modo que una concepción científica y progresista, junto a una arquitectura más humanista e históricamente significativa, han servido para una mayor concentración de lo que Rowe llama las «fantasías» de la arquitectura Moderna que aún permanecen:
• la nueva arquitectura era determinable racionalmente
• la nueva arquitectura era predestinada históricamente
• la nueva arquitectura era respuesta al espíritu de la época
• la nueva arquitectura era socialmente terapéutica
Joven, renovable en sí misma, y por lo tanto incambiable en el tiempo
De aquí que las obligaciones del arquitecto para con la ciencia y con la humanidad continúan. De aquí la necesidad de auto-explicación, de trascendentalismo y la imposibilidad de desarrollar una teoría de la ciudad desde la teoría arquitectónica solamente, sin una base humanista y científica consistente.
Rowe precisa acerca de la contradicción humanista y científica de la tradición moderna —aun vigente— «que la gente edifque la ciudad o que la ciencia edifque la ciudad, aparecen neuróticos. De los dos programas prospectivos para el futuro, el despotismo de la ciencia o la tiranía de las mayorías ¿Cuál es el más repulsivo? Hasta cierto punto, la ciencia y la comunidad, deberían construir y construirán a la ciudad. El arquitecto no puede abordar ambos problemas y tampoco se puede convertir a la arquitectura en la responsable de estas contradicciones»85.
En Europa las investigaciones de Rossi, Aymonino y del Grupo «Architettura» sobre la arquitectura de la ciudad, tratan de salvar el abismo conceptual y teórico que existe hacia 1970, entre el «planning» y la arquitectura. Cuando los edificios llegan a ser monumentos, cuando la ciudad es memoria colectiva que debe ser rescatada, o cuando se recalcan los términos de «tipología edificatoria» o «morfología urbana», por lo menos se está hablando de otra cosa, cuantitativa y cualitativamente diferente a la construcción de un edificio como tema de arquitectura86.
De algún modo curioso la contradicción entre ciencia positiva —visión constructivista e ingenieril— y humanismo —visión antropológica— pareciera reducirse. Quizás porque Architettura y la Escuela de Venecia reincorporan una teoría de la arquitectura referida a sus fuentes originales, con lo cual integran el tiempo o la historia urbana. O porque también abordan la necesidad social de rescatar a toda la ciudad como forma y lenguaje. La morfología urbana y la tipología edificatoria en otros períodos, evidenciaron la necesidad de soslayar el protagonismo banal del edificio aislado, o la rigidez inhumana y agotada del cubismo y racionalismo como estilo. La ciudad fue vista sincrónicamente como un hecho morfológico total y compuesto. Estudio y proyecto, análisis y propuesta, no se puede separar. Es el «teatro de la memoria» y el «teatro de la profecía» de Rowe que se juntan.87 De allí que «una arquitectura como historia», una arquitectura como un «elemento permanente en la ciudad» y de «una arquitectura como construcción,» llegan a ser tres postulados básicos en la posición arquitectural de la Escuela de Venecia, y que merecen resaltarse, ya que tienen especial aplicación en la ciudad del Tercer Mundo de la arquitectura, Latinoamérica.
Al acentuarse la «autonomía» de la arquitectura, se intenta por otro lado redefinir la intervención en la ciudad. Se ha restablecido el concepto de que la morfología total debe primar. Una contextualización sutil o explícita de un ente total, que se construye en el tiempo, es la base del diseño urbano y de «una arquitectura de la ciudad»88. La mera intervención desde el objeto aislado o del Plan geométrico y racional del CIAM, han dejado lo que llama Rowe, a una ciudad «no construida».

Figura 2.36
Constantino Dardi. Plano de Estructura. Detalle. Roma Interrotta, 1979.
El protagonismo del edificio y el rescate de la autonomía disciplinaria de la arquitectura, no significarán lo mismo. Las ideas de monumento y espacio público en la obra de Rossi, son básicas para el establecimiento de espacios articuladores, de carácter público o especialmente significativos, para resaltar una unidad de barrios y entes opuestos89. La ciudad puede y debe acomodar propuestas de diferentes épocas para establecer la relación necesaria entre ellas. Esta idea está explícita como «ejercicio gimnástico para la imaginación» en la exposición de «Roma Interrotta» en 1979. Tomando como base el Plano de Nolli de 1748, diversos arquitectos europeos y norteamericanos realizaron un ejercicio de exploración independiente sobre la historia, la utopía o la morfología de la intervención en el centro de Roma90 (figura 2.36).
En un plano antropológico y teórico más profundo, la ciudad como «teatro de la historia» y como «teatro de la profecía» de Collin Rowe, se asimila con la «ciudad análoga» de Rossi. La superposición de texturas urbanas, el «bricolage» que destaca Rowe, un trabajo de sutura, de «remiendo» o «parche» hacia una ciudad que se acepta como «destrozada o trizada», sería una política posible. Solución imperfecta que aparece como estrategia y que la planificación urbana debería aceptar e incorporar. Por lo menos es una ciudad más humana.
La tesis que surge, cada vez con mayor convergencia, es la de rescatar por el trabajo morfológico afinado una estructura posiblemente ambigua, integrándose aún con posibles sectores contradictorios, resaltando las formas, permitiendo una humanización de la ciudad por la escala asociativa menor de la intervención y por las referencias ambientales. Permite una amalgama aparentemente incoordinada de pedazos, una multiplicidad de estímulos y complejas combinaciones91. De la historia de Roma a Londres, como ejemplos que rescata y analiza, Rowe cree que este enfoque de una Ciudad Collage, como conjunto variado de intervenciones agregativas, se puede aplicar sobre Los Angeles, Houston, o hasta en Manhattan, rescatando en cada una de las ciudades los sectores, barrios y estructuras fundamentales que la morfología analítica manifesta.
El problema está planteado. Pero sigue crítico en las grandes intervenciones. Sobre París, desde la creación del eje de la Defénse, La Villette o Les Halles; en Santiago, para el Concurso Internacional de Remodelación del Área Poniente en 1972,92 en el Plan del Eje Norte-Sur de Buenos Aires y su «cinturón ecológico». Es la realidad de capitales que son ciudades sin planes posibles, como Tokio o México, pero que están llenas de referencias y lugares. Sobre todo, se expresa en el símbolo final de la impotencia de una profecía urbana sin memoria colectiva, como son Brasilia y Chandigarh.
El referencialismo y contextualismo, la ciudad reconstituida, como estrategia de intervención, no es siempre aplicable, acentúan sólo una parte del problema. En gran parte del mundo de ciudades consolidadas, la híper-urbanización ha desbordado los recursos de la arquitectura y del diseño, y en otros continentes, en África, América del Norte y del Sur, todavía está abierto el problema del partir desde cero. ¿Cómo se parte y se funda una vez más una ciudad? ¿Es posible el diseño incremental desde la nada? Para ello parece útil volver a los antecedentes científicos y humanistas que organizan a la realidad como ciudad y naturaleza.
A pesar de estas preguntas formuladas a principios de los años 90s, en los últimos veinte años, el incremento de la población urbana mundial ha impulsado una mayor preocupación por los procesos de desarrollo urbano en diferentes contextos, lo que ha modificado la forma de comprender y diseñar las ciudades, generando el surgimiento de variados y nuevos enfoques de diseño urbano.
Schwarser (2000)93 sostiene que tanto los enfoques de diseño urbano orientados al “producto”, como aquellos preocupados con el “proceso” de diseño e implementación del espacio urbano, han estado dominado por dos debates antagónicos: el primer debate centrado en disputa intelectual entre el “Diseño Urbano Tradicionalista” basado en la recuperación de los principios de la ciudad histórica versus el “Diseño Urbano Conceptual”, orientado a la creación de nuevas formas urbanas y territoriales que respondan a la sociedad y nuevos paisajes contemporáneos, y un segundo debate sobre a que demandas responder, entre el “Diseño Urbano de Mercado” orientado a dar forma a las demandas inmobiliarias versus el “Diseño Urbano Social” centrado en la justicia social y el rechazo a las dinámicas capitalistas de reproducción urbana. Ambos debates han llevado a que surjan variadas expresiones de diseño urbano contemporáneo, entre los que destacan aproximaciones como las del New Urbanisms, Post Urbanism, Landscape y Ecological Urbanism, o Everyday Urbanism y Tactical Urbanism (Kelbaugh, 2008)94
El “New Urbanism”95 surge a fine de años 80s en los Estados Unidos, consolidando el pensamiento crítico a las ideas funcionalista del modernismo en la ciudad. Este movimiento enfatiza la reconstrucción urbana a través de las formas y tradiciones de la ciudad histórica, con un marcado acento en la continuidad del “tejido urbano” de calles y espacios públicos, y la construcción de una ciudad compacta y densa en contraposición al suburbio, con un fuerte acento en la integración de usos y segmentos sociales, a la vez que se fomenta al peatón y al transporte público. Formalizado como movimiento a través de la creación de los “Congresos para el Nuevo Urbanismo” (CNU), como antítesis de los antiguos CIAM (Congresos Internacionales de Arquitectura Moderna), este movimiento se compromete a “restablecer la relación entre el arte de edificar y la capacidad de construir comunidades, a través de la participación ciudadana en el diseño urbano” (CNU 1998).
En contraposición, el llamado “Post Urbanism” (Kelbaugh, 2008) o “Urbanismo Genérico”96 (Koolhaas, 1995) critica a las corrientes historicistas como el “New Urbanism” por expresar un “deseo de orden que involucra nostalgia por un pasado romantizado que nunca existió realmente” (Kelbaugh, 2008). Los posturbanistas proponen una actitud avant-garde de tipo post-estructuralista, que plantea una arquitectura y un urbanismo que acepta la condición fragmentaria de la ciudad, mediante el diseño de edificaciones hipermodernas sin un obligado vínculo al contexto, enfatizando la condición social y cultural contemporánea si pretender transformarla. Sus proyectos ponen el acento en configuraciones híbridas, abstractas, experimentales y mutables de arquitectura y ciudad, distantes de los patrones de orden tradicional. Arquitectos como Rem Koolhaas, Peter Eisenman o Bernard Tschumi representan los principales exponentes de este pensamiento.
La aproximación del “Landscape Urbanism” no es nueva, tiene sus orígenes en el diseño del paisaje y la ecología, claramente reflejadas en las ideas de Ian McHarg 97de fines de los 60s. Esta visión se fortalecido recientemente dada la búsqueda reciente de sustentabilidad urbana y la necesidad de aproximaciones de diseño urbano que pongan mayor atensión a los procesos naturales y su adaptación a la ciudad y los territorios construidos. Este movimiento surgió a mediados de la década de los 1990s como una aproximación al diseño urbano desde el diseño del paisaje, poniendo énfasis en el diseño del espacio vacío por sobre la edificación. Hacia finales de los 1990s, arquitectos paisajistas como James Corner98 y Charles Waldheim99 , en los Estados Unidos, profundizan este pensamiento como respuesta a la transformación de los nuevos paisajes postindustriales y las nuevas formas de integración entre la infraestructura urbana y el espacio público. Una evolución crítica dentro de esta línea de pensamiento, ha posicionado el concepto de “Urbanismo Ecológico”, en busca de una visión menos ideológica y más integral, sustentable y holística del diseño de las ciudades. Una de estas miradas de integración ecológica entre el paisaje, el diseño urbano y la arquitectura se expresan en el libro “Ecological Urbanism”100 de 2007 publicado desde la Graduate School of Design de la Universidad de Harvard.
Por otro lado, desde un punto de vista contrario al diseño urbano orientado al mercado de megaproyectos o visiónes tecnocráticas, durante la última década han surgido con fuerza nuevos movimientos que promueven la construcción incremental y el diseño de la ciudad a partir de las personas y comunidades locales. Este pensamiento, surgido en parte de las tendencias de la planificación urbana participativa, ha sido articulado en conceptos como el “Everyday Urbanism”101 (Chase, Crawford y Kaliski, 2008) o el “Tactical Urbanism”102 (Lydon, Bartman, Woudstra y Khawarzad, 2011).
Inspirado en el pensamiento post estructuralista de filósofos como Henry Lefebvre103, el “Everyday Urbanism” se basa en la intervención creativa y la valorización de aquellos “lugares excluidos y experiencias urbanas que otros tipos de urbanismo ignoran” (Kaliski, 2008). Esta forma de diseño urbano se basa en tres conceptos: (1) énfasis en la experiencia diaria de las personas en el medio ambiente urbano, (2) crítica a las aproximaciones abstractas y normativas del diseño urbano contemporáneo y (3) protagonismo y empoderamiento de los habitantes en el diseño urbano de sus ciudades y barrios. En esta misma línea, el “Tactical Urbanism” ha impulsado el potencial transformador de las intervenciones urbanas participativas, menores, incrementales y transitorias (tácticas), capaces de modificar el funcionamiento de la ciudad y sus espacios mediante la organización social y el uso alternativo del espacio colectivo. Sus proyectos son intervenciones menores, a escala de barrio, asociadas a la reconquista del espacio público para vecinos, peatones, ciclistas o comercio informal.
1 Hudnut, Joseph. Profesor y Decano de la Graduate School of Design. Universidad de Harvard. Introducción a Can Our Cities Survive? de J.L. Sert, 1942. Traducción de G. Munizaga.
2 Ruskin, John. Seven Lamps of Architecture, 1849; Viollet-Le-Duc. Eugene. Entretiens sur l’Architecture, 1872.
3 Gideon, Siegfried. Espacio, Tiempo y Arquitectura. Barcelona, 1955.
4 Gideon, Siegfried. Op. Cit.
5 Perouse de Montclos. Estherique Naturelle. L’Essai sur l’Art. 1685.
6 Weber, Adna. The Growth of Cities in the XIXth. Century, 1895 y Cornell. 1965.
7 Gideon, Siegfried. Op. Cit. p. 633.
8 Gideon, Siegfried. Op. Cit.
9 Gideon, Siegfried. Op. Cit.
10 Gideon, Siegfried. Op. Cit.
11 Riesner y Choay los denominan-Pre-urbanistas. Gideon también hace un interesante análisis de estos precursores, entre los cuales están numerosos reformadores sociales de fines del siglo XIX, entre otros: Owen. Saint-Simon. Fourier. Papworth y Pullman.
12 Especialmente Camilo Sitte, autor de Stadtebau y Otto Wagner, autor de diversos proyectos, especialmente el Plan de Viena.
13 Ver Anexos.
14 Reps, John. The Making of Urban America. Princeton, 1965. p. 496.
15 Sullivan, Louis.
16 La influencia del Bauhaus en EE.UU. aún tiene interpretaciones disímiles. Una de gran interés es de Wolf, Thomas. From Bauhaus to our House, Harper’s, N. York, junio. 1981.
17 Town-Planning Act, en 1901.
18 En 1901 se promulga la Ley sobre Planeamiento y Vivienda. Esta Ley propone por primera vez un cuerpo legislativo global sobre problemas nacionales de desarrollo urbano y vivienda, y se plantea la obligatoriedad de los Planos Reguladores para ciudades de más de 10.000 habitantes.
19 Pinkney, David. Napoleón III and the Rebuilding of Paris. p. 5.
20 van Doesburg, T. en Revista De Stijl, N° 6, junio 1922.
21 Prampolini. E. en Revista De Stijl, N° 7, julio 1922. Pág. 102.
22 Majakovski, Obras. Editori Riuniti. Roma, 1951.
23 De Feo, Vittorio. U.R.S.S. Archittetura 1917–1963. 1963.
24 De Feo, Vittorio. Op. Cit.
25 De Feo, Vittorio. Op. Cit.
26 Lubetkin. Berthold. The Builders. The Architectural Review, Londres, 1923.
27 Museo Moderno de Estocolmo. Catálogo de la Exposición de Vladimir Tatlin, 1968.
28 De Feo, Vittorio. Op. Cit.
29 Revista De Stijl, N° 6, junio 1922.
30 Revista De Stijl, N° 4, abril 1922. p. 64.
31 Revista Esprit Nouveau, N° 25, París, 1924. p. 12.
32 De Feo, Vittorio. Op. Cit.
33 van Doesburg. Towards a Plastic Architecture en Brown, Th. The Work of Gerrit Rietveld, Architect. 1958.
34 Majakovski. Op. Cit.
35 Carvajal, Carlos. Arquitectura Racional de las Futuras Ciudades. Santiago. 1912.
36 Revista De Stijl, N° 7, julio 1922. p. 116.
37 Revista De Stijl, N9 7, julio 1922. p. 116.
38 Ver al respecto: Bauhaus, Declaración de Principios. Weimar. abril 1919.
39 Bauhaus. Op. Cit.
40 Gropius, Walter. Internationale Architektur. Weimar, Bauhaus, 1928.
41 En 1942, junto a Paul Rudolph y a Io Ming Pei, se gradúa en la Master Class, el arquitecto y urbanista chileno Emile Duhart. quien también trabajará con Le Corbusier en el Atelier de Rue de Sevres.
42 C.I.A.M. Congreso Internacional de Arquitectura Moderna. Declaración de la Sarraz, Suiza, 1928.
43 C.I.A.M. Op. Cit.
44 Con respecto al desarrollo del término y escuela denominados Estilo Internacional, ver Henry-Russel Hitchcock y Philip Johnson. The International Style: Architecture since 1922. Nueva York. 1970.
45 La Carta de Atenas. Congreso Internacional de Arquitectura Moderna. Atenas. París. 1933.
46 Le Corbusier. Cómo Concebir el Urbanismo, París, 1946. Ediciones Nueva Visión, Buenos Aires, 1962.
47 Le Corbusier. Op. Cit. p. 165.
48 Le Corbusier. Op. Cit. p. 160.
49 Jencks, Charles. Le Corbusier and the Tragic View of Architecture. 1973. pp. 131–133.
50 Sert, J. C. y Tyrwhit, J. Can Our Cities Survive?. Cambridge. 1947.
51 Geddes, Patrick. Cities in Evolution. 1915.
52 Sert, J. C. y Tyrwhit, J. Op. Cit. p. 115.
53 Sert, J. C. y Tyrwhit, J. Op. Cit. p. 219.
54 C.I.A.M. 8°. The Heart of the City. 1952. Capítulo introductorio.
55 Le Corbusier. Cómo Concebir el Urbanismo. 1946 y 1962.
56 Smithson, Allison. Team 10, Primer. Architectural Design, 1964. p. 1. Primer es «texto básico», cuaderno. N. del A.
57 Smithson, Allison. Op. Cit. p. 6.
58 Smithson, Peter y Allison. Junio 1955. citado de Drew, John en La Tercera Generación. 1973. p. 33.
59 Drew, John. Op. Cit. p. 33.
60 Drew, John. Op. Cit. p. 7.
61 Ver Anexos.
62 Doxiadis, Constantinos. Ekistics: The Science of Human Settlements, Oxford, 1968.Para mayor detalle ver Anexos y capítulos que siguen.
63 Maki, Fumihiko. Movement Systems in the City. HGSD, Cambridge 1965.
64 United States Bicentennial World Exhibition. Boston. 1976. Preliminary Design Report. February 1969.
65 Urbanology. Término utilizado por el sociólogo de Harvard y senador por Nueva York, Daniel P. Moinlhan. como ciencia global de las ciudades. Revista Time, mayo 1968.
66 Weber, Max. The City. 1921 y otras ediciones.
67 Weber, Adna. Op. Cit.
68 Park, R.; Burguess, E.; Mackenzie. R. The City. 1925.
69 Ver de Hatt, Paul y Reiss, Albert. Cities and Society. pp. 46 y 201.
70 Autor del Plan Maestro para el Desarrollo Físico y Social de Staten Island. 1871. el Central Park de Nueva York, el New Jersey Parkway. etc.
71 «Planificación Urbana» y «Planeamiento Urbano en español». «Amenagement Urbain». en francés.
72 Entre ellas, estaban Charles Abrams, del MIT; Edmund Bacon, Director General de Planificación de la Ciudad de Philadelphia; Pedro Bigador, Director General de Planificación del Ministerio de la Vivienda de España; C.S. Chandrasekhara, Secretarlo General de la Organización Regional de Planificación y Vivienda para el Asia Oriental de la ONU; Walter Christaller de Alemania, verdadero creador de la Ciencia Regional; Jacob Crane, de los EE.UU.; Lord Llewelyn Davis, Decano de Arquitectura de la Universidad de Londres; Buckminster Fuller; Siegfried Gideon; Lady Barbara Ward Jackson; Sir Robert Mathews, Presidente del Instituto de Arquitectos Británicos; Margaret Mead, antropólogo norteamericana y otros.
73 La Declaración de Delos, julio 1963.Traducción E.A.U.C. (mimeo). Doc. Docentes F.A.U.Ch., 1975.
74 Concurso PREVI. Lima. Perú.
75 Jencks, Charles. Architecture 2000, Londres. 1971; Mac Luhan El Medio es el Mensaje, p. 21.
76 Jencks, Charles. Op. Cit. p. 35.
77 Jencks, Charles. Op. Cit. p. 36.
78 Jacobs, Jane. Life and Death of American Cities. Reiss, Albert. La Metrópoli en la Vida Moderna. Buenos Aires, 1961.
79 Referencia a los proyectos oficiales de estos países presentados al Congreso de la U.I.A. de Buenos Aires. 1969.
80 Grupo CEDLA. Folleto de charla sobre la Arquitectura Neo-Racionalista. Santiago. 1976.
81 Ver Architectural Design. Vol. 47. N° 5, 1977. pp. 319 a 356.
82 Rowe, Collin. Collage City. M.I.T. Press. 1978. p. 3.
83 Venturi, Robert. Complejidad y Contradicción en Arquitectura.
84 Rowe, Collin. Op. Cit.
85 Rowe, Collin. Op. Cit.
86 Semerani, Luciano. The School of Venice, en Architectural Design 555/6–1985. p. 10.
87 Rowe, Collin. Op. Cit. p. 49.
88 Rossi, Aldo. La Arquitectura de la Ciudad. Barcelona. 1971.
89 Rossi, Aldo. Op. Cit.
90 Rowe, Collin. Op. Cit. pp. 100 a 116.
91 Concurso Internacional Santiago Poniente. Revista Summa N° 87. Buenos Aires, marzo 1975.
92 Pérez de Arce, Rodrigo. Urban Transformations. The Architectural Association, Londres, 1980.
93 Schwarser, M. “The Contemporary City in four movements” Journal of Urban Design, 5(2), 2000
94 Kelbaugh, D. “Three Urbanisms: New, everyday and, post” en Haas, T. “New Urbanism and Beyond”, Rizzoli, New York, 2008.
95 Katz, Peter “The New Urbanism: Toward an Architecture of Community”. Mc-Graw-Hill, New York, 1994.
96 O.M.A, Koolhaas Rem, Mau Bruce “S,M,L,XL” The Monacelli Press, New York, 1995.
97 McHarg, I. “Design with Nature”, The Natural History Press, Garden City, NY, 1969
98 Corner, James “Recovering Landscape: Essays in Contemporary Landscape Architecture”, Princeton Architectural Press, 1999.
99 Waldheim, C. “ The Landscape Urbanism Reader”, Princeton Architectural Press, New York, 2006
100 Mostafavi, M. (Editor) y Doherty, G. (Editor), “Ecological Urbanism”, Lars Muller, 2010.
101 Chase, J.L., Crawford, M., y Kaliski, J “Everyday Urbanism” The Monacelli Press, New York, 2008.
102 Bartman, D., Woudstra R.,y Khawarzad A., “Tactical Urbanism: Short-term action Long-term change”, The Street Plans Collaborative, New York, 2011.
103 Lefevre, H. “The Production of the Space”, Blackwell, Londres, 1991