
661
PARTE VIII. Ensayos destructivos
Si se desea enderezar las chapas de ensayo que se
han deformado durante la soldadura, se puede realizar
esta operación a una temperatura inferior a la del tra-
tamiento térmico de la envolvente a la que pertenecen.
El enderezado precederá al tratamiento térmico
PROBETAS Y DIMENSIONES
Las chapas para ensayo de las soldaduras de produc-
ción permitirán la obtención de las siguientes probetas:
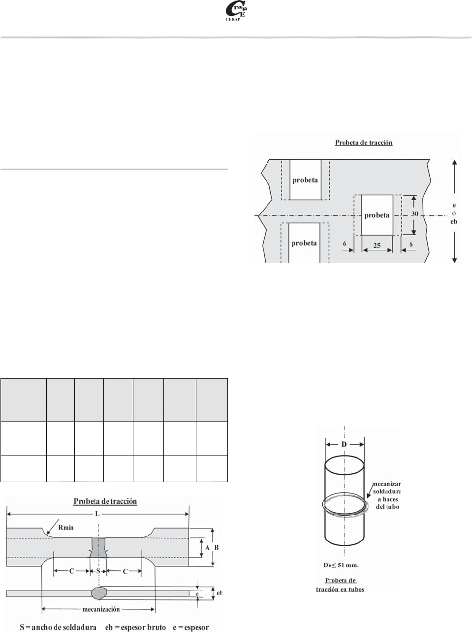
Probeta para el ensayo a tracción
Una probeta para ensayo a tracción, cortada transver-
salmente a la soldadura, o tantas probetas como sean
en todo el espesor de la junta.
Las dimensiones de la probeta del ensayo a trac-
ción serán las indicadas en la Figura 57.1.
En la Tabla 57.1. se dan los datos dimensionales
de probetas.
Tabla 57.1.
Probeta
tracción L eb A B C Rmín.
mm mm mm mm mm mm
250 < 30 31,7 19 6,4 25
Reducida 200 ---- 27 12,7 6,4 25
Chapa
gruesa 200 37 25 30 50
Figura 57.1. Probeta de tracción.
Si el espesor de la chapa no excede de 30 mm
el espesor de la probeta será igual al espesor de la
chapa y de la soldadura.
Si el espesor de la chapa excede de 30 mm se puede
realizar el ensayo a tracción con varias probetas de sec-
ción reducida, cada una de las cuales tiene un espesor
de 30 mm como mínimo y una anchura en la sección
transversal efectiva de 25 mm como mínimo.
Figura 57.2. Probeta de tracción. Chapa gruesa.
Estas probetas se tomarán de la chapa de ensayo
de tal forma que el ensayo de tracción se extienda a
la totalidad del espesor de la junta soldada, tal como
se indica en la Figura 57.2.
En este caso el resultado del ensayo de cada pro-
-
partado “Ensayo a tracción con sección reducida”.
En el caso de tubos de diámetro inferior a 51 mm
la probeta de tracción es el propio tubo de acuerdo a
la Figura 57.3.
Figura 57.3. Probeta de tracción. Tubos.
Ensayo a tracción con probeta de metal de
aportación
En los casos en que el espesor de la chapa exceda de
15 mm se tomará una probeta de metal de aportación.
Sin embargo, en el caso de preparación de los
bordes a soldar en forma de X simétrica, esta probeta